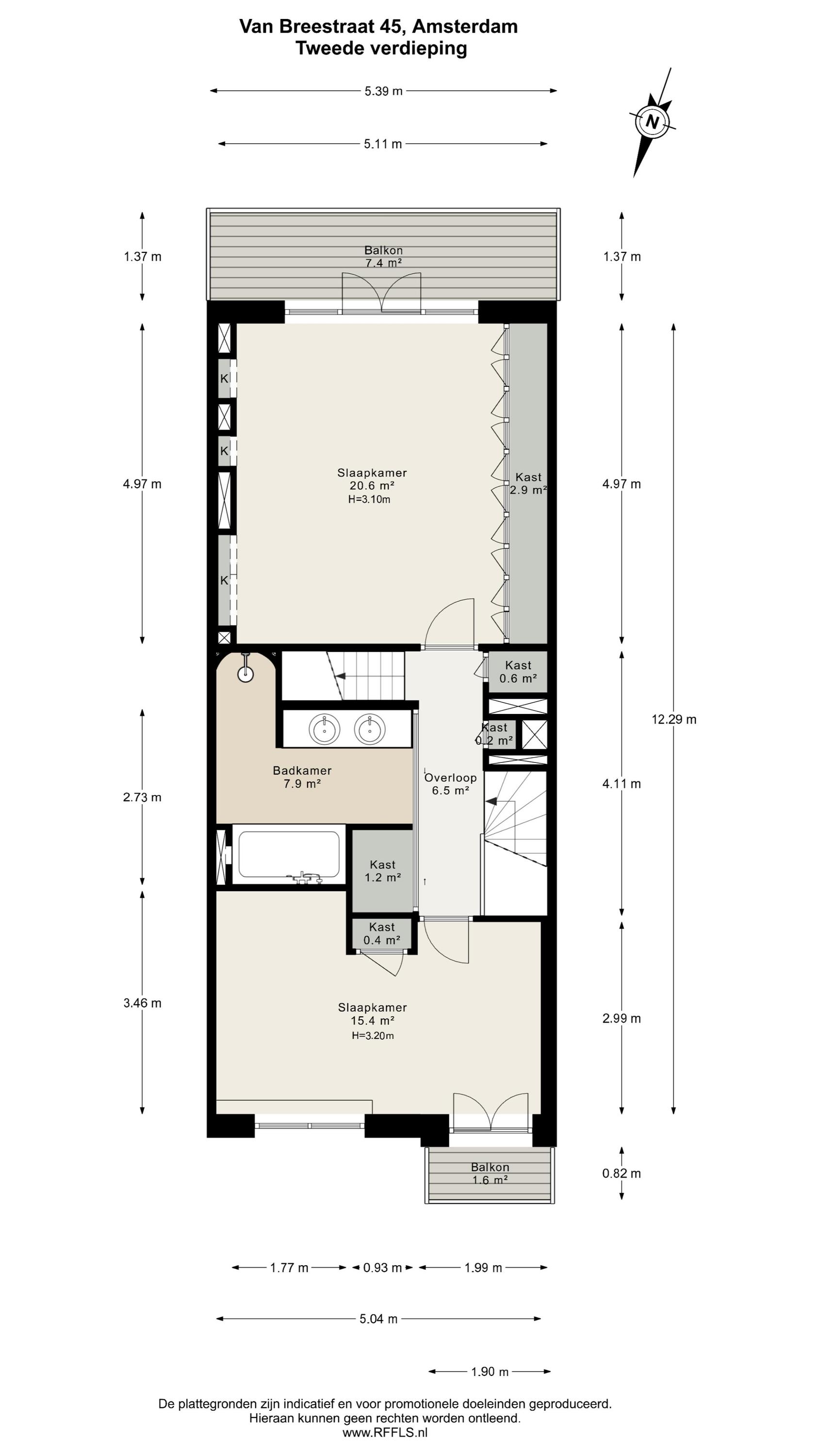
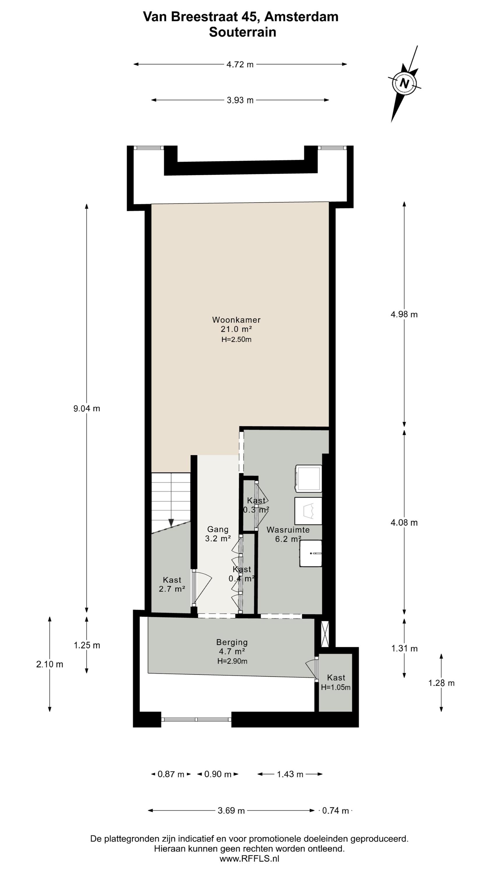
يبرز منزل التاون هاوس في أمستردام أود-زاود تلاقي النزاهة المعمارية والمكانة الحضرية في أحد أكثر مواقع أمستردام تميزًا. تمتد هذه الإقامة العائلية على مساحة 291 م² موزعة على خمسة طوابق كاملة، وتقع في شارع فان بريسترات بمنطقة المتاحف، وعلى مقربة من شارع بي سي هوفتسترات، وحديقة فوندل، وساحة المتاحف. يعكس المنزل عالما خصوصيا صاغته تجديدات المعماري ديك فان غاميرن عام 2012، حيث يتلاقى الانسياب الفراغي الواسع، والضوء الطبيعي الوافر، والتصميم الهادئ. يضم التاون هاوس أربع غرف نوم، وحمامين، وأتريوم مضاء بأشعة الشمس يتوجه سقف زجاجي كبير، وحديقة مواجهة للجنوب بمساحة 40,2 م²، ما يخلق امتدادًا عضويًا للمساحات المعيشية وإمكانية عيش الهواء الطلق في أمستردام أود-زاود.
يمتزج في أرجاء المنزل تفاصيله الأصلية بالتحديثات الراقية—مثل مفاتيح التحكم الذكية المبرمجة، وأنظمة الدوموتيكا، وعزل الصوت عالي الجودة، وتكييف الهواء—لتؤكد الالتزام بالراحة والاستعداد للمستقبل. تم تصميم المطبخ حسب الطلب لتلبية كل من وجبات العائلة الحميمة والتجمعات المميزة، مع إمكانية الوصول المباشر عبر الأبواب الفرنسية إلى الشرفة والحديقة المغطاة. تضفي الشرفات العديدة، والطابق السفلي متعدد الوظائف، والمعرض المطل على الأتريوم المركزي، بعدًا إضافيًا لتجربة السكن.
مع تصنيف طاقة من الفئة A، وتقنيات منزلية متقدمة، وألواح طاقة شمسية، واستعدادات لتركيب مصعد ركاب، يمزج العقار بين الاستدامة والمرونة المعاصرة. يقع المنزل في شارع هادئ تصطف على جانبيه الأشجار بسمات حي سكني، ويوفر عنوانًا يحمل طابع القرى الهادئ وسط حيوية أمستردام. تساهم سهولة الوصول، والقرب من المدارس الدولية، والوصول الفوري إلى معالم الثقافة في تعزيز جودة الحياة اليومية. يمثل هذا التاون هاوس في أمستردام أود-زاود توازنًا بين الخصوصية والديناميكية التي تحدد نمط العيش في مدن العالم الكبرى.
استكشف Amsterdam مع Baerz، مستشارك الموثوق للعثور على العقارات الشخصية
يتطلب التنقل في السوق الفاخر بأمستردام خبرة محلية ومعرفة تفصيلية واحترافية في التفاوض. يقدم أفضل المستشارين فرص الوصول إلى العروض الخاصة، وشرح قواعد الملكية الدقيقة، وتحديد القيمة الحقيقية في سوق نادرًا ما تتوفر فيه الفرص للعلن. توفر فرق الاستشارات تدقيقًا صارمًا للأصول وخدمة التمثيل، ما يقوي موقفك أثناء التفاوض ويضمن عملية سلسة ويحمي خصوصيتك طوال الإجراءات.
تجنب المزالق الشائعة
غالبًا ما يهدر المشترون الدوليون وقتًا ثمينًا أثناء التنقل بين القوائم المكررة أو القديمة أو المضللة عبر الإنترنت، خاصةً أن ما يقرب من 30% من العقارات الفاخرة لا تظهر في السوق على الإطلاق.
يمثل وكلاء البائعين مصالح البائع وليس مصالحك، وحتى مجرد الاستفسار عن عقار قد يؤدي إلى تسجيلك كـ "عميل" لديهم دون موافقتك.
مع Baerz Property Finders & Advisors، يمكنك تجنب هذه المزالق تمامًا.
نحن نعمل حصريًا نيابة عنك، ونقدم لك تمثيلاً مستقلاً، وإرشادًا شفافًا، وإمكانية الوصول إلى كل عقار متاح، بما في ذلك الفرص الخاصة وغير المطروحة في السوق والتي لا يراها الآخرون أبدًا.
هل ترغب في معرفة كيفية الحصول على مستشار عقاري شخصي؟ اتصل بنا لتتعرف على كيفية تمثيل مصالحك وفتح السوق بالكامل أمامك.