يوفر هذا المنزل شبه المنفصل في دلفت مساحة معيشة تبلغ 176 م² على قطعة أرض واسعة تبلغ 254 م²، ليشكل ملاذًا متزنًا للعائلات الباحثة عن المساحة والتواصل في آن واحد. يمتد العقار على شارع معروف بكونه صديقًا للأطفال ويتميز بحدائق أمامية مصممة وشخصية سكنية نابضة بالحياة. يتسم هذا المنزل العصري بتصميمه المستدام، ويشمل ألواحًا شمسية مثبتة على السطح، وتدفئة مركزية، وتصنيف طاقة من الفئة A.
يستقبلك الطابق الأرضي بموقف سيارات خاص وتراس مشمس يمهد لداخل مشرق. يكشف باب زجاجي صناعي عن غرفة معيشة مضاءة جيدًا، تتصل بسلاسة بمطبخ مفتوح مع جزيرة للطهي وأجهزة متكاملة. تمد أبواب منزلقة المساحة إلى التراس، بينما تخلق إطلالات الحديقة الخلفية انسجامًا ناعمًا بين الداخل والخارج. واجهة الحديقة الجنوبية مجهزة بتراس واسع، وبيت زجاجي، وسقيفة خشبية، ورصيف مائي.
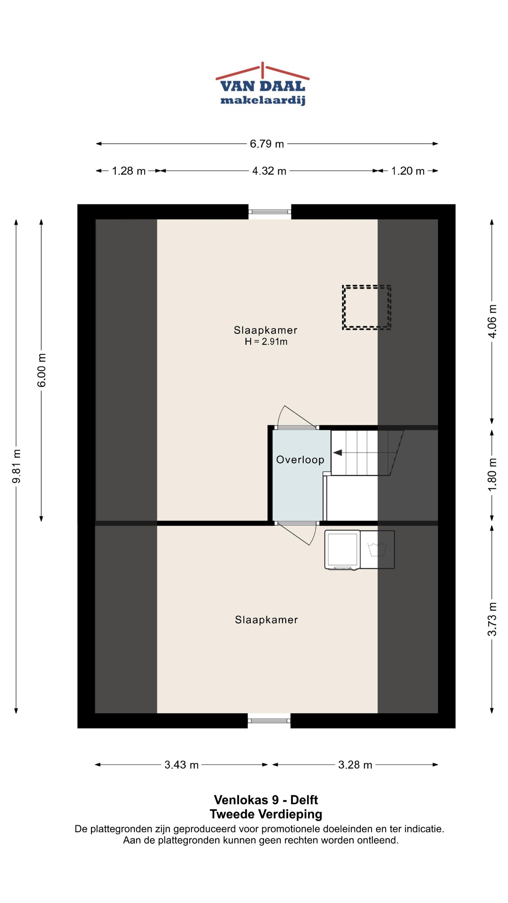
من خلال درج مضاء، يحتضن الطابق الأول أربع غرف نوم هادئة، كل واحدة تتمتع بأبواب مرتفعة وإضاءة متزنة. تقدم الحمّام المركزي دشًا دون عتبة وحوض استحمام وحوضين مزدوجين، مع مرحاض ثانٍ منفصل للراحة. يتيح الطابق الثاني مرونة، ويضم غرفة نوم خامسة واسعة وغرفة سادسة متعددة الاستخدامات، مُجهزة حاليًا للغسيل والتخزين، ولكنها مهيأة لإضافة حمام ثانٍ عند الحاجة. تكتمل العناية بالعزل بإطارات نوافذ بلاستيكية بزجاج HR++، مصحوبة بتهوية متوازنة في جميع الأنحاء.
يقع هذا المنزل شبه المنفصل على بُعد مسافة قصيرة بالدراجة من مركز مدينة دلفت والمحطة، مع المدارس ودور الحضانة القريبة، فهو عملي وملهم في هدوئه، ويلبي احتياجات العائلات الكبيرة في بيئة مصممة لنمط حياة الأسرة العصرية.
استكشف Delft مع Baerz، مستشارك الموثوق للعثور على العقارات الشخصية
يتطلب سوق دلفت الحصري خبرة وسرية. يتيح لك المستشارون ذوو الخبرة الوصول لعقارات غير متاحة علنًا ويقدمون مفاوضات استراتيجية وفهمًا عميقًا لطبيعة السوق المحلية. دعمهم لا غنى عنه لمن يبحث عن العقارات النادرة وصفقات سلسة.
تجنب المزالق الشائعة
غالبًا ما يهدر المشترون الدوليون وقتًا ثمينًا أثناء التنقل بين القوائم المكررة أو القديمة أو المضللة عبر الإنترنت، خاصةً أن ما يقرب من 30% من العقارات الفاخرة لا تظهر في السوق على الإطلاق.
يمثل وكلاء البائعين مصالح البائع وليس مصالحك، وحتى مجرد الاستفسار عن عقار قد يؤدي إلى تسجيلك كـ "عميل" لديهم دون موافقتك.
مع Baerz Property Finders & Advisors، يمكنك تجنب هذه المزالق تمامًا.
نحن نعمل حصريًا نيابة عنك، ونقدم لك تمثيلاً مستقلاً، وإرشادًا شفافًا، وإمكانية الوصول إلى كل عقار متاح، بما في ذلك الفرص الخاصة وغير المطروحة في السوق والتي لا يراها الآخرون أبدًا.
هل ترغب في معرفة كيفية الحصول على مستشار عقاري شخصي؟ اتصل بنا لتتعرف على كيفية تمثيل مصالحك وفتح السوق بالكامل أمامك.