Ons kantoor is lid van Baerz & Co Luxury Homes; een internationaal platform dat exclusieve woningmakelaars met elkaar verbindt. Neem contact op met ons secretariaat voor meer informatie over het landelijke aanbod, waarvan u hieronder een selectie kunt bekijken.

MAASTRICHT
Observantenweg 61 - 6212 EP
هولندا

Kenneth Kruse profile image
Kenneth Kruse
NVM MAKELAAR - RM/RT
€1,095,000 k.k.
منطقة المعيشة
140m2
حجم الأرض
273m2
غرف النوم
4

الوصف

يعكس هذا المنزل المنفصل في ماستريخت أسلوب حياة راقياً في حي هادئ عند سفح جبل سينت-بيترسبرغ، على بُعد دقائق من قلب المدينة التاريخي. يقع هذا المنزل الذي يضم أربع غرف نوم على مساحة 140م²، على قطعة أرض بمساحة 273م²، وقد خضع لعملية تحديث شاملة تجمع بين الراحة والتصميم والخصوصية. توفر الحدائق الناضجة في الواجهة والخلفية تدفقاً سلساً بين المساحات الداخلية والخارجية، بينما تضمن الإطارات الألومنيوم مع زجاج HR++ وعزل السقف Kingspan Unidek (2022) مستوى عالياً من الكفاءة والهدوء.

تركز الطابق الأرضي المفتوح على مساحة معيشة واسعة تبلغ حوالي 68م²، يميزها أرضية باركيه من خشب البلوط، ومدفأة غاز مخصصة من Faber، ومشعات مصممة خصيصاً. تضم المطبخ بدون مقابض سطح طهي اندكشن بخمس مناطق، وفرن حراري، وماكينة قهوة مدمجة، وأبواب منزلقة تطل على الحديقة، ما يمنح سهولة في الحياة اليومية والاستضافة. تنتقل منطقة المعيشة إلى حديقة حضرية خاصة مواجهة للشمال الشرقي وساحة أمامية خضراء تستقبل أشعة الشمس المسائية.

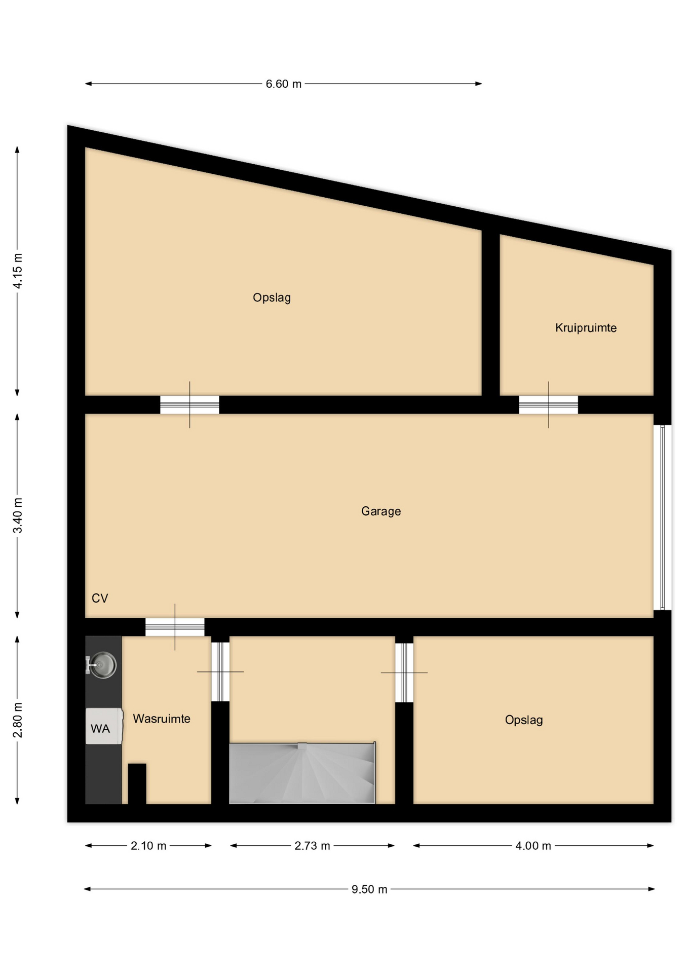
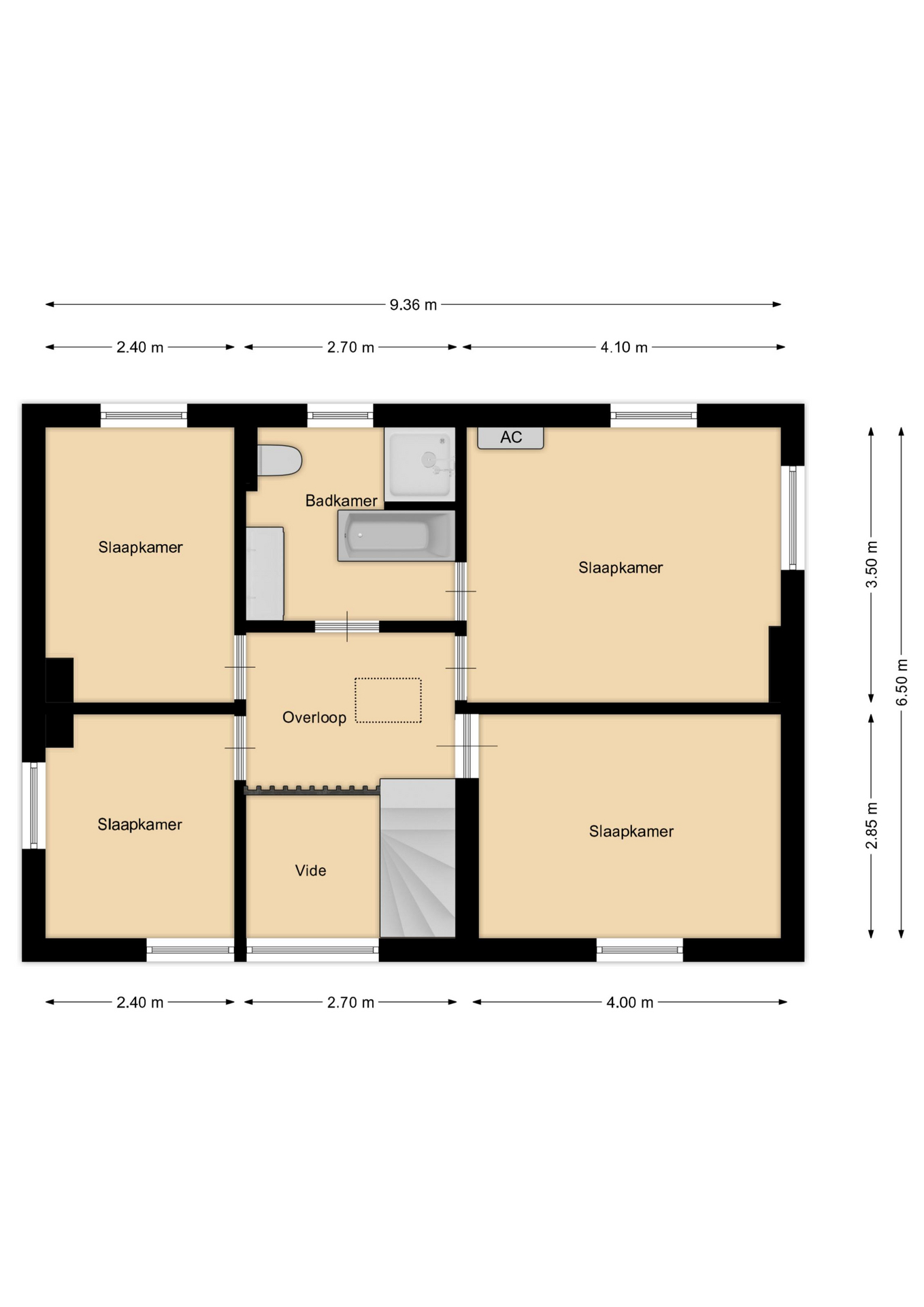
في الطابق العلوي، تكمل أربع غرف نوم خزائن مصممة خصيصاً من Slangen Interieurbouw وأرضية باركيه بنمط الفسيفساء. يحتوي الحمام على دش مشي وحوض استحمام، وتهوية ميكانيكية، وتدفئة أرضية. تستفيد غرفة النوم الرئيسية من مكيف هواء؛ وتتوفر حلول تخزين واسعة مع قبو كبير يضم جراجاً بمساحة 33م² وغرف خدمات، إضافة إلى مساحة تخزين في السطح.

يقع المنزل في حي Jekerdal-Sint Pieter المرغوب، حيث يجمع بين سهولة الوصول إلى المدينة وقربه من الطبيعة. تقع المدارس والمرافق الطبية والمتاجر ووسائل النقل جميعها ضمن متناول اليد ليؤكد أسلوب حياة مريح. يمثل هذا العقار منزلاً جاهزاً ودائماً للعائلات التي تقدر المساحة والخصوصية والجودة في أحد أكثر أحياء ماستريخت جاذبية.

استكشف Maastricht مع Baerz، مستشارك الموثوق للعثور على العقارات الشخصية

بيئة العقارات هنا تتسم بتداخل عوامل الحفظ التاريخي والمفاوضات المعقدة وأعلى درجات السرية. المستشارون المحنكون يضيفون قيمة عبر الوصول إلى الفرص غير المتاحة علنًا والاستفادة من شبكاتهم المحلية. مهاراتهم في إدارة المعاملات والمتطلبات المعمارية تضمن إتمام العمليات بسرية وكفاءة لأصحاب الذوق الرفيع.

تجنب المزالق الشائعة

غالبًا ما يهدر المشترون الدوليون وقتًا ثمينًا أثناء التنقل بين القوائم المكررة أو القديمة أو المضللة عبر الإنترنت، خاصةً أن ما يقرب من 30% من العقارات الفاخرة لا تظهر في السوق على الإطلاق.
يمثل وكلاء البائعين مصالح البائع وليس مصالحك، وحتى مجرد الاستفسار عن عقار قد يؤدي إلى تسجيلك كـ "عميل" لديهم دون موافقتك.
مع Baerz Property Finders & Advisors، يمكنك تجنب هذه المزالق تمامًا.
نحن نعمل حصريًا نيابة عنك، ونقدم لك تمثيلاً مستقلاً، وإرشادًا شفافًا، وإمكانية الوصول إلى كل عقار متاح، بما في ذلك الفرص الخاصة وغير المطروحة في السوق والتي لا يراها الآخرون أبدًا.

هل ترغب في معرفة كيفية الحصول على مستشار عقاري شخصي؟ اتصل بنا لتتعرف على كيفية تمثيل مصالحك وفتح السوق بالكامل أمامك.

الميزات

تكييف الهواء
نقل الملكية
السعر المطلوب
€ 1.095.000 k.k.
الحالة
verkocht onder voorbehoud
القبول
in overleg
البناء
نوع المنزل
Eengezinswoning
نوع المبنى
vrijstaande woning
فترة البناء
1969
تقييم الطاقة
E
نوع السقف
zadeldak
غرف النوم
4
الحمامات
0
المساحات السطحية والحجم
منطقة المعيشة
140 m2
مساحة داخلية أخرى
94 m2
المساحة الخارجية الملحقة بالمبنى
1 m2
مساحة التخزين الخارجية
5 m2
الحجم بالأمتار المكعبة
805 m3
حجم الأرض
273 m2
المرافق
Mechanische ventilatie
Rolluiken
Airconditioning
Schuifpui
In woonwijk
Baerz & Co Property Brochure

كتيب

فيديوهات

مخططات الطوابق

Damen Makelaardij

Ambyerstraat-Noord 72
6225 EG Maastricht

k.kruse@damen-og.nl
+31 433479090

www.damen-og.nl

طلب معلومات / مشاهدة

Kenneth Kruse profile image
Kenneth Kruse
NVM MAKELAAR - RM/RT