Ons kantoor is lid van Baerz & Co Luxury Homes; een internationaal platform dat exclusieve woningmakelaars met elkaar verbindt. Neem contact op met ons secretariaat voor meer informatie over het landelijke aanbod, waarvan u hieronder een selectie kunt bekijken.

AMSTERDAM
Govert Flinckstraat 264 H - 1073 CE
Die Niederlande

Eran Hausel profile image
Eran Hausel
Real estate agent
€1,100,000 k.k.
Wohnbereich
175m2
Grundstücksgröße
108m2
Schlafzimmer
5

Beschreibung

Das Apartment Amsterdam befindet sich an der Govert Flinckstraat im lebendigen Stadtteil De Pijp und bietet eine außergewöhnliche Kombination aus zwei eigenständigen Wohneinheiten, jeweils mit privatem Eingang und eigener Hausnummer. Diese vielseitige Immobilie erstreckt sich über 175 m² und vier Etagen und eröffnet sowohl Familien als auch Investoren vielfältige Möglichkeiten, um das authentische Zentrum von Amsterdam zu erleben. Das ungeteilte Eigentum auf eigenem Grund bietet Flexibilität zur Anpassung, sei es als großzügiges Familienhaus oder als zwei separate Wohnungen, vorbehaltlich entsprechender Genehmigungen.

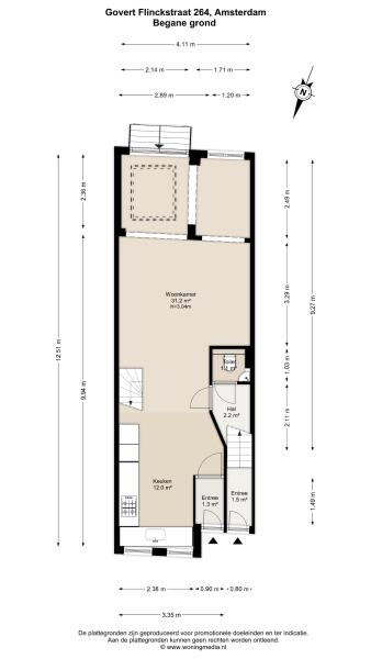
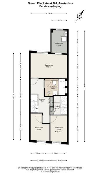
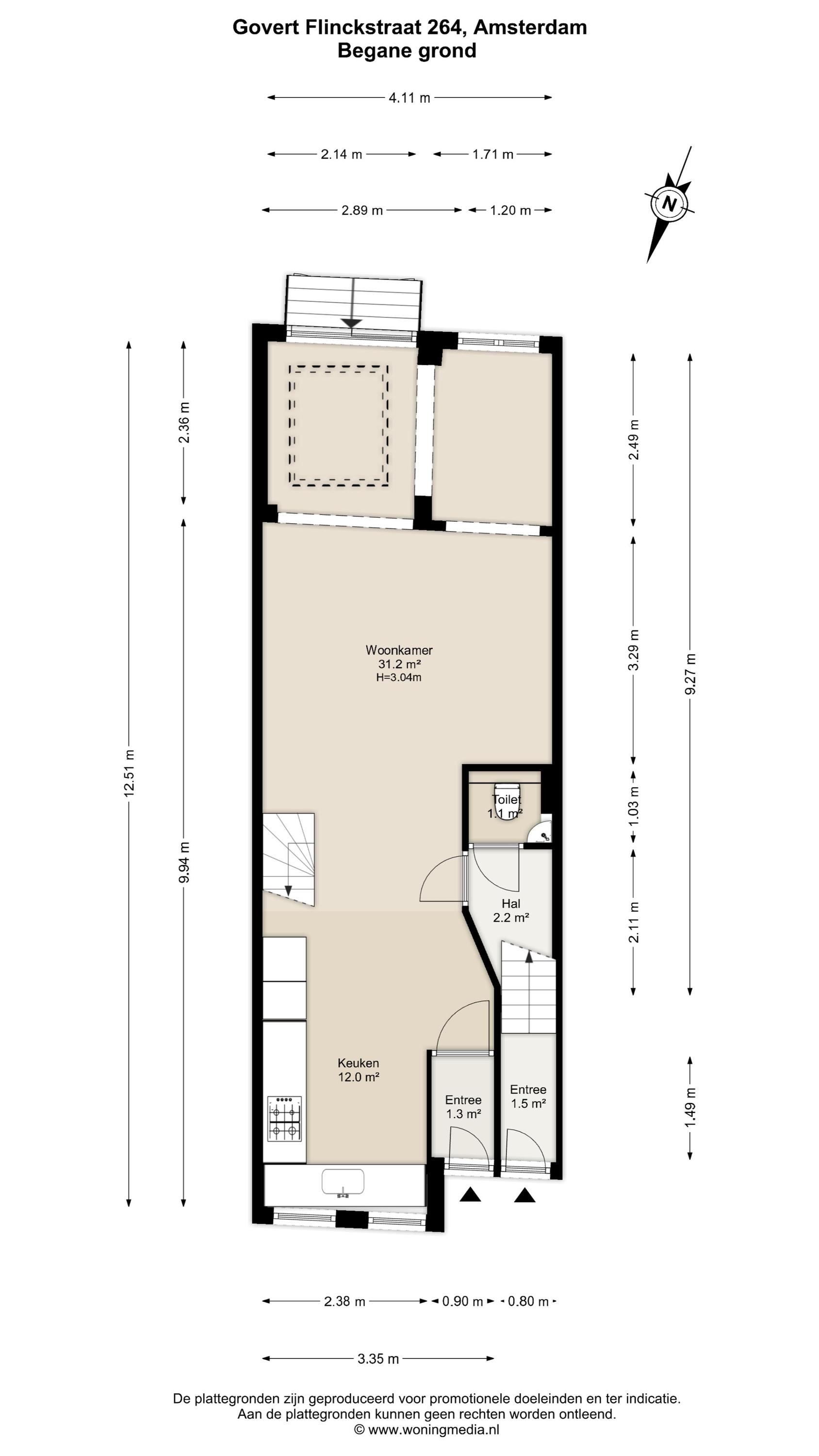
Im Erdgeschoss beeindruckt der weitläufige Wohnbereich durch eine Deckenhöhe von über drei Metern, ein Oberlicht und französische Türen, die in den rund 49 m² großen, nach Süden ausgerichteten Garten führen. Die offene Küche zur Straßenseite bietet elegante Ausblicke und ist mit Geräten wie einer Howat 3-in-1-Kocharmatur, einem Fünf-Flammen-Herd und großzügigen Stauraumlösungen ausgestattet. Im ersten Obergeschoss befinden sich drei Schlafzimmer, ein voll ausgestattetes Badezimmer mit Badewanne und begehbarer Dusche sowie ein separater Hauswirtschaftsraum.

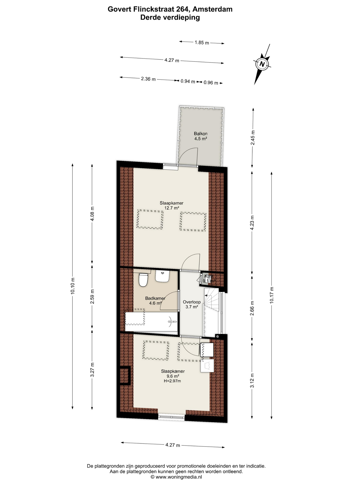
Das zweite Obergeschoss ist autonom und über einen eigenen Eingang zugänglich. Die Wohn- und Essbereiche sind lichtdurchflutet gestaltet. Eine separate Küche und ein eigenes Arbeitszimmer oder Homeoffice vervollständigen diese Ebene. Das dritte Stockwerk besticht durch seine charakteristische Dachstruktur, Gaubenfenster und Dachfenster. Hier befinden sich zwei großzügige Schlafzimmer und ein Badezimmer; das Hauptschlafzimmer hat Zugang zu einem nach Süden ausgerichteten Balkon von etwa 5 m².

In unmittelbarer Nähe zum Albert-Cuyp-Markt und Sarphatipark, umgeben von Cafés, Boutiquen und sämtlichen Alltagsannehmlichkeiten, bietet das Apartment direkten Zugang zum kulturellen und kulinarischen Leben von Amsterdam. Zentrale Verkehrsanbindungen wie die Noord/Zuid-Metro, Stadttram- und Buslinien sind schnell erreichbar; der Flughafen Schiphol ist in 15 Minuten mit dem Auto zu erreichen. Energieklasse D, Zentralheizung und die Option auf zwei Parkgenehmigungen unterstützen das zeitgemäße Wohnen. Die Wohnung verspricht einen diskreten Rückzugsort inmitten eines pulsierenden Stadtteils.

Entdecken Sie Amsterdam mit Baerz, Ihrem vertrauenswürdigen persönlichen Immobilienfinder und Berater

Der Zugang zum Luxusimmobilienmarkt von Amsterdam erfordert tiefgreifendes lokales Know-how, Diskretion und Verhandlungsgeschick. Erstklassige Berater verschaffen Zugang zu privaten Angeboten, erklären komplexe Besitzrechte und erkennen Werte in einem Markt, in dem Opportunitäten selten sichtbar werden. Beratungsteams prüfen jedes Objekt sorgfältig und vertreten Ihre Interessen souverän – sie stärken Ihre Verhandlungsposition, begleiten Transaktionen nahtlos und wahren Ihre Privatsphäre.

Häufige Fallstricke vermeiden

Internationale Käufer verlieren oft wertvolle Zeit, weil sie sich durch doppelte, veraltete oder irreführende Online-Angebote kämpfen müssen – besonders da fast 30% aller Luxusimmobilien überhaupt nicht auf dem Markt erscheinen.
Makler des Verkäufers vertreten die Interessen des Verkäufers, nicht Ihre, und schon eine einfache Anfrage kann dazu führen, dass eine Agentur Sie ohne Ihre Zustimmung als deren „Kunden“ registriert.
Mit Baerz Property Finders & Advisors umgehen Sie all diese Fallstricke vollständig.
Wir handeln ausschließlich in Ihrem Interesse, bieten unabhängige Vertretung, transparente Beratung und Zugang zu jedem verfügbaren Objekt – einschließlich privater und off-market Angebote, die andere nie zu sehen bekommen.

Neugierig, wie Sie Ihren eigenen Personal Property Advisor sichern können? Kontaktieren Sie uns, um zu erfahren, wie wir Ihre Interessen vertreten und Ihnen den gesamten Markt öffnen können.

Merkmale

Eigentumsübertragung
Verkaufspreis
€ 1.100.000 k.k.
Status
verkocht onder voorbehoud
Annahme
in overleg
Bau
Art des Hauses
Eengezinswoning
Gebäudetyp
tussenwoning
Bauzeitraum
1885
Energieausweis
D
Dachtyp
mansarde dak
Schlafzimmer
5
Badezimmer
2
Flächen und Volumen
Wohnbereich
175 m2
Andere Innenräume
0 m2
Außenbereich am Gebäude
5 m2
Volumen in Kubikmetern
611 m3
Grundstücksgröße
108 m2
Einrichtungen
Tv kabel
Natuurlijke ventilatie
In centrum
In woonwijk
Baerz & Co Property Brochure

Broschüre

Videos

Heeren Makelaars

Stadionweg 75
1077 SE Amsterdam

info@heerenmakelaars.nl
+31 204702255

www.heerenmakelaars.nl

Information / Besichtigungsanfrage

Eran Hausel profile image
Eran Hausel
Real estate agent