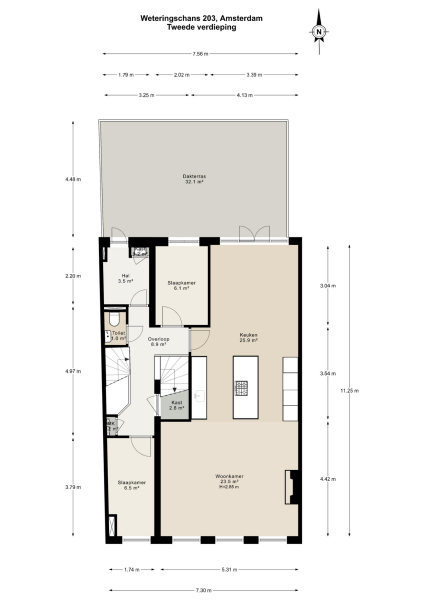
Das exklusive Maisonette-Penthouse in Amsterdam befindet sich in ruhiger Lage an der Weteringschans und bietet rund 137 m² sorgfältig renovierte Wohnfläche im Herzen der Stadt. Das Dachgeschoss erstreckt sich über die beiden obersten Etagen eines klassischen Treppengiebelhauses und überzeugt durch seine Energieeffizienzklasse A, eine großzügige Dachterrasse von 32 m² mit freiem Blick über die Lijnbaansgracht sowie ein Interieur, das Komfort und Authentizität vereint.
Das Wohnkonzept verteilt sich auf zwei Ebenen. Im zweiten Obergeschoss empfängt ein privater Vorflur in das lichtdurchflutete Wohnzimmer mit großflächigen Fenstern und originalem Kamin. Die offene Küche verbindet stilvolle Verarbeitung mit Funktionalität, verfügt über eine Kochinsel, Einbaugeräte und viel Stauraum. Französische Türen führen direkt auf die Terrasse und schaffen einen stimmungsvollen Außenbereich über dem Kanal.
Vier Schlafzimmer sind durchdacht auf beide Ebenen verteilt, wobei freiliegende Holzbalken und beeindruckende Deckenhöhen von 3,7 Metern die obere Ebene prägen. Jedes Schlafzimmer ist mit Einbauschränken versehen, im Obergeschoss ist eine Klimaanlage installiert. Das zentral gelegene Badezimmer ist mit Doppelwaschbecken, ebenerdiger Dusche und Badewanne ausgestattet. Ein begehbarer Dachboden mit 12 m² bietet zusätzlichen Stauraum.
Die Weteringschans liegt zwischen Innenstadt und dem südlichen Stadtteil, in direkter Nähe zu Straßenbahn- und U-Bahnlinien, der Utrechtsestraat, dem Albert-Cuyp-Markt sowie kulturellen Highlights wie dem Königlichen Theater Carré. Fußbodenheizung, Dach-, Wand- und Doppelglasdämmung sowie Annehmlichkeiten wie Waschmaschine, Trockner und TV-Kabelanschluss sorgen für ein urbanes Wohngefühl, das Privatsphäre mit dem pulsierenden Stadtleben verbindet. Diese luxuriöse Maisonette ist ab sofort in Amsterdam zu mieten.
Entdecken Sie Amsterdam mit Baerz, Ihrem vertrauenswürdigen persönlichen Immobilienfinder und Berater
Der Zugang zum Luxusimmobilienmarkt von Amsterdam erfordert tiefgreifendes lokales Know-how, Diskretion und Verhandlungsgeschick. Erstklassige Berater verschaffen Zugang zu privaten Angeboten, erklären komplexe Besitzrechte und erkennen Werte in einem Markt, in dem Opportunitäten selten sichtbar werden. Beratungsteams prüfen jedes Objekt sorgfältig und vertreten Ihre Interessen souverän – sie stärken Ihre Verhandlungsposition, begleiten Transaktionen nahtlos und wahren Ihre Privatsphäre.
Häufige Fallstricke vermeiden
Internationale Käufer verlieren oft wertvolle Zeit, weil sie sich durch doppelte, veraltete oder irreführende Online-Angebote kämpfen müssen – besonders da fast 30% aller Luxusimmobilien überhaupt nicht auf dem Markt erscheinen.
Makler des Verkäufers vertreten die Interessen des Verkäufers, nicht Ihre, und schon eine einfache Anfrage kann dazu führen, dass eine Agentur Sie ohne Ihre Zustimmung als deren „Kunden“ registriert.
Mit Baerz Property Finders & Advisors umgehen Sie all diese Fallstricke vollständig.
Wir handeln ausschließlich in Ihrem Interesse, bieten unabhängige Vertretung, transparente Beratung und Zugang zu jedem verfügbaren Objekt – einschließlich privater und off-market Angebote, die andere nie zu sehen bekommen.
Neugierig, wie Sie Ihren eigenen Personal Property Advisor sichern können? Kontaktieren Sie uns, um zu erfahren, wie wir Ihre Interessen vertreten und Ihnen den gesamten Markt öffnen können.