Ons kantoor is lid van Baerz & Co Luxury Homes; een internationaal platform dat exclusieve woningmakelaars met elkaar verbindt. Neem contact op met ons secretariaat voor meer informatie over het landelijke aanbod, waarvan u hieronder een selectie kunt bekijken.

SASSENHEIM
Van Pallandtlaan 24 - 2172 JJ
Niederlande

Rick Broekhof profile image
Rick Broekhof
Real estate agent
€1,295,000 k.k.
Wohnfläche
199m2
Grundstücksgröße
1130m2
Schlafzimmer
2

Beschreibung

Die Villa Sassenheim lädt zu Großzügigkeit und Privatsphäre auf einem 1.130 m² großen Grundstück in einem renommierten Wohnviertel der Niederlande ein. Diese Villa verbindet das gewachsene Fundament von 1951 mit 199 m² Wohnfläche und entfaltet eine harmonische Komposition aus klassischen und zeitgenössischen Elementen. Schon die Zufahrt begrüßt mit großzügigen Parkmöglichkeiten und führt in lichtdurchflutete Innenräume, getragen von einem L-förmigen Wohnbereich, originalen Bleiglasfenstern und Parkettböden. Helligkeit durchströmt den neueren Wintergarten und ein zusätzliches Wohnzimmer, beide mit beheizten Fliesenböden, was das Wohngefühl erweitert und flexible Nutzungsmöglichkeiten für Entspannung oder Unterhaltung eröffnet.

Im Obergeschoss befinden sich zwei jeweils ca. 15 m² große Schlafzimmer zur ruhigen Gartenseite. Das Hauptschlafzimmer verfügt über ein eigenes Bad mit Dusche, während das zweite Schlafzimmer Zugang zu einem nach Südwesten ausgerichteten Balkon bietet. Ein weiteres voll ausgestattetes Badezimmer mit Badewanne, Dusche und zwei Eingängen erhöht den Komfort zusätzlich. Das Dachgeschoss mit einer Firsthöhe von 2,3 Metern bietet Potenzial für individuelle Anpassungen.

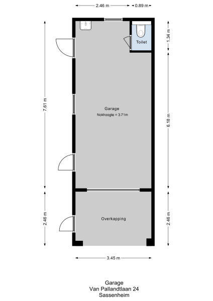
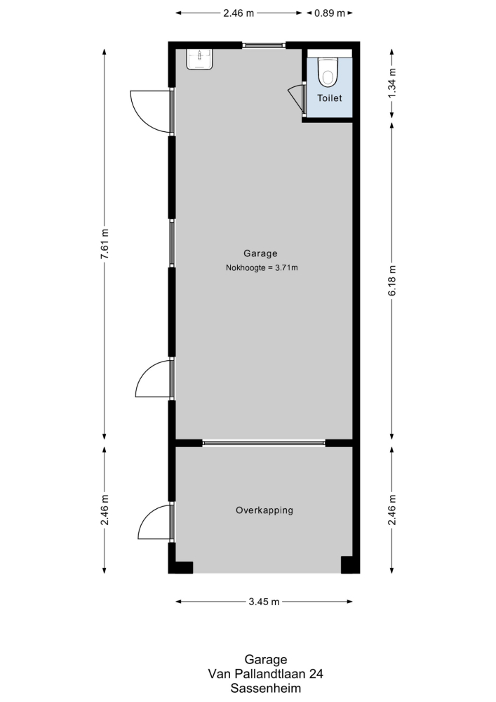
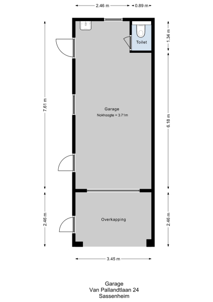
Das nahezu vollflächige Untergeschoss, von zwei Seiten zugänglich, dient derzeit als Waschküche und Lagerraum, bietet jedoch spielend Raum für Fitness, Heimkino oder Wellness-Bereich. Im Außenbereich sorgen die gestaltete Gartenanlage, zwei Zufahrten sowie eine Garage mit 26 m² und eine weitere mit 16 m² für großzügige Park- und Nutzungsmöglichkeiten. Die Villa Sassenheim ist ideal angebunden an das urbane Zentrum von Sassenheim – Geschäfte, Schulen, Gastronomie – sowie an die wichtigsten niederländischen Verkehrsadern wie die A44 und N206, mit schnellen Verbindungen nach Leiden, Amsterdam, Haarlem und Den Haag sowie zuverlässigen öffentlichen Verkehrsmitteln. Diese zum Verkauf stehende Villa in Sassenheim vereint gewachsenen Charme mit anspruchsvollen Perspektiven für ein stilvolles Leben.

Entdecken Sie Sassenheim mit Baerz, Ihrem vertrauenswürdigen persönlichen Immobilienfinder & Berater

Der gehobene Markt verlangt Diskretion und exzellente lokale Kenntnisse. Exklusive Off-Market-Angebote und vertrauliche Verhandlungen sind verbreitet. Vertrauenswürdige Berater verschaffen privilegierten Zugang, vertreten Käuferinteressen bei Strukturierung und Preisverhandlungen und vermitteln regulatorische Details und Anlagerisiken. Ihr Rat ist unerlässlich, um in diesem Markt die besten Chancen zu nutzen.

Vermeiden Sie häufige Fallstricke

Internationale Käufer verschwenden oft wertvolle Zeit mit doppelten, veralteten oder irreführenden Online-Angeboten, insbesondere da fast 30% der Luxusimmobilien nie auf dem öffentlichen Markt erscheinen. Verkäufermakler vertreten die Interessen des Verkäufers, nicht die des Käufers. Selbst die Anfrage nach Informationen zu einer Immobilie kann dazu führen, dass ein Verkäufermakler Sie ohne Ihre Zustimmung als seinen „Kunden“ registriert.
Mit Baerz Property Finders & Advisors vermeiden Sie all diese Fallstricke vollständig. Wir arbeiten ausschließlich in Ihrem Auftrag, bieten unabhängige Vertretung, klare Beratung und Zugang zu allen verfügbaren Immobilien, einschließlich Off-Market-Möglichkeiten, die andere nie zu sehen bekommen.

Interessiert an einem Personal Property Advisor?

Wir zeigen Ihnen alle verfügbaren Häuser an einem Ort. Kontaktieren Sie uns gerne, um zu erfahren, wie wir Ihre Bedürfnisse erfüllen und Ihre Interessen exklusiv schützen können.

Merkmale

Alarmsystem
Eigentumsübertragung
Verkaufspreis
€ 1.295.000 k.k.
Status
beschikbaar
Annahme
in overleg
Bau
Art des Hauses
Villa
Gebäudetyp
vrijstaande woning
Bauzeitraum
1951
Energieeffizienzklasse
E
Dachtyp
samengesteld dak
Schlafzimmer
2
Badezimmer
2
Oberflächen und Volumen
Wohnfläche
199 m2
Anderer Innenbereich
94 m2
Außenbereich am Gebäude angebaut
11 m2
Externer Stauraum
42 m2
Volumen in Kubikmetern
980 m3
Grundstücksgröße
1130 m2
Einrichtungen
Alarminstallatie
Rookkanaal
Baerz & Co Property Brochure

Broschüre

Videos

Grundrisse

Wilbrink & v.d. Vlugt Makelaars

Heereweg 231
2161 BG Lisse

info@wilbrinkvandervlugt.nl
+31 252 41 90 49

www.onsaanbod.nl

Information / Besichtigungsanfrage

Rick Broekhof profile image
Rick Broekhof
Real estate agent