Baerz & Co is een landelijk samenwerkingsverband van zorgvuldig geselecteerde boutique luxury makelaars. Samen vormen wij één netwerk, met één gedeeld aanbod. De woningen die u op onze website ziet, zijn afkomstig van alle aangesloten kantoren binnen Baerz & Co. Daardoor is niet ieder object rechtstreeks door ons kantoor in verkoop, maar door een gespecialiseerde collega binnen ons netwerk. Heeft u een woning gevonden die u aanspreekt en wilt u meer informatie? Dan brengen wij u graag persoonlijk in contact met de betreffende verkoopmakelaar, zodat u direct en zorgvuldig wordt begeleid.

'S-GRAVENHAGE
Plaats 24 A - 2513 AE
Netherlands

Beat Beeuwkes profile image
Beat Beeuwkes
Real estate agent
€1,495,000 k.k.
Living Area
171m2
Plot Size
N/A
Bedrooms
2

Description

This spacious apartment is situated in one of The Hague's most prestigious locations, directly on the charming square with breathtaking panoramic views of the Hofvijver and the parliament buildings. Located in the heart of the historic city center, it boasts infinite allure.

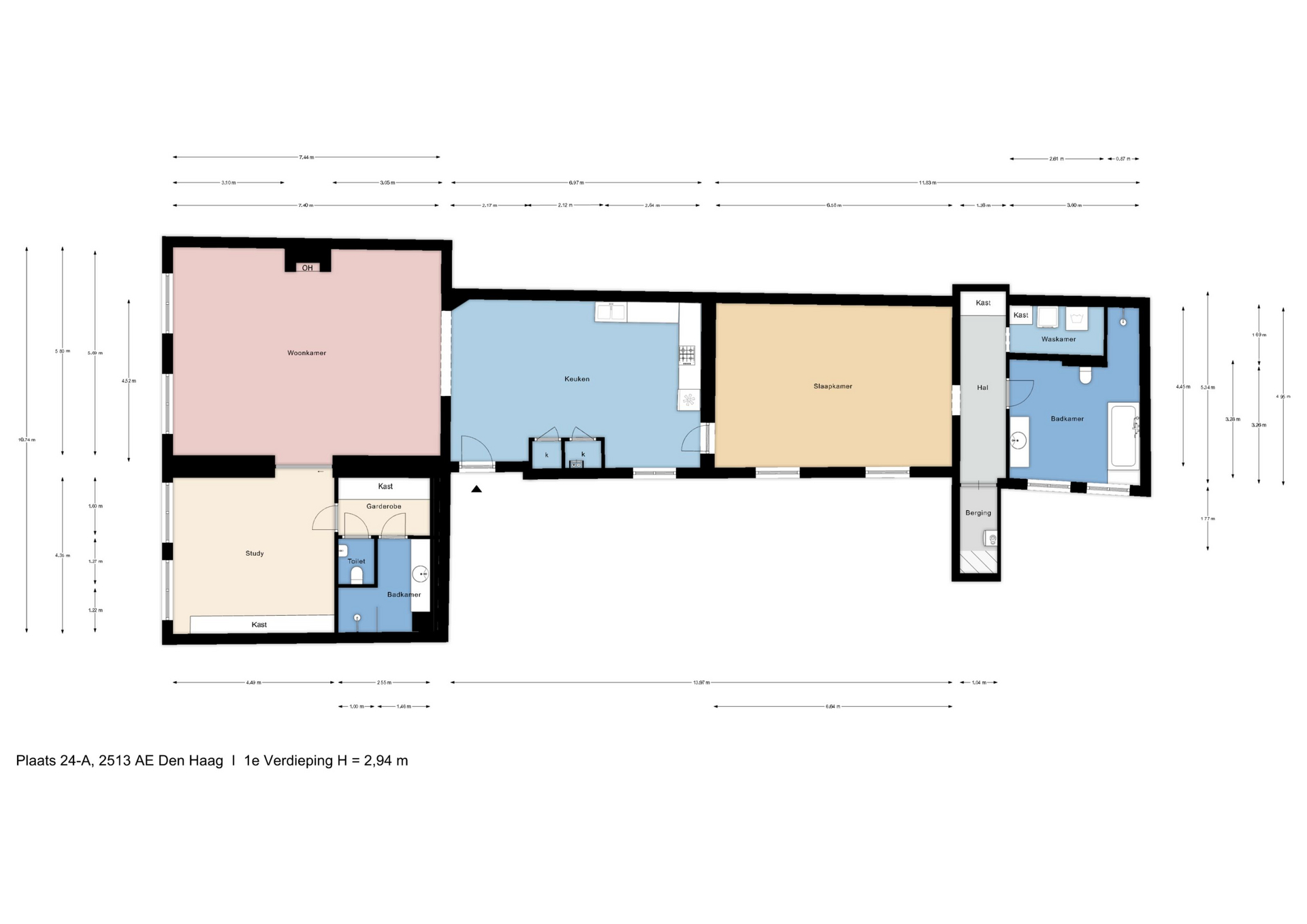
This exclusive 4-room apartment is situated on the first floor and is accessible by elevator. With a generous living area of??approximately 171 m², the apartment offers a combination of space, comfort, and elegance. The stately entrance on the ground floor, accessible via both stairs and an elevator, immediately conveys the building's high-quality character.

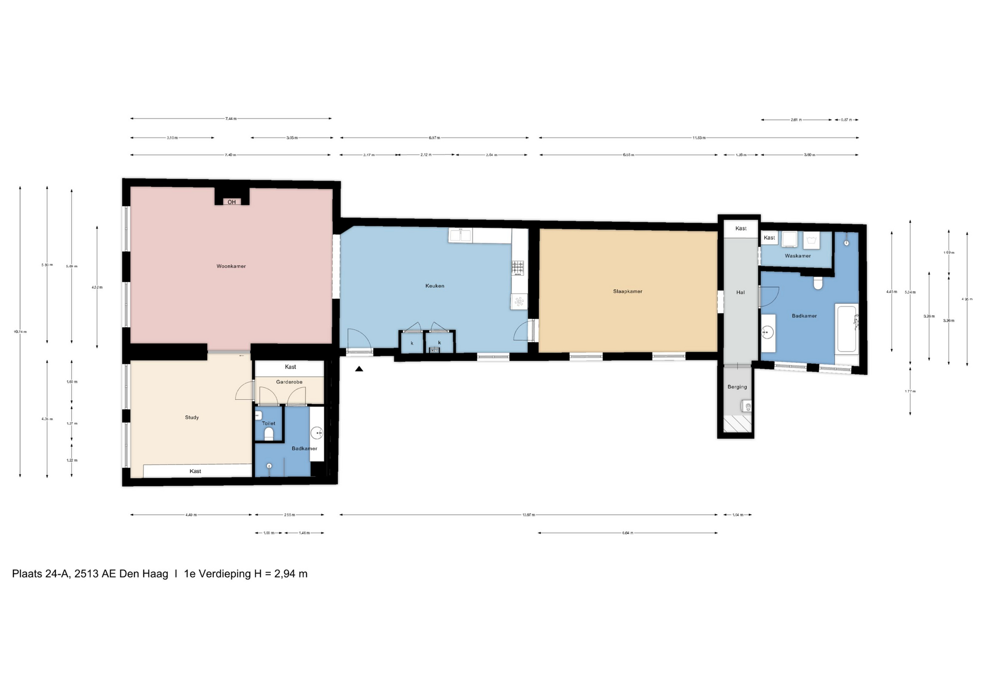
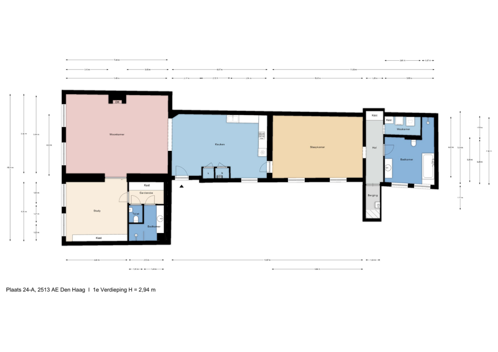
Layout:
At the front of the building is the imposing living room, high ceilings, a stylish fireplace, and a phenomenal view of the Hofvijver. From the living room, there is an elegant passageway to a spacious library or bedroom, complete with open bookcases. Adjacent is a hallway with ample closet space and a finished marble bathroom with a vanity, shower, and toilet. The kitchen is equipped with built-in appliances and ample closet space. At the rear of the apartment is the very spacious master bedroom, offering peace and privacy. This room opens onto a hallway with a walk-in closet and space for the gas central heating boiler. There is also a separate laundry room with connections for a washer and dryer and additional storage space. The second, luxurious marble bathroom features a bathtub, a spacious walk-in shower, a stylish vanity with a built-in vanity, and a toilet.

Special features:
- Unique in its kind with a luxurious entrance featuring a beautiful staircase and elevator.
- Active homeowners' association (VVE). The service costs are €289.73 per month. This includes maintenance of the elevator and common area.
- Freehold land.
- Living area 172 m²
- There is the option to rent a parking space in one of the parking garages around the corner.
- Storage room on the ground floor.
- Energy Label C.
- Age and materials clauses apply.
- Living in this unique location is a unique experience.
- Originally built in 1675.

Features

Transfer of ownership
Asking Price
€ 1.495.000 k.k.
Status
beschikbaar
Acceptance
in overleg
Construction
Kind of house
Bovenwoning
Building type
appartement
Construction period
1675
Energy rating
C
Bedrooms
2
Bathrooms
2
Surface Areas And Volume
Living Area
171 m2
Other indoor space
0 m2
Volume in cubic meters
630 m3
Facilities
Lift
In centrum
Vrij uitzicht
Baerz & Co Property Brochure

Brochure

Videos

Beeuwkes Makelaardij

Van Alkemadelaan 338
2597 AS Den Haag

info@beeuwkes.nl
+31 703143000

www.beeuwkes.nl

Information / Viewing request

Beat Beeuwkes profile image
Beat Beeuwkes
Real estate agent

Buying a Luxury Property in The Hague

The Hague offers a sophisticated community, global connectivity, and respected cultural institutions. Residents enjoy premium services, elegant surroundings, and seamless access to international amenities, all within a discreet and secure urban environment.