Vinkenstraat 80-D, 1013JV Amsterdam
Bijzonder fraai en hoogwaardig gerenoveerd dubbel bovenhuis met twee slaapkamers en twee terrassen gelegen op een prachtige locatie aan de Vinkenstraat in het centrum van Amsterdam. Het appartement wordt turn-key gemeubileerd aangeboden en is per direct beschikbaar!
Indeling
Tweede verdieping
Entree, trap naar de derde verdieping.
Derde verdieping
Lichte woonkamer met aan de voorzijde de zithoek met sfeervolle gashaard. Aan de achterzijde gelegen eetgedeelte met directe toegang tot de half open keuken voorzien van 5-pits gasfornuis, combi-oven, vaatwasser en koel-vriescombinatie. Het toilet is bereikbaar vanuit de keuken. Vanuit de eetkamer is ook toegang tot het eerste terras. Deze verdieping beschikt over diverse handige op maat gemaakte kasten, waaronder een kast met was-droogcombinatie.
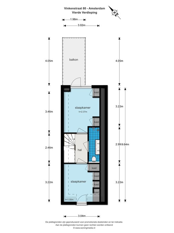
Vierde verdieping
Overloop met toegang tot alle vertrekken. Aan de voorzijde bevindt zich de eerste slaapkamer met diverse ingebouwde kasten en voorzien van airconditioning. Aan de achterzijde is de masterbedroom gelegen en ook voorzien van airconditioning en met directe toegang tot het tweede terras. De centraal op deze verdieping gelegen badkamer is voorzien van een inloop rainshower, dubbele wastafel en toilet.
Locatie
De Vinkenstraat is gelegen tussen de Brouwersgracht en de Haarlemmerdijk en is gelegen in het centrum van Amsterdam aan de rand van de grachtengordel, op loopafstand van De Jordaan, Amsterdam CS en de Dam.
De Haarlemmerdijk ligt ten noorden van de Brouwersgracht en te midden van tal van gezellige en leuke winkels, restaurants en café’s en op loopafstand van de populaire Noorder-, Wester- en Lindengrachtmarkt. De locatie is prima te bereiken zowel met diverse openbaar vervoer (trams, bussen en trein) als met eigen vervoer (Ring A10, afslag S 103).
Vinkenstraat
De strook ten zuiden van de Haarlemmerdijk en ten noorden van de Brouwersgracht, tussen de huidige Binnen Oranjestraat en het Haarlemmerplein, werd in de zestiende eeuw de Rietvink genoemd naar de oude herberg. De hier in de zeventiende eeuw aangelegde straat werd daarop afwisselend Rietstraat, Vinkenstraat en Middenstraat genoemd. Daarvan is ten slotte de naam Vinkenstraat blijven hangen. Op de Rietvink werd in 1566 de eerste openbare predicatie gehouden voor de protestanten. Binnen de stad was dat toen nog niet geoorloofd. (Bron: Stadsatlas Amsterdam)
Bijzonderheden
- Dubbel bovenhuis van ca. 67m² (NEN2580)
- Twee slaapkamers
- Twee terrassen (samen ca. 15m²)
- Turn Key gemeubileerd appartement met in de woonkamer een tweepersoons slaapbank
- Niet geschikt voor studenten
- Ook geschikt voor werkende delers
- Per 1 november beschikbaar
- Waarborgsom twee maanden kale huur
- Parkeren via vergunningsstelsel
Deze informatie is door ons met de nodige zorgvuldigheid samengesteld. Onzerzijds wordt echter geen enkele aansprakelijkheid aanvaard voor enige onvolledigheid, onjuistheid of anderszins, dan wel de gevolgen daarvan. Alle opgegeven maten en oppervlakten zijn indicatief. Koper heeft zijn eigen onderzoek plicht naar alle zaken die voor hem of haar van belang zijn. Met betrekking tot deze woning is de makelaar adviseur van verkoper. Wij adviseren u een deskundige (NVM-)makelaar in te schakelen die u begeleidt bij het aankoopproces. Indien u specifieke wensen heeft omtrent de woning, adviseren wij u deze tijdig kenbaar te maken aan uw aankopend makelaar en hiernaar zelfstandig onderzoek te (laten) doen. Indien u geen deskundige vertegenwoordiger inschakelt, acht u zich volgens de wet deskundige genoeg om alle zaken die van belang zijn te kunnen overzien. Van toepassing zijn de NVM voorwaarden.