Ons kantoor is lid van Baerz & Co Luxury Homes; een internationaal platform dat exclusieve woningmakelaars met elkaar verbindt. Neem contact op met ons secretariaat voor meer informatie over het landelijke aanbod, waarvan u hieronder een selectie kunt bekijken.

BREDA
Brabantlaan 14 - 4817 JW
Netherlands

Lennart van Oosterhout profile image
Lennart van Oosterhout
Real Estate Agent
€1,995,000 k.k.
Living Area
229m2
Plot Size
660m2
Bedrooms
4

Description

Located in the highly sought-after villa district “Van Koolwijkpark,” this exceptionally charming and fully modernized villa offers a beautiful garden surrounding the house and a completely private rear garden featuring a modern swimming pool.

This impeccably maintained residence offers, among other things, a spacious garden-oriented living room, five (bedroom/study) rooms, and two bathrooms.

The location is truly unique and set in a very quiet residential area on the edge of the city center, within cycling distance of all imaginable amenities and within walking distance of the theater, cinema, and the heart of Breda.
ENTRANCE HALL
Entrance hall with double front doors, wardrobe area, staircase to the first floor, and access to a hallway leading to:

TOILET
Guest toilet with wall-mounted WC, concealed cistern, and wash basin.

CELLAR
Full-height cellar.

FRONT ROOM
Front room (currently used as an office).
This charming space features wide oak floorboards. French doors open onto the front garden.

KITCHEN
Luxury Valcucine kitchen featuring a central island with composite countertop, stainless steel sink, Quooker combi-tap, BORA induction cooktop with integrated extractor, breakfast bar, and ample cabinet space.
The wall unit includes two refrigerators, a freezer, espresso machine, combination oven, two warming drawers, and a dishwasher.
On the opposite side, there’s a coffee corner with a small composite countertop and additional storage. A side door provides access to the garden.

DINING ROOM
The dining room adjoins the kitchen and flows seamlessly into the living room. A built-in wall unit provides generous storage and houses a gas fireplace. French doors connect this space to the garden.

LIVING ROOM
Spacious and light-filled living room with double doors to both the front and rear gardens.
This room, fully fitted with wide wooden floorboards, features a modern mantelpiece with a wood-burning insert. The lofty, open ceiling enhances the airy atmosphere. Large windows offer stunning views of both gardens.
The living and dining rooms can be separated by sliding doors.
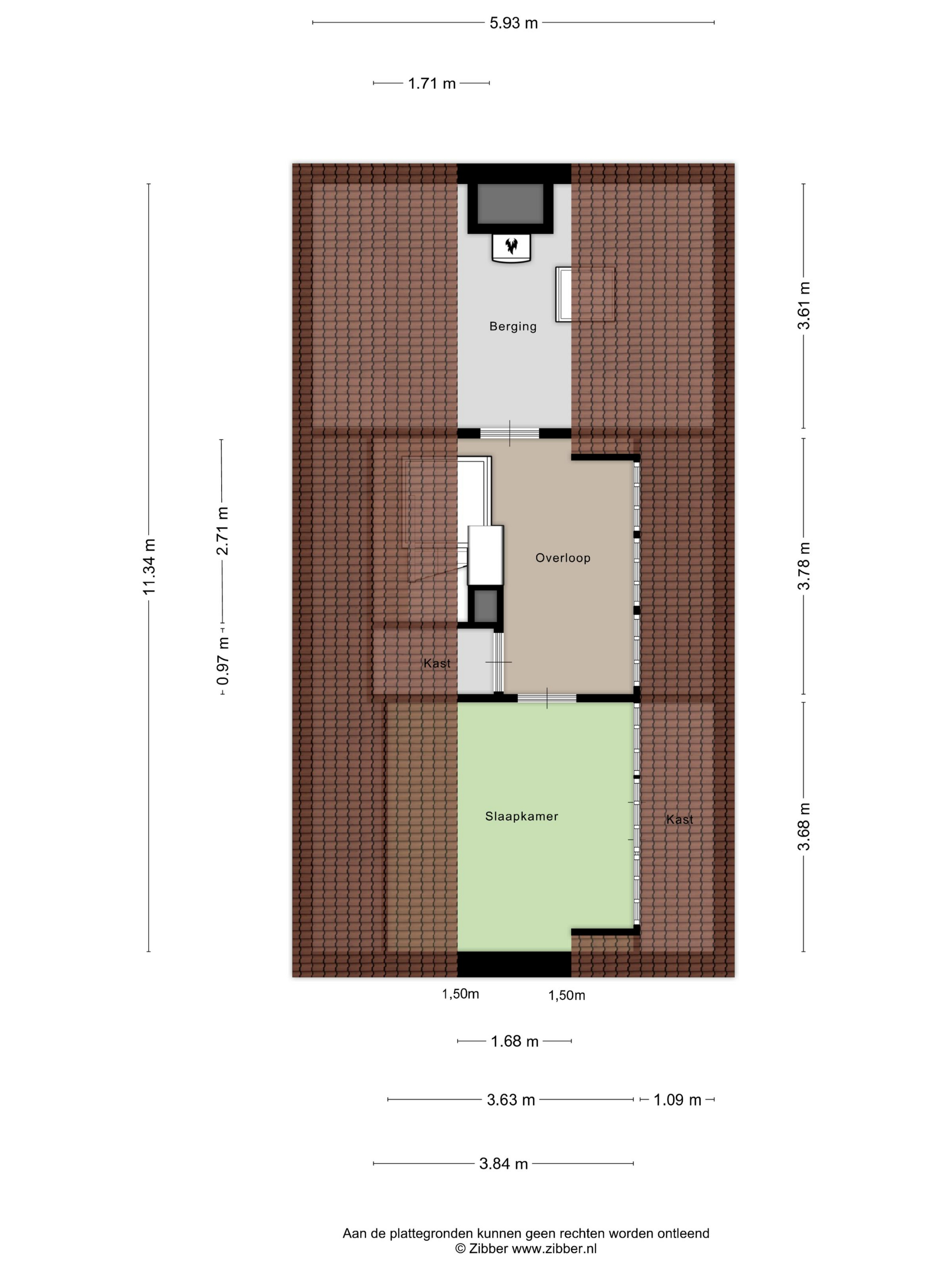
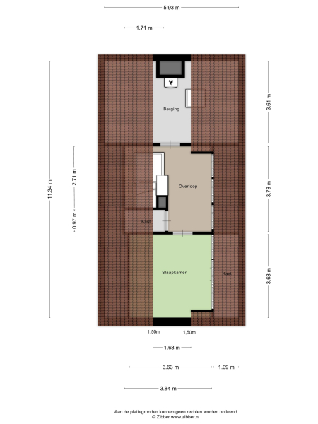
FIRST FLOOR
LANDING
Bright landing with access to the various rooms.

BEDROOM I
Spacious front bedroom with a French balcony and open roof structure adding a sense of space.
The room includes a mezzanine/loft bed and air conditioning.

Large built-in closet with connections for washing machine and dryer.
Additional built-in wardrobe.

TOILET
Separate toilet with wall-mounted WC, concealed cistern, and wash basin.

BATHROOM I
Luxurious bathroom with a large walk-in shower (hand and rain shower), bathtub with designer faucet, and vanity with double sinks.

BEDROOM II
Rear bedroom with wardrobe.

BEDROOM III (PRIMARY)
Main bedroom at the rear, offering beautiful views of the garden and adjacent park.
French doors open onto the balcony. This room also has air conditioning and a large fitted wardrobe on the side wall.

BATHROOM II
En-suite second bathroom with walk-in shower (dual showerheads with thermostatic controls), vanity unit, and toilet with concealed cistern.
SECOND FLOOR
LANDING
Landing with dormer window and a comfortable work area, including a built-in closet.
A Velux skylight at the front provides extra daylight.

BEDROOM IV
Rear bedroom with dormer window and storage space behind the knee walls. Also equipped with air conditioning.

ATTIC
Attic space housing the mechanical ventilation unit and Remeha central heating combi boiler.
GARDEN
The garden, designed by Ronnie Renette (Arterior), features a lawn, a modern sleek swimming pool with automatic solar cover and heat pump, and multiple terraces.
Borders are filled with a variety of plants and ornamental grasses, complemented by several trees and hedges for a lush yet structured appearance.

STORAGE / OUTBUILDING
Next to the house is a large outbuilding equipped with water and electricity connections.
It contains the fully automatic pool system and an additional fuse box. The space offers ample room for gardening tools, bicycles, and more.
At the front, an electrically operated gate secures the driveway, providing parking for multiple cars.

ADDITIONAL INFORMATION
•The property is partly fitted with floor insulation, fully insulated roof and walls, and double glazing throughout.
•19 solar panels are installed.
•The main electrical panel has 16 circuits, with a second fuse box in the garage.
•The first and second floors feature wide wooden flooring; the ground floor has natural stone in the hall, kitchen, and dining room, and wide wooden flooring in the living room.

Features

Swimming pool
Solar panels
Air conditioning
Transfer of ownership
Asking Price
€ 1.995.000 k.k.
Status
verkocht onder voorbehoud
Acceptance
in overleg
Construction
Kind of house
Villa
Building type
vrijstaande woning
Construction period
1955
Energy rating
D
Bedrooms
4
Bathrooms
2
Surface Areas And Volume
Living Area
229 m2
Other indoor space
44 m2
Exterior space attached to the buildinge
28 m2
Volume in cubic meters
1010 m3
Plot Size
660 m2
Facilities
Mechanische ventilatie
Zwembad
Airconditioning
Dakraam
Zonnepanelen
Baerz & Co Property Brochure

Brochure

Videos

Floor Plans

Storimans en Partners

Ginnekenweg 161
4818 JD Breda

lvanoosterhout@storimansenpartners.nl
+31 76 522 60 90

www.storimansenpartners.nl

Information / Viewing request

Lennart van Oosterhout profile image
Lennart van Oosterhout
Real Estate Agent