Baerz & Co is een landelijk samenwerkingsverband van zorgvuldig geselecteerde boutique luxury makelaars. Samen vormen wij één netwerk, met één gedeeld aanbod. De woningen die u op onze website ziet, zijn afkomstig van alle aangesloten kantoren binnen Baerz & Co. Daardoor is niet ieder object rechtstreeks door ons kantoor in verkoop, maar door een gespecialiseerde collega binnen ons netwerk. Heeft u een woning gevonden die u aanspreekt en wilt u meer informatie? Dan brengen wij u graag persoonlijk in contact met de betreffende verkoopmakelaar, zodat u direct en zorgvuldig wordt begeleid.

LISSE
Achterweg-zuid 56 - 2161 DZ
Netherlands

Frits Wilbrink profile image
Frits Wilbrink
Real estate agent
€3,950,000 k.k.
Living Area
590m2
Plot Size
10170m2
Bedrooms
6

Description

Unique and spacious country house (built in 2009) with a charm that you don't often see. This attractive country house is situated in a fantastic location in the middle of the bulb fields, a stone's throw from Keukenhof and the Keukenhof forest. The villa has been built using high-quality materials and is equipped with every luxury and comfort. Water surrounding the property, the electrically operated decorative gate with anti-intrusion bollard, the cameras, and automatic outdoor lighting provide extra security.

• 6 bedrooms
• 2 bathrooms
• Wellness center
• Gym
• Large garage building

Year of construction 2009; Living area 590m2; Usable area of outbuilding 352m2; Volume of villa 2,859m3; Plot 10,170m2

The country house;
Through the electrically operated entrance gate, we drive up the driveway to the house.
There is ample parking space for several cars.

Ground floor;
The electrically unlockable door at the front leads us to the hall, where luxury, space, and comfort are immediately apparent.
At the front of the house is the large luxury kitchen, equipped with a sink island and luxury built-in appliances, a gas fireplace, and French doors to the terrace. The large, cozy living room also has a gas fireplace, French doors to the terrace, and access to the kitchen and the spacious, cozy dining room through steel revolving doors. Hidden behind a door in the hall is the luxurious trio of bedroom, dressing room, and bathroom. This spacious master bedroom with gas fireplace overlooks and has access to the garden. There is also a separate toilet.
At the rear of the house is a second entrance with stairs to the upper floor.

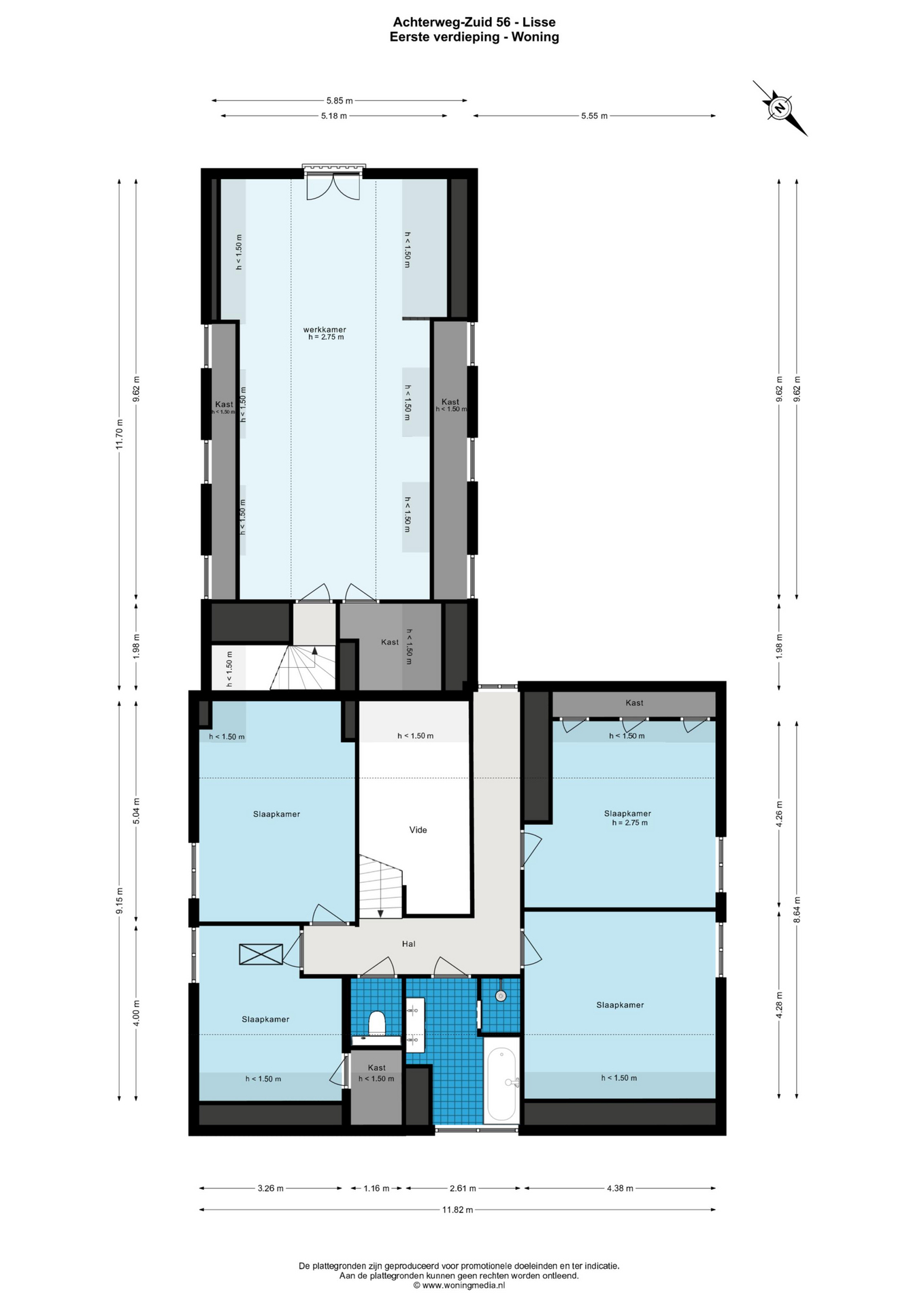
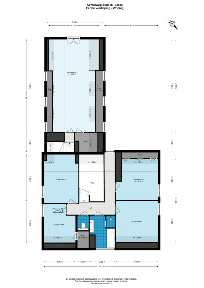
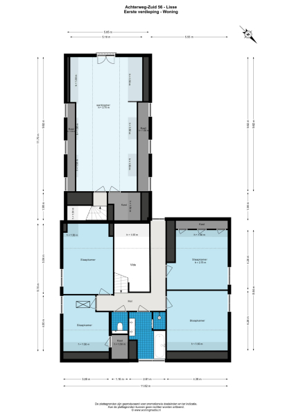
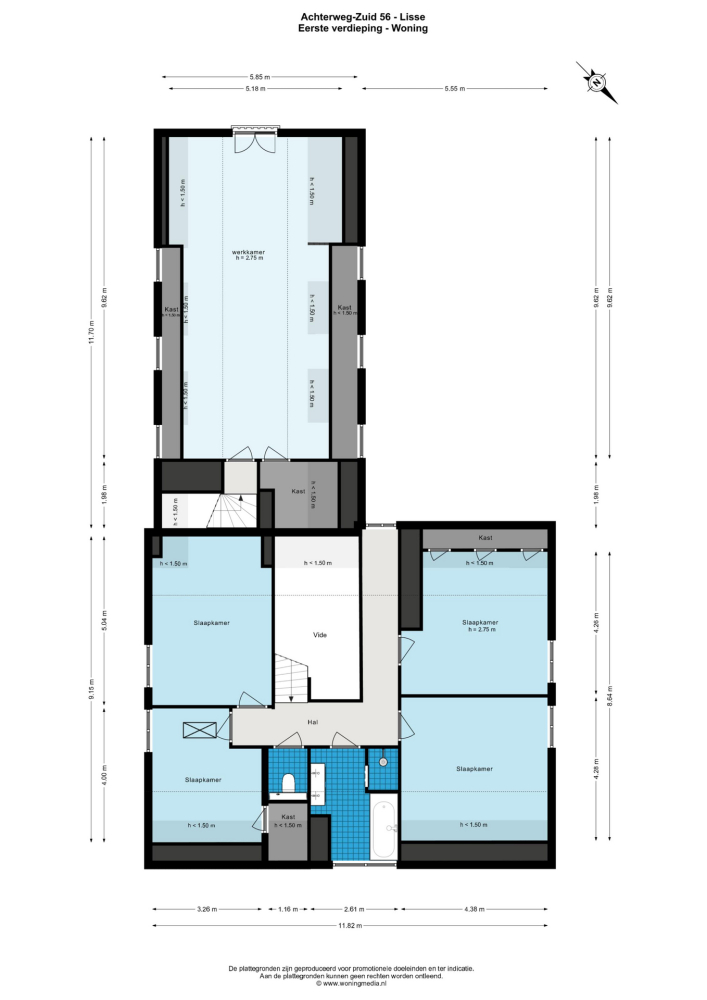
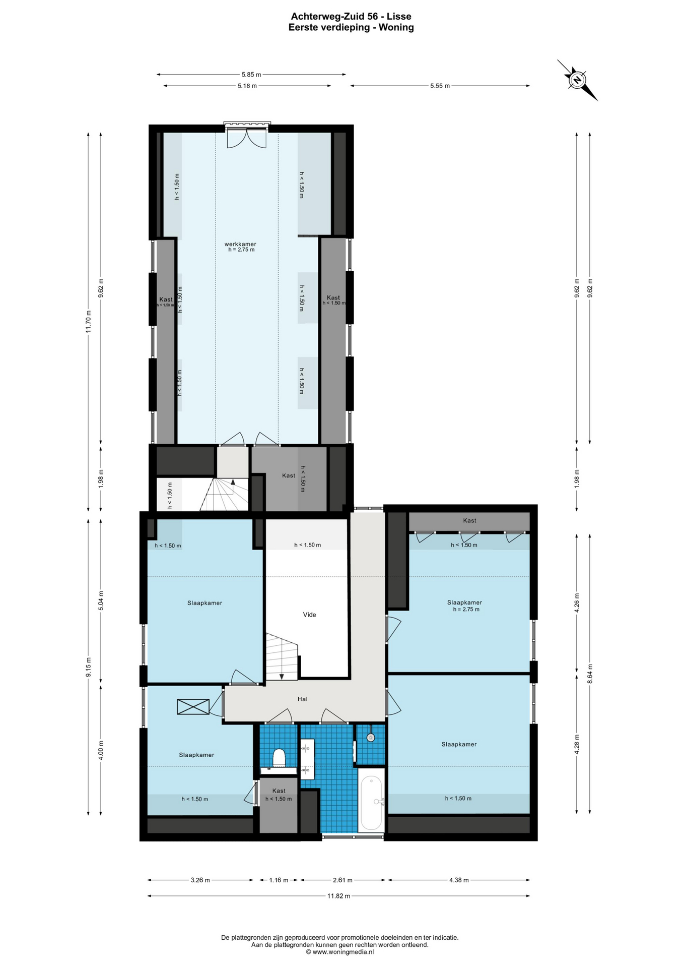
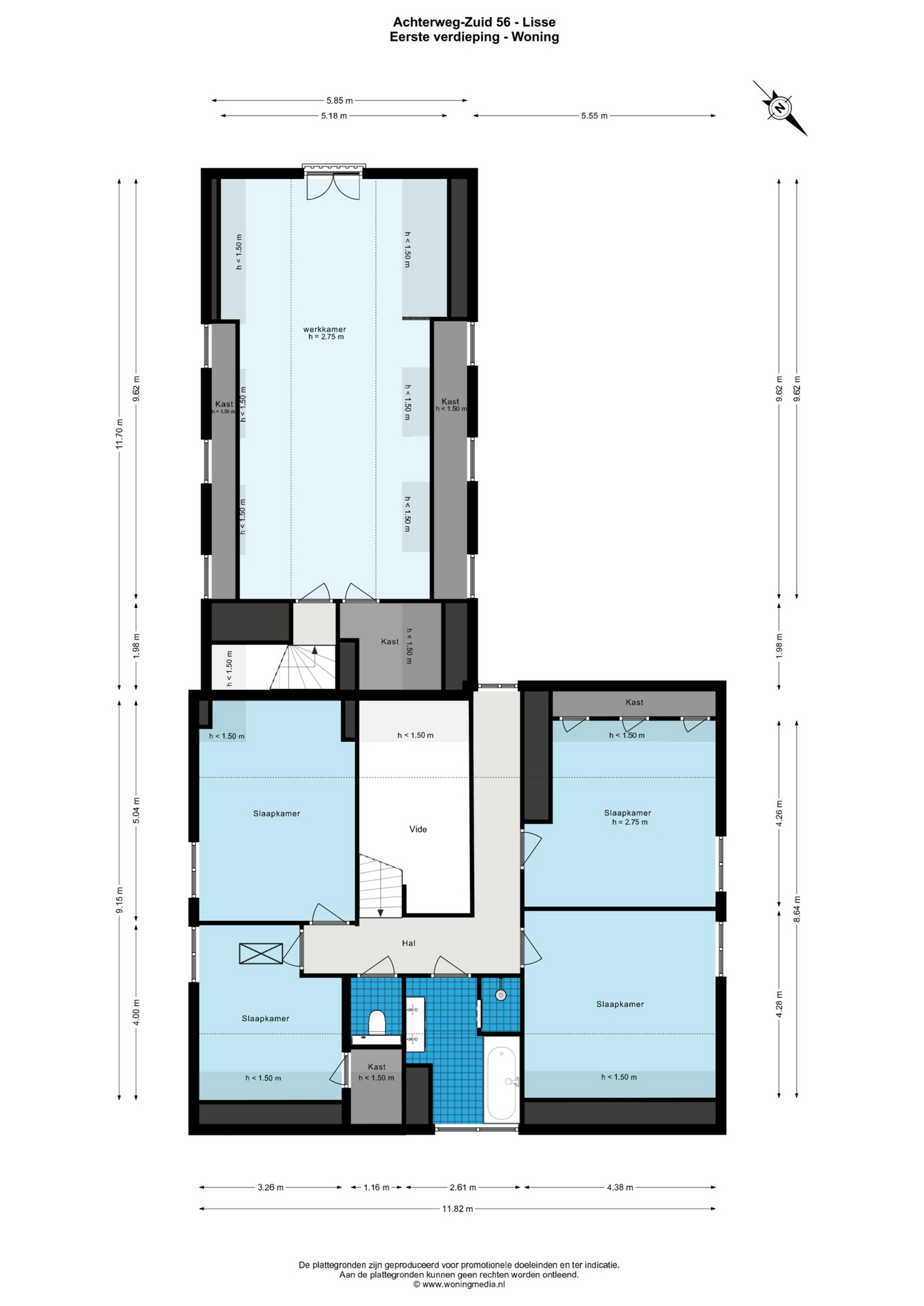
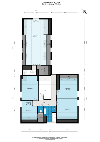
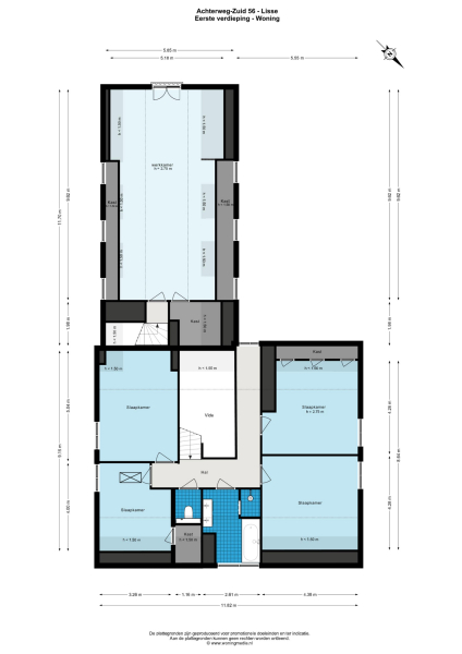
Second floor:
The illuminated, centrally located staircase leads us to the sleeping area, where there are four spacious bedrooms with beautiful views, a second luxurious bathroom, and a separate toilet. The staircase at the rear of the house leads to a very large room with built-in cupboards and six dormer windows, which is currently used as a study. Here, too, we can enjoy beautiful views.

Basement;
We don't even have to leave the house for wellness; in the basement, which includes a Finnish sauna, a Turkish steam bath, and a relaxation room, you can relax and unwind. There is also a fitness room, a chill room with a bar, and French doors opening onto the outdoor patio. This space can also be used for an au pair or for double occupancy.

Attic;
The attic is accessible via a loft ladder and houses the central heating boilers, the hot water boiler, and the motor for the professional extractor hood.

Garage building;
The luxurious detached garage offers parking space for 6 cars. The entire space has underfloor heating and there is a car bridge for working on your (hobby) car. This building could potentially be converted into living space.

Sustainability;
• Wall insulation
• Roof insulation
• Floor insulation
• Underfloor heating
• Heat pump
• Energy label B

Garden;
The plot is surrounded by water and enclosed by an electric decorative fence with anti-intrusion bollards. The spacious garden has several terraces, verandas, 2 ponds, beautiful trees, hedges, and flower beds. Here you can enjoy the scents and colors of the bulb fields.
The alarm system with intercom and cameras provides extra security.

Location;
When you say Lisse, you immediately think of Keukenhof and flower bulb fields.
This villa is beautifully situated between the bulb fields and within walking distance of Keukenhof, Keukenhof Castle, and the surrounding forest. The center of Lisse, with its many shops and cozy restaurants, is within walking/cycling distance, and the beach, sea, and dunes can also be reached by bike. Amsterdam/Schiphol, Leiden, Haarlem, and The Hague are 30 minutes away by car.

Details:
• exceptionally beautiful and luxurious country house;
• traditionally built;
• large plot of private land;
• panoramic view over the flower bulb fields;
• decorative fence with anti-intrusion bollard for security;
• wooden tapis floors with white wash finish on the ground floor;
• bedroom, dressing room, and bathroom on the ground floor;
• home automation for lighting, heating/cooling, sun blinds, etc.;
• Goods lift from the basement to the first floor;
• Laundry chute;
• Heat pump with 12 sources;
• Pressure tank;
• 2 central heating systems + boiler;
• Water softener;
• Full basement;
• Several skylights for natural light and ventilation in the basement;
• wellness area in the basement;
• large laundry room in the basement;
• camera surveillance with tracking system;
• high ceilings;
• underfloor heating throughout the house;
• speakers in ceilings;
• Naim sound system;
• cooling ceilings;
• alarm system with intercom and cameras;
• 2 verandas;
• zinc gutters and downspouts;
• lightning rod;
• the plot is surrounded by water;
• the plot has two large ponds;
• large detached garage building with toilet, pantry, and car bridge;
• space for 6 cars in the garage with electric doors and underfloor heating;
• connection for electric car charging point.

Features

Alarm system
Transfer of ownership
Asking Price
€ 3.950.000 k.k.
Status
beschikbaar
Acceptance
in overleg
Construction
Kind of house
Landhuis
Building type
vrijstaande woning
Construction period
2009
Energy rating
A+
Roof type
samengesteld dak
Bedrooms
6
Bathrooms
2
Surface Areas And Volume
Living Area
590 m2
Other indoor space
31 m2
Exterior space attached to the buildinge
20 m2
External storage space
352 m2
Volume in cubic meters
2859 m3
Plot Size
10170 m2
Facilities
Alarminstallatie
Lift
Stoomcabine
Rookkanaal
Frans balkon
Domotica
Aan water
Aan rustige weg
Vrij uitzicht
Open ligging
Buiten bebouwde kom
In bosrijke omgeving
Landelijk gelegen
Baerz & Co Property Brochure

Brochure

Videos

Wilbrink & v.d. Vlugt Makelaars

Heereweg 231
2161 BG Lisse

info@wilbrinkvandervlugt.nl
+31 252 41 90 49

www.onsaanbod.nl

Information / Viewing request

Frits Wilbrink profile image
Frits Wilbrink
Real estate agent

Buying a Luxury Property in Lisse

Lisse invites residents to embrace a harmonious lifestyle, blending tradition with refined modernity. The town’s exclusive homes, vibrant cultural scene, and seamless connectivity offer a compelling choice for internationally minded families, investors, and discerning buyers.