Ons kantoor is lid van Baerz & Co Luxury Homes; een internationaal platform dat exclusieve woningmakelaars met elkaar verbindt. Neem contact op met ons secretariaat voor meer informatie over het landelijke aanbod, waarvan u hieronder een selectie kunt bekijken.

NES
Soarremoarre 1 - 8494 NA
Netherlands

Ellen Schoneveld profile image
Ellen Schoneveld
Real Estate Agent
€745,000 k.k.
Living Area
159m2
Plot Size
2300m2
Bedrooms
3

Description

Farmhouse with Secluded Woodland Garden and Outbuildings near Botmeer

Hidden amidst the greenery, surrounded by meadows near Akkrum and adjacent to the nature reserve of the Frisian Lakes, lies this characterful farmhouse with a private woodland garden and several outbuildings. A place where the beauty of the outdoors is ever-present: grazing cows at the doorstep, hares performing their courtship dance, roe deer feeding on young grass – and above all, the ever-changing Frisian skies that lend the landscape a truly picturesque setting.

This monumental Old Frisian longhouse from 1764 is instantly recognisable by its continuous gable roof and six-pane windows. The current owners have adapted the property to modern comfort: the living quarters are insulated, largely double-glazed, and designed for ground-floor living with, among other features, an attractive bathroom and spacious bedroom.

Upstairs, the front house offers two bedrooms, while the generous rear section still provides ample scope for further expansion. On the grounds you will find several outbuildings, including a garden house with workshop, a traditional pipe wagon, a carport and various animal enclosures.

The plot of more than 2,300 m² is accessible via an electric gate and comprises a woodland garden with terraces, an orchard, and a safely fenced garden adjoining the kitchen terrace – ideal for children or pets. An oasis of peace and freedom, where you can fully embrace nature and tranquillity while all amenities remain close at hand. A true paradise for those who love walking, cycling and boating.

Layout
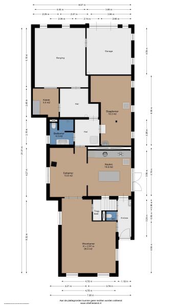
Ground floor
The front entrance opens into a hall with access to the living room, guest WC, staircase and kitchen. The kitchen – installed in 2025 and fitted with modern built-in appliances – is the heart of the home. French doors open to the south-facing terrace, flooding the space with light and offering views over the garden and meadows beyond. Adjacent is the dining room ensuite, which seamlessly connects to the cosy living room. Here, the six-pane windows overlook the front garden with its monumental tree as a proud centrepiece.
Beyond the dining room, a hall leads to the bathroom with shower, toilet and washbasin. The ground-floor master bedroom features characteristic stable windows, a private washbasin and a snug seating area – an intimate, romantic retreat. The ground floor is finished with sturdy whitewashed wooden floors and heated by radiators.

First floor
A closed staircase from the hall leads to two simple bedrooms beneath the pitched roof, each with windows and a skylight.

Rear section
The rear part of the farmhouse contains a utility room with laundry connections, a garage and storage space, and offers excellent potential for extending the living area. Large timber stable doors at the back provide wide access – even for a car or camper.

Key features
*Nationally listed monumental longhouse dating from 1764
*Sheltered plot of approx. 2,300 m²
*Ground-floor living with bedroom and bathroom
*Modernised, including solar panels
*Panoramic views across the Frisian pastures
*Spacious indoor barn and several outbuildings
*Energy label not required for Rijksmonument
*Surprisingly low energy costs
*Suitable for living, working, B&B or tea garden

Nes (Municipality of Heerenveen) – Rural living near Akkrum
In the heart of Friesland, a stone’s throw from the lively watersports village of Akkrum, lies the charming village of Nes. This characteristic village breathes tranquillity and authenticity, surrounded by wide meadows and waterways that make the region so beloved. Within minutes you reach Akkrum, where you will find a full range of amenities: shops, restaurants, schools and a railway station with direct connections to Leeuwarden, Heerenveen and Zwolle.
For lovers of water and nature, the location is ideal: via the Meinesleat and the Boarn you can sail straight into the Frisian Lakes. The surroundings invite you to cycle, walk and sail – with the vibrancy of Akkrum and Grou nearby, yet with the calm embrace of the Frisian countryside around you.
The central location makes Nes easily accessible: within minutes you are on the A32 towards the Randstad or the northern provinces. In short, Nes offers the best of both worlds – rural charm and tranquillity combined with excellent connections and nearby amenities.

Disclaimer
This information has been compiled with the utmost care from various sources. We cannot, however, accept any liability for possible inaccuracies and/or incompleteness, nor can any rights be derived from the content (including attachments/brochures). This information is non-binding and intended solely as an invitation to make an offer. For properties older than 25 years, the age and asbestos clauses will be included in the purchase agreement.

Features

Solar panels
Transfer of ownership
Asking Price
€ 745.000 k.k.
Status
verkocht onder voorbehoud
Acceptance
in overleg
Construction
Kind of house
Woonboerderij
Building type
vrijstaande woning
Construction period
1764
Roof type
zadeldak
Bedrooms
3
Bathrooms
1
Surface Areas And Volume
Living Area
159 m2
Other indoor space
39 m2
External storage space
64 m2
Volume in cubic meters
695 m3
Plot Size
2300 m2
Facilities
Rookkanaal
Dakraam
Glasvezel kabel
Zonnepanelen
Natuurlijke ventilatie
Aan water
Aan rustige weg
Vrij uitzicht
Beschutte ligging
Landelijk gelegen
Baerz & Co Property Brochure

Brochure

Videos

Villa Friesland Makelaardij

Lange Marktstraat 1
8911 AD Leeuwarden

info@villafriesland.nl
+31 (0)58 - 23 006 23

www.villafriesland.nl

Information / Viewing request

Ellen Schoneveld profile image
Ellen Schoneveld
Real Estate Agent

Buying a Luxury Property in Nes

Nes blends refined rural living with cultural depth, offering discreet luxury homes for families and individuals valuing privacy and heritage. The community, curated services, and international outlook foster a uniquely appealing lifestyle.