Baerz & Co is een landelijk samenwerkingsverband van zorgvuldig geselecteerde boutique luxury makelaars. Samen vormen wij één netwerk, met één gedeeld aanbod. De woningen die u op onze website ziet, zijn afkomstig van alle aangesloten kantoren binnen Baerz & Co. Daardoor is niet ieder object rechtstreeks door ons kantoor in verkoop, maar door een gespecialiseerde collega binnen ons netwerk. Heeft u een woning gevonden die u aanspreekt en wilt u meer informatie? Dan brengen wij u graag persoonlijk in contact met de betreffende verkoopmakelaar, zodat u direct en zorgvuldig wordt begeleid.

OLDENZAAL
Hoge Haerlaan 29 - 7573 BV
Netherlands

€1,295,000
Living Area
244m2
Plot Size
751m2
Bedrooms
5

Description

Detached house Oldenzaal stands at a prime location, showcasing the grand lines of 1930s architecture combined with the comfort of today. Designed by C. Hardeman and fully renovated in 2003, this freestanding residence offers a living area of 244 m², placed on a generous 751 m² plot. The first impression reveals timeless curb appeal, enhanced inside by authentic details and exceptional natural light throughout.

Life along Hoge Haerlaan means enjoying tranquility and space, with daily amenities close by. The ground floor welcomes you via a covered entrance and spacious vestibule, leading to a home office framed by an elegant bay window. The living room’s expansive windows and conservatory invite daylight and open outwards into the serene south east-facing garden, enriched with multiple terraces and layered greenery. A fireplace-warmed kitchen features high-end appliances and opens onto a covered terrace. Practical spaces extend to a larder-height cellar, utility room, and ample garage.

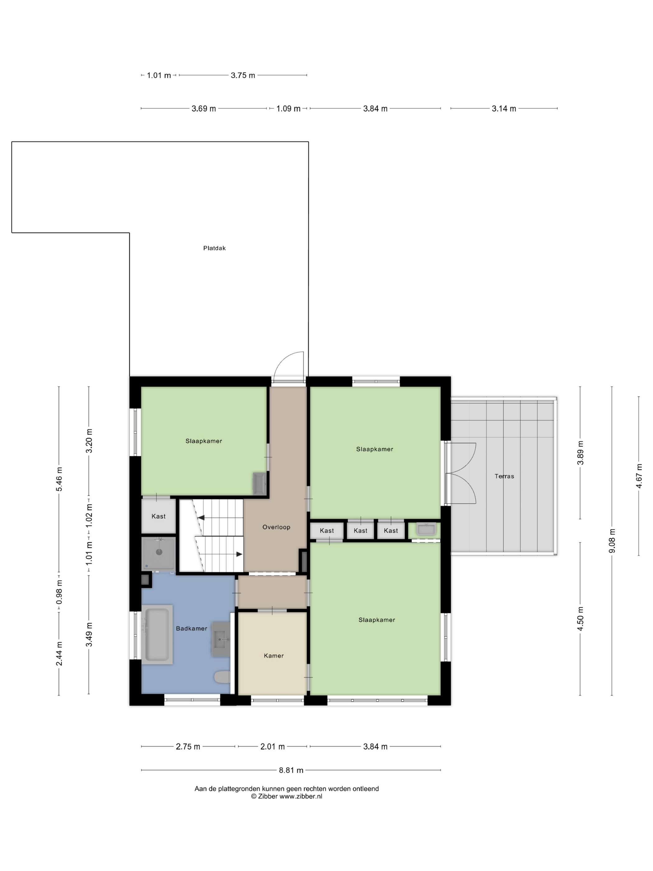
Detached house Oldenzaal provides five bedrooms across three levels, including a master suite with balcony views onto the surrounding countryside. Two bathrooms offer comfort, while original joinery, partial underfloor heating, solar panels, comprehensive insulation, and energy class C add further appeal. A sense of privacy, architectural quality, and continuity is felt in every space.

Features

Solar panels
Transfer of ownership
Asking Price
€ 1.295.000
Status
beschikbaar
Acceptance
in overleg
Construction
Kind of house
Eengezinswoning
Building type
vrijstaande woning
Construction period
1928
Energy rating
C
Roof type
tentdak
Bedrooms
5
Bathrooms
2
Surface Areas And Volume
Living Area
244 m2
Other indoor space
11 m2
Exterior space attached to the buildinge
34 m2
External storage space
29 m2
Volume in cubic meters
948 m3
Plot Size
751 m2
Facilities
Tv kabel
Glasvezel kabel
Zonnepanelen
Natuurlijke ventilatie
Aan rustige weg
In woonwijk
Baerz & Co Property Brochure

Brochure

Videos

360 Panoramas

360°
360 Panorama - Hoge Haerlaan 29
360°
360 Panorama - Hoge Haerlaan 29
360°
360 Panorama - Hoge Haerlaan 29
360°
360 Panorama - Hoge Haerlaan 29
360°
360 Panorama - Hoge Haerlaan 29
360°
360 Panorama - Hoge Haerlaan 29
360°
360 Panorama - Hoge Haerlaan 29
360°
360 Panorama - Hoge Haerlaan 29
360°
360 Panorama - Hoge Haerlaan 29
360°
360 Panorama - Hoge Haerlaan 29
360°
360 Panorama - Hoge Haerlaan 29
360°
360 Panorama - Hoge Haerlaan 29
360°
360 Panorama - Hoge Haerlaan 29
360°
360 Panorama - Hoge Haerlaan 29
360°
360 Panorama - Hoge Haerlaan 29
360°
360 Panorama - Hoge Haerlaan 29
360°
360 Panorama - Hoge Haerlaan 29
360°
360 Panorama - Hoge Haerlaan 29
360°
360 Panorama - Hoge Haerlaan 29
360°
360 Panorama - Hoge Haerlaan 29
360°
360 Panorama - Hoge Haerlaan 29
360°
360 Panorama - Hoge Haerlaan 29
360°
360 Panorama - Hoge Haerlaan 29
360°
360 Panorama - Hoge Haerlaan 29

Floor Plans

KockvanBenthem Makelaars

Bisschopstraat 18
7571 CZ Oldenzaal

bk@kvbm.nl
+31 541 52 20 22

www.kvbm.nl

Information / Viewing request

Bert Kock profile image
Bert Kock
Real Estate Agent

Buying a Luxury Property in Oldenzaal

Oldenzaal offers an inviting blend of privacy, cultural richness, and world-class amenities. Its exclusive homes, supportive community, and international outlook attract discerning residents seeking comfort, security, and understated elegance.