Welkom bij Raad-Huis Makelaardij Internationaal. Ook ver buiten Nederland zijn wij zeer actief. Via ons internationale netwerk binnen Baerz & Co Luxury Homes begeleiden onze Nederlandse (!) partners u vakkundig bij de aankoop van exclusieve tweede huizen. U vindt ons in 20 landen rond de Middellandse zee, de Alpen, Mexico en Dubai. Neem voor meer informatie contact op met ons secretariaat.

PRIMOšTEN
Croatia

Dino Purić profile image
Dino Purić
Personal Property Advisor
€1,400,000
Living Area
473m2
Plot Size
294m2
Bedrooms
4

Description

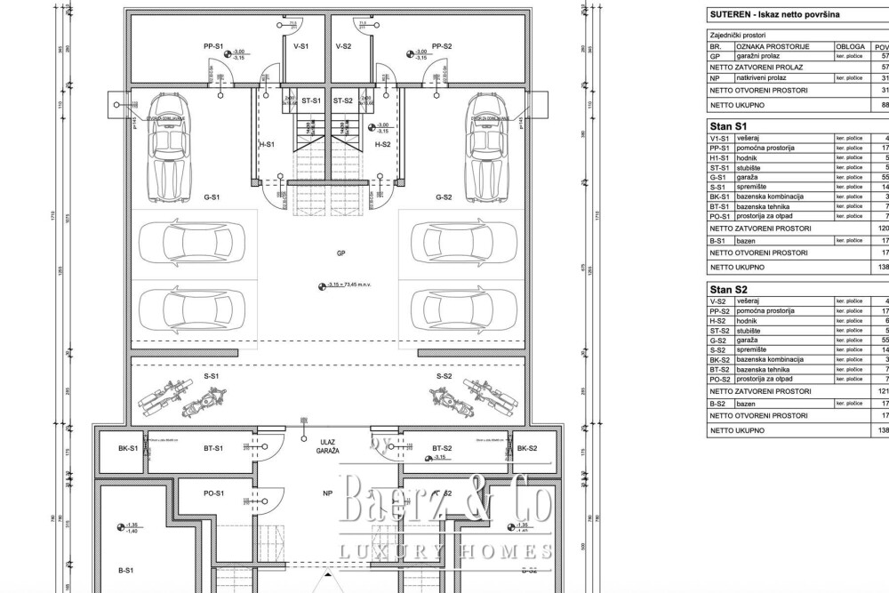
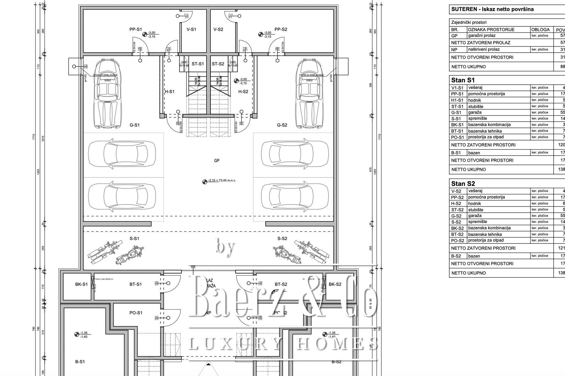
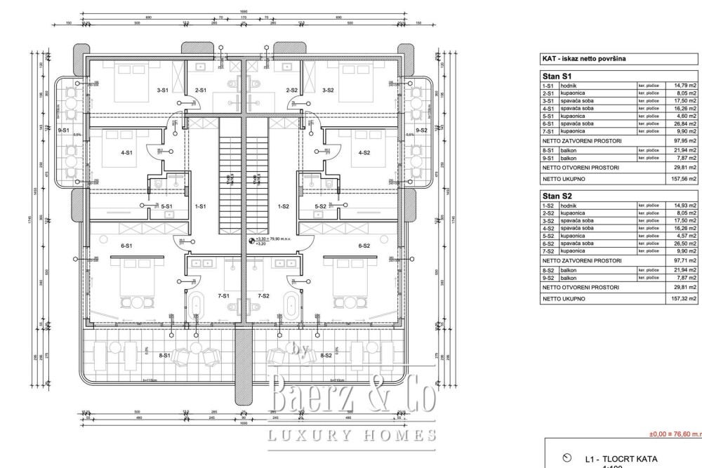
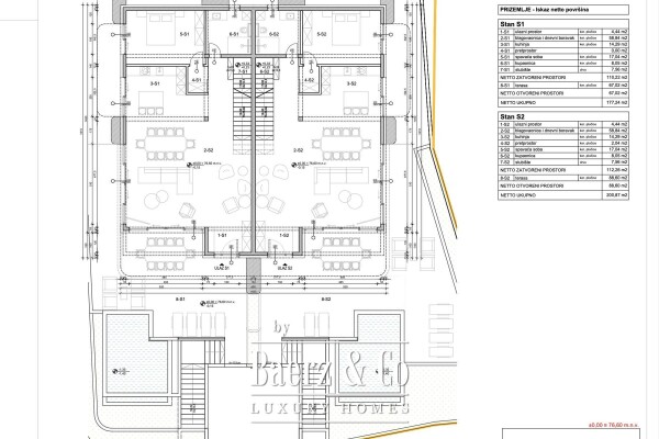
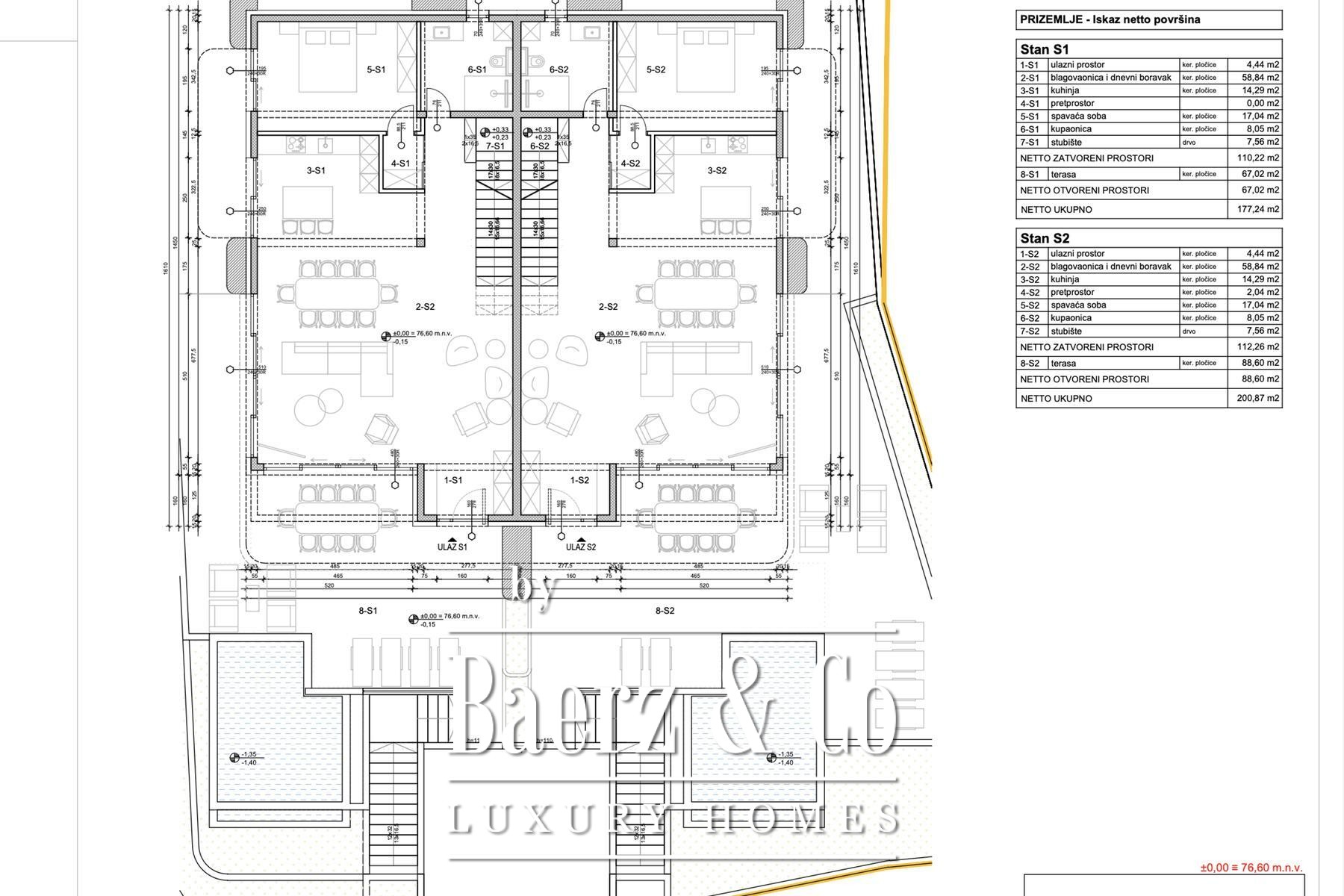
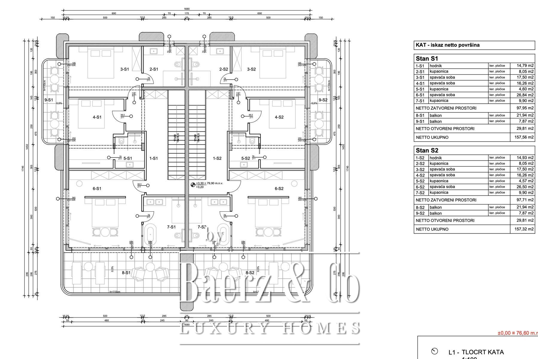
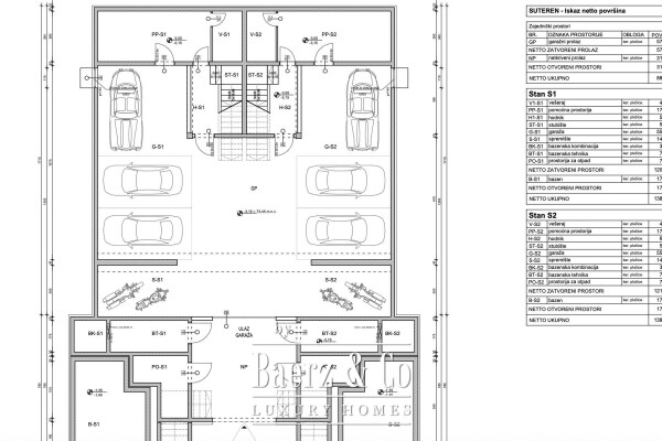
Semi-detached villa Primošten stands within a thoughtfully conceived resort, offering 473.04 m² of living space set over three floors. This residence integrates functionality with architectural clarity, with four bedrooms and four bathrooms designed for fluid daily life and privacy. The lower level presents a capacious garage accommodating three vehicles, complemented by storage, a laundry room and pool facilities, underscoring a quiet focus on utility.

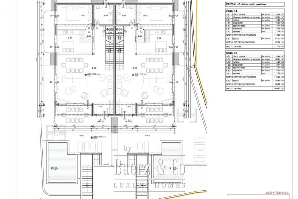
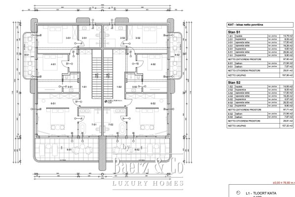
Ascending to the ground floor, a graphic open-plan living and dining area adjoins a well-appointed kitchen, connecting seamlessly to an expansive terrace with a private swimming pool and dedicated sunbathing space. The first floor holds three en suite bedrooms, each with balcony access and unobstructed Adriatic views, while a fourth bedroom is located on the ground level for accessibility and ease.

Every detail, from top-tier materials to smart home systems, supports effortless living. The villa ensures both seclusion and a connection to the vibrant Dalmatian coast, minutes from award-winning pebble beaches and the historic center of Primošten. Olive groves and vineyards surround the plot of 294 m², creating a rare sense of calm, yet Split Airport, Šibenik and Split remain within reach. This luxury villa for sale in Primošten embodies understated prestige and access to the cultural and culinary richness of Croatia’s Adriatic coast.

Explore Primošten with Baerz, Your Trusted Personal Property Finder & Advisor

Navigating Primošten’s exclusive property environment demands not just local knowledge but also discretion and access to off-market opportunities rarely seen online. Experienced advisors unlock options otherwise unavailable, coordinate negotiations with tact, and guide clients through nuanced purchasing structures. Amidst high demand and limited supply, personal representation is essential for identifying, acquiring, and preserving the most desirable assets, providing clarity at each step from initial search to closing.

Features

Transfer of ownership
Asking Price
€ 1.400.000
Reference
883840
EUR
Construction
Kind of house
Villa
Bedrooms
4
Bathrooms
4
Surface Areas And Volume
Living Area
473 m2
Plot Size
294 m2
Baerz & Co Property Brochure

Brochure

Videos

Information / Viewing request

Dino Purić profile image
Dino Purić
Personal Property Advisor

Buying a Luxury Property in Primošten

Primošten offers a refined coastal enclave, uniting tranquility, high-calibre services, and an international community. Bespoke luxury properties and an enviable lifestyle attract those seeking discretion, authenticity, and the benefits of Adriatic living.