Ons kantoor is lid van Baerz & Co Luxury Homes; een internationaal platform dat exclusieve woningmakelaars met elkaar verbindt. Neem contact op met ons secretariaat voor meer informatie over het landelijke aanbod, waarvan u hieronder een selectie kunt bekijken.

RHENEN
Herenstraat 84 - 3911 JG
Netherlands

Wistik Zonnenberg profile image
Wistik Zonnenberg
Register Makelaar Taxateur/ Eigenaar
€899,950 k.k.
Living Area
209m2
Plot Size
1295m2
Bedrooms
4

Description

The single family house Rhenen stands as an authentic residence shaped by 209 m² of flexible living space, arranged to provide privacy, comfort, and future potential. Positioned on the edge of Rhenen’s historic center, this home offers immediate access to local amenities, lush Utrechtse Heuvelrug forests, and inspiring views of the Rhine River landscape.

A stately entrance, marked by original detailing, establishes an immediate sense of place. Inside, the spatial rhythm unfolds across an open living room with natural light filtering through generous windows, accentuated by a period mantelpiece, ceiling ornaments, and a warm wooden floor. Adjoining spaces include a dedicated kitchen, practical utility room, and a versatile office, all accessible from a broad hallway that links the home’s daily functions.

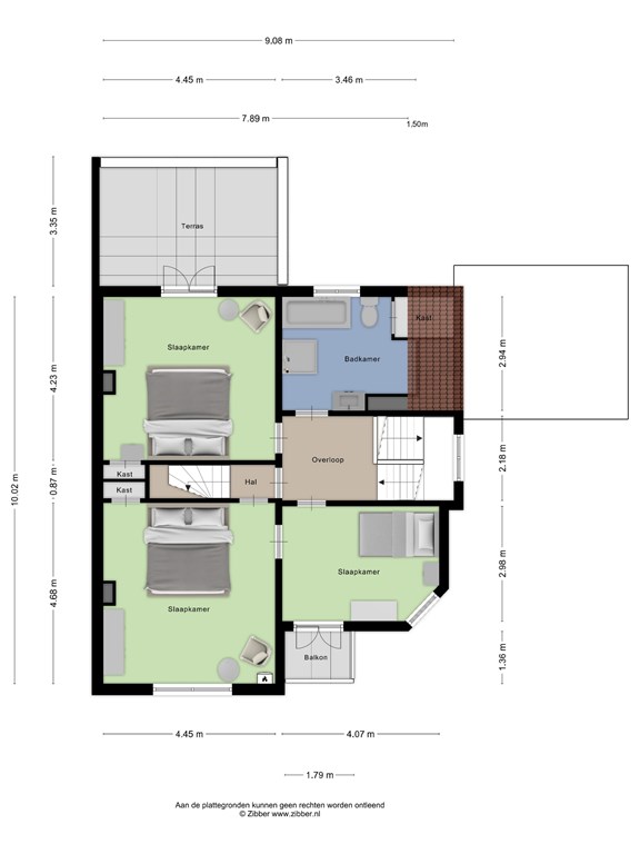
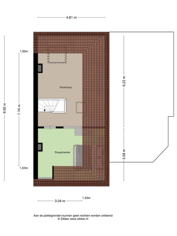
Upstairs, four bedrooms provide flexibility for family living, home working, or guest accommodation. Each room benefits from light and outlook, with features such as French doors to a roof terrace and a private balcony. The bathroom offers a full suite including shower, bath, and ample storage. The top floor, with exposed beams beneath the historical roofline, presents opportunity for further expansion.

The 1,295 m² plot holds a south-facing garden for private outdoor living, framed by mature greenery and ample space for al fresco gatherings, potential extensions, or a quiet retreat. Practicalities include two cellars, partial double glazing, public parking, and reliable connection infrastructure including fiber internet and cable.

This single family house for sale in Rhenen offers a rare convergence of proportion, authenticity, and scope for bespoke modernisation, all in a location that balances tranquility with connectivity. The property’s sense of inheritance is matched by flexibility, inviting its next owner to shape it further while preserving its inherent charm.

Explore Rhenen with Baerz, Your Trusted Personal Property Finder & Advisor

Navigating exclusive Rhenen real estate requires more than market listings. Advisors grant privileged access to discreet transactions and heritage estates, often unavailable publicly. Their expertise in assessing authenticity, architectural potential, and vendor motivation ensures buyers and sellers make confident, strategic decisions. With deep local insight and negotiation finesse, professional guidance streamlines acquisition processes and protects interests throughout complex transactions.

Features

Transfer of ownership
Asking Price
€ 899.950 k.k.
Status
Available
Acceptance
In Concert
Reference
08084
Construction
Kind of house
Single Family House
Building type
Semi Detached House One Roof
Construction period
1902
Energy rating
F
Roof type
composite
Bedrooms
4
Bathrooms
1
Surface Areas And Volume
Living Area
209 m2
Other indoor space
24 m2
Exterior space attached to the buildinge
37 m2
External storage space
6 m2
Volume in cubic meters
825 m3
Plot Size
1295 m2
Facilities
Balcony
Cable Tv
Fireplace
Fluetube
Not Furnished
Garden
Internetconnection
Phoneline
Skylight
Storageroom
Not Upholstered
Baerz & Co Property Brochure

Brochure

Videos

Floor Plans

Zonnenberg Makelaardij

Kerkewijk 108
3904 JG Veenendaal

info@zonnenbergmakelaardij.nl
+31 318 559600

www.zonnenbergmakelaardij.nl

Information / Viewing request

Wistik Zonnenberg profile image
Wistik Zonnenberg
Register Makelaar Taxateur/ Eigenaar