Ons kantoor is lid van Baerz & Co Luxury Homes; een internationaal platform dat exclusieve woningmakelaars met elkaar verbindt. Neem contact op met ons secretariaat voor meer informatie over het landelijke aanbod, waarvan u hieronder een selectie kunt bekijken.

Herenhuis for sale in ROTTERDAM

ROTTERDAM Plasoord 5 - 3054 LJ The Netherlands


Joris van Oosten profile image
Joris van Oosten
Real Estate Agent
+31 6 42 19 84 37
info@vanoostenmakelaardij.nl

J.J. Van Oosten Makelaardij BV
Straatweg 225
3054 AG Rotterdam
NETHERLANDS
+31 10 422 11 00
www.vanoostenmakelaardij.nl
info@vanoostenmakelaardij.nl

Living area
234m2
Plot size
197m2
Bedrooms
6

Description

It doesn't get more romantic than this, the world is at your feet! With a sloop at the backyard you sail from the Bergse Voorplas onto the Rotte, and then via the Maas you can moor anywhere in the world. Wonderful to dream and fantasize about.... A day trip with the sloop to Delft or a weekend in Gouda or the Biesbosch are certainly among the possibilities.

It is also a dream to live here more locally. On a dead-end street with a garden directly on the Bergse Voorplas and located a stone's throw from all the amenities that the village center of Hillegersberg has to offer. An evening in the city? Just 20 minutes by bike or even faster with tram 4 you are at a wide range of restaurants, Schouwburg, de Doelen, various cinemas, etc.

The mansion is surprisingly large and this has been achieved partly by adding a completely new floor with very spacious standing height under the house and a large extension on the ground floor. The entire block of houses consisting of 4 houses was provided with a new foundation more than 10 years ago. 3 of the 4 houses have an identical extension realized at the rear on the ground floor, which makes the appearance homogeneous and very beneficial. As if it has always been like this from the construction.

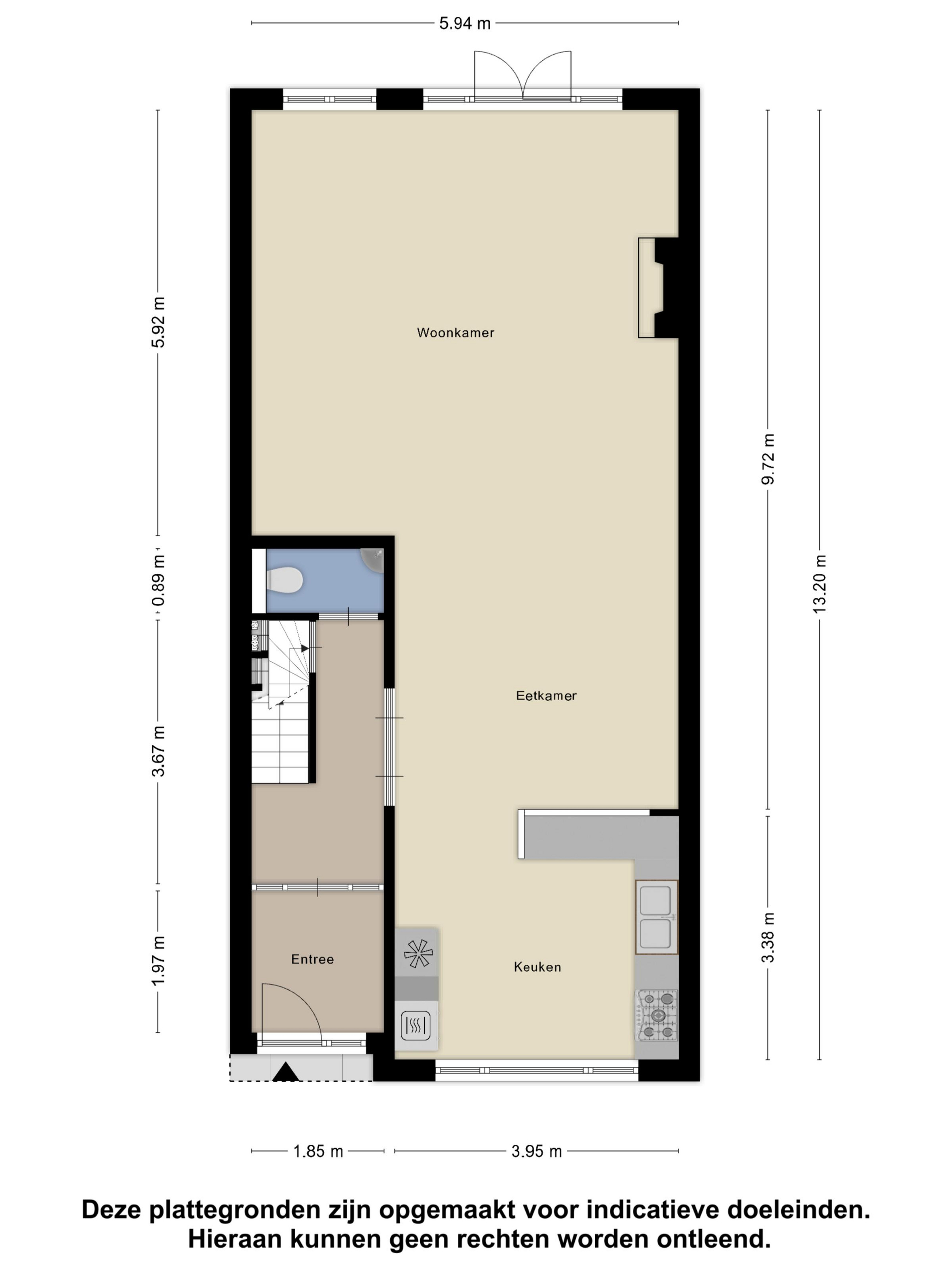
Layout:
ground floor: entrance, vestibule with original marble wainscoting, granite floor and stained glass windows and draught door, hall with staircase, extra spacious toilet with toilet and washbasin, double doors to the living room and kitchen, originally the kitchen was at the rear, but now the open kitchen is at the front, which gives the extended living room a width of almost 6 meters over the entire width of the house, the living room has a well-positioned gas fireplace that you can sit around. By means of 2 Sola tubes, a surprising amount of extra daylight enters the living room. From the living room, patio doors give access to the terrace and the back garden (also largely piled) with, among other things, a terrace/deck on the water where you can relax. There is room for 1 sloop/boat at the jetty.

First floor: wide landing with separate toilet with WC and washbasin, master bedroom at the rear with fitted wardrobes, en-suite bathroom and patio doors to the spacious roof terrace. The bathroom has a WC, shower, duo corner bath and washbasin. There are also 2 bedrooms at the front.

2nd floor: landing with also a separate toilet, bedroom at the rear with dormer window and wardrobe wall where the central heating is also located, bedroom at the front with dormer window, 2nd bathroom with bath with shower, washbasin and space for a washing machine and dryer next to each other.

Basement: full-fledged floor with a comfortable height, multifunctional use as a children's domain, home office, home cinema, guest house, etc. There is a 3rd bathroom with shower, toilet and sink. At the front is a storage room or work space. At the rear there is access to the back garden.

Back garden: located on the northeast, but due to the depth of over 20 meters from the extension on the ground floor, the garden offers sun for the majority of the day. The back garden tapers somewhat, starts at the house with a width of approx. 6 meters and at the waterfront approx. 3 meters.

Special features;
- built in 1927
- situated on 197m2 private land
- energy label B
- foundation repair (pile head lowering) carried out in 2013/2014, together the entire block of houses
- usable living area approx. 234 m² (according to NEN2580 measurement)
- usable building-related outdoor area approx. 18 m² (according to NEN2580 measurement)
- fully equipped with hardwood frames (2001) with double glazing
- central heating and hot water by means of a central heating combi boiler
- the bathroom in the basement is equipped with hot water by means of an electric boiler
- 14 solar panels present, installed in 2015

Delivery in consultation/can be done soon.

For additional information about this property, you can visit the seller's website (address + house number).

J.J. van Oosten Makelaardij is the NVM broker of the seller. We advise you to engage your own NVM broker to represent your interests when purchasing this property.

No rights can be derived from this offer text.

The usable surface area of ??the property has been measured in accordance with the industry-wide measurement instruction (BBMI). The BBMI is based on the NEN2580. The BBMI is intended to apply a more uniform method of measuring to provide an indication of the usable surface area. The measurement instruction does not completely exclude differences in measurement results, for example due to differences in interpretation, rounding or limitations when performing the measurement.

Features

Transfer of ownership
price
€ 1.595.000 k.k.
Status
beschikbaar
Acceptance
in overleg
Construction
Kind of house
Herenhuis
Building type
tussenwoning
Construction period
1927
Energy rating
B
Roof type
zadeldak
Bedrooms
6
Bathrooms
3
Surface Areas And Volume
Living area
234 m2
Other indoor space
0 m2
Exterior space attached to the building
18 m2
Volume in cubic meters
829 m3
Plot size
197 m2
facilities
Mechanische ventilatie
Tv kabel
Buitenzonwering
Natuurlijke ventilatie
Aan water
Aan rustige weg
In woonwijk
Vrij uitzicht
Aan vaarwater
Baerz & Co Property Brochure

Brochure

Information / Viewing request

Videos

Photos

Floor Plans