Ons kantoor is lid van Baerz & Co Luxury Homes; een internationaal platform dat exclusieve woningmakelaars met elkaar verbindt. Neem contact op met ons secretariaat voor meer informatie over het landelijke aanbod, waarvan u hieronder een selectie kunt bekijken.

Villa for sale in Veenendaal

Veenendaal Gelders Benedeneind 6 - 3907 KW The Netherlands


Wistik Zonnenberg profile image
Wistik Zonnenberg
Real Estate Agent
+31 318 559600
info@zonnenbergmakelaardij.nl

Zonnenberg Makelaardij
Kerkewijk 108
3904 JG Veenendaal
NETHERLANDS
+31 318 559600
www.zonnenbergmakelaardij.nl
info@zonnenbergmakelaardij.nl

Living area
175m2
Plot size
1450m2
Bedrooms
2

Description

Instapklaar genieten van ultieme luxe, rust en privacy – royale villa direct aan het water.

Wauw. Sommige huizen laten je simpelweg niet meer los – en deze fantastische, instapklare villa aan het water is daar een perfect voorbeeld van. Zodra je de oprit oprijdt, voel je het: hier klopt álles. De rust, het groen, de ruimte, de sfeer – het is een plek waar je zó je dozen wil uitpakken en nooit meer weg wil. Met een royale living, luxe keuken, stijlvolle badkamer en heerlijke slaapverdieping is het binnen al pure verwennerij.
Mocht de woonoppervlakte niet voldoende zijn? Denk aan een extra slaapkamer of werkkamer op de begane grond. Dan dient u van 150m2 vergunningsvrij bouwen de bijgebouwen af te halen (veranda, carport, sauna) dit kan zonder vergunning bijgebouwd worden. Uiteraard verwijzen wij u naar de website omgevingswet van de overheid.
Buiten gaat het feest gewoon door: een riante tuin met vuurplaats, een sfeervolle veranda met buitenhaard, een moderne sauna, een aanlegsteiger aan het water én overal uitzicht op groen. Of je nu wilt onthaasten met een boek in het zonnetje, gezellig wilt borrelen met vrienden of een frisse duik wilt nemen op een warme dag – hier leef je écht. Alles is tot in de puntjes verzorgd, met hoogwaardige materialen, strak afgewerkte ruimtes en een prachtige balans tussen comfort en stijl. Een huis dat voelt als vakantie, elke dag opnieuw. Klinkt dat als jouw droom? Lees dan vooral verder.

De buurt
Je woont hier heerlijk vrij, maar niet afgelegen. De villa ligt aan een rustige landweg met volop groen rondom, aan een mooie waterpartij met directe vaarverbinding. Ideaal dus voor natuurliefhebbers, rustzoekers en waterfans. De ruime percelen in de omgeving zorgen voor veel privacy en een landelijk gevoel, terwijl je toch binnen korte tijd in het centrum van het Veenendaal bent voor boodschappen, scholen en gezellige horeca. Fiets en wandel je graag? Dan liggen er prachtige routes voor je klaar, dwars door de polders, langs het water en door sfeervolle dorpen. Met de auto ben je ook zo op de uitvalswegen, waardoor je vlot richting de steden als Utrecht en Arnhem rijdt. En bij thuiskomst wacht de rust van je eigen oase aan het water. Hier heb je het beste van twee werelden: alle ruimte om je heen én alle voorzieningen binnen handbereik.

Indeling begane grond
Wat een fijne binnenkomst! De hal is royaal, licht en strak afgewerkt, met een mooie stalen trap met natuursteen naar boven, ruimte voor een garderobe en toegang tot het moderne toilet en de luxueuze badkamer. Vanuit hier kom je in de woonkamer, waar het uitzicht direct je aandacht trekt. Grote raampartijen en openslaande tuindeuren zorgen voor een zee aan licht en een prachtig groen panorama. De zithoek is ruim opgezet, met een gezellige haard als blikvanger. Aan de andere zijde vind je de luxe keuken met kookeiland – strak, modern en voorzien van alle denkbare inbouwapparatuur, waaronder een koffiemachine, waaronder een koffiemachine, oven/magnetron, stoomoven, teriyaki bakplaat en een Quooker. Koken wordt hier echt een feestje. Ook de keuken is voorzien van openslaande deuren richting de tuin. De aangrenzende eetkamer is ruim genoeg voor een grote tafel waar je met vrienden of familie heerlijk lang kunt tafelen. Daarnaast is er nog een ruime bijkeuken te vinden, waar je opbergruimte en de witgoedaansluitingen treft. Alles is afgewerkt in neutrale, warme tinten en met oog voor detail.

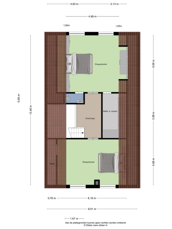
De badkamer is een plaatje: stijlvol betegeld, modern, ruim en voorzien van een ligbad, royale inloopdouche en dubbele wastafel.

Eerste verdieping
Boven bevindt zich de slaapverdieping, waar je absolute rust ervaart. De master bedroom is ruim, sfeervol en slim geplaatst onder het schuine dak. De lichtinval is ook hier prachtig door de grote dakkapel met karakteristieke raampartijen. Er is plek genoeg voor een kingsize bed, en deze kamer heeft een eigen toilet en een royale walk-in closet. De tweede slaapkamer is eveneens ruim en kan perfect dienstdoen als logeerkamer, thuiswerkplek of kinderkamer. Ook hier zie je weer de strakke afwerking en het gebruik van mooie materialen. En heb je nóg meer ruimte nodig? Dan is er op de overloop nog volop mogelijkheid om spullen netjes op te bergen. Kortom: een complete en comfortabele verdieping met alle rust en luxe die je mag verwachten.

Buitenruimte
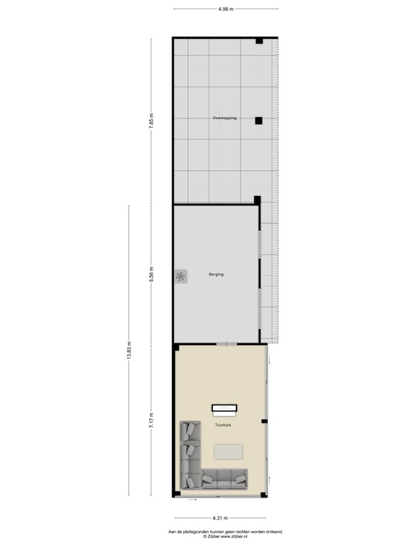
Wat een tuin! Rondom de woning ligt een fantastisch aangelegde buitenruimte, met volop privacy en zon op elk moment van de dag. Aan de achterzijde een lange, statige oprit met grind en parkeergelegenheid voor meerdere auto's. Aan de achterzijde een paradijselijk geheel: kleurrijke borders, strak gazon, hoge bomen en sfeervolle hoekjes. Ook staat hier een moderne zwarte sauna, strak vormgegeven met veel hout en glas – perfect voor ontspanning. Midden in een veranda met glazen wanden, buitenhaard, een barbecuehoek, zitgedeelte én televisieaansluiting: het hele jaar door genieten. Aansluitend een royale berging met houtopslag. Aan de achterzijde is er een genoeg plek voor gezellige zitjes, én – misschien wel het mooiste – een aanlegsteiger aan het water met loungebanken. Neem een duik, leg je bootje aan of geniet simpelweg van het uitzicht. Dit is leven op z’n best.

Laat je hart spreken en kom deze parel in het echt ervaren. Maar pas op: je zou zomaar verliefd kunnen worden. Het gevoel van thuiskomen begint al bij het betreden van de oprijlaan, en blijft je verrassen tot aan het zitje aan het water. Dit is niet zomaar een woning – dit is een levensstijl waar je iedere dag van geniet. Wacht niet te lang, want plekken als deze zijn zeldzaam.

Algemene gegevens
- Type woning: vrijstaand
- Bouwjaar: 2009
- Aantal kamers: 3
- Aantal slaapkamers: 2
- Aantal badkamers: 1
- Parkeerruimte: 2 in de carport en ruim voldoende op eigen terrein
- Aanwezig: dakkapel/berging/garage/vlonder
- Ligging tuin: rondom
- Tuin bereik: voor/achter/opzij en via woning

Technische gegevens
- Warmwatervoorziening: Nefit Topline Aquapower+ HRC 25CW6
- Verwarmvoorziening: Nefit Topline Aquapower+ HRC 25CW6
- gashaard
- Voorzieningen: Veranda met houtkachel/Jacuzzi/walk-in closet, Sauna/Quooker
- Mechanische ventilatie: aanwezig
- Isolatie: dak/spouw/vloer volledig
- Dubbel glas: geheel
- Glasvezel kabel, TV kabel
- Kozijnen: hout

WILT U EVEN BINNEN KIJKEN?

Voor meer informatie omtrent deze woning, kunt u contact opnemen met ons kantoor in Veenendaal.

U bent van harte welkom! De beste indruk van deze woning krijgt u natuurlijk tijdens een bezichtiging. Wij proberen onze bezichtigingen altijd in samenspraak met verkoper en koper te plannen en nemen ruim de tijd, zodat u op uw gemak de woning kan bekijken en ervaren.
N.B. Aan de samenstelling van deze gegevens is maximale zorg besteed. Aan onvolkomenheden in de vermelde gegevens en tekeningen kunnen geen rechten en aanspraken worden ontleend.

Features

Transfer of ownership
price
€ 1.600.000 k.k.
Status
Available
Acceptance
In Concert
Reference
07924
Construction
Kind of house
Villa
Building type
Detached House
Construction period
2009
Energy rating
A
Roof type
front gable
Bedrooms
2
Bathrooms
1
Surface Areas And Volume
Living area
175 m2
Exterior space attached to the building
1 m2
External storage space
65 m2
Volume in cubic meters
650 m3
Plot size
1450 m2
facilities
Fluetube
Fibreopticcable
Garden
Internetconnection
Storageroom
Ventilation
Baerz & Co Property Brochure

Brochure

Information / Viewing request

Videos

Video Gelders Benedeneind 6

Photos

Floor Plans