Ons kantoor is lid van Baerz & Co Luxury Homes; een internationaal platform dat exclusieve woningmakelaars met elkaar verbindt. Neem contact op met ons secretariaat voor meer informatie over het landelijke aanbod, waarvan u hieronder een selectie kunt bekijken.

HARLINGEN
Industrieweg 1 A - 8861 VH
Países Bajos

Ellen Schoneveld profile image
Ellen Schoneveld
Real Estate Agent
€900,000 k.k.
Área de estar
229m2
Tamaño del terreno
890m2
Dormitorios
4

Descripción

La villa flotante Harlingen es una residencia contemporánea que ofrece una conexión ininterrumpida entre el agua y la tierra. Ubicada en una amplia parcela en propiedad de 890 m², esta vivienda ofrece 229 m² de espacio habitable con un diseño hotelero elegante, caracterizado por la precisión y la sobriedad. Terminada en 2023, la villa destaca por su Certificado Energético A, aislamiento completo, triple acristalamiento y calefacción por suelo radiante en ambas plantas, representando una inversión excepcional a largo plazo.

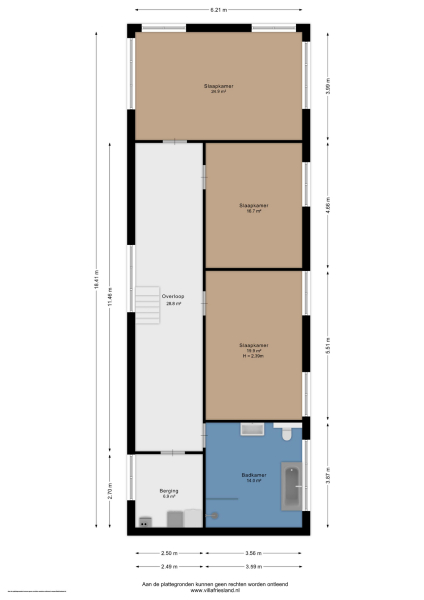
La planta superior se desarrolla desde un vestíbulo de entrada hacia un amplio salón con vistas panorámicas al agua, enmarcadas por ventanales de suelo a techo y tres puertas correderas. La cocina abierta y elevada está equipada con electrodomésticos Miele de alta gama y se conecta directamente con una terraza-solárium de 22 m² orientada al oeste, con vistas al canal Franeker. La suite principal, situada discretamente en la parte trasera, cuenta con baño privado revestido con cerámica de calidad, ducha a ras de suelo y acabados cuidadosamente seleccionados. El suelo de PVC en espiga y el aire acondicionado garantizan un confort superior.

Descendiendo a la planta inferior, una escalera a medida conduce a tres amplios dormitorios, todos ellos bañados en luz natural, y a un segundo baño con bañera moderna y doble lavabo. La sala de servicios auxiliares está completamente equipada para lavandería y necesidades técnicas. En el exterior, un jardín orientado al sureste, diseñado profesionalmente, rodea la vivienda, fusionando carácter marítimo y privacidad.

Un garaje aislado independiente de 35 m², una puerta de entrada segura y un acceso privado pavimentado ofrecen espacio amplio para vehículos y almacenamiento. El amarre privado, situado directamente en la Standing Mast Route, permite alojar un yate de vela o motor, con acceso inmediato al mar abierto y los lagos frisones.

Harlingen es reconocido como el puerto más bello de Frisia, rico en historia y tradición marítima. Sus playas de arena, espacios culturales, restaurantes boutique y excelentes conexiones de transporte conforman un entorno sereno y vibrante a la vez, a solo una hora de Ámsterdam. Esta villa flotante en venta en Harlingen representa el equilibrio entre confort, claridad arquitectónica y un estilo de vida exclusivo junto al agua.

Explora Harlingen con Baerz, tu asesor y buscador personal de propiedades de confianza

El segmento de lujo en Harlingen está marcado por operaciones discretas, normativa específica y un ámbito de protección patrimonial muy definido. Los asesores inmobiliarios experimentados facilitan el acceso a oportunidades fuera de mercado y ofrecen orientación estratégica en la negociación y formalización. Su experiencia garantiza que clientes y vendedores obtengan el mejor valor, superando las especificidades legales, culturales e históricas propias del contexto neerlandés.

Evite errores comunes

Los compradores internacionales a menudo desperdician tiempo valioso navegando por anuncios duplicados, desactualizados o engañosos, especialmente porque casi el 30% de las propiedades de lujo nunca aparecen en el mercado.
Los agentes del vendedor representan los intereses del vendedor, no los suyos, y simplemente solicitar información sobre una propiedad puede hacer que las agencias lo registren como su “cliente” sin su consentimiento.
Con Baerz Property Finders & Advisors, evita completamente estos problemas.
Actuamos únicamente en su nombre, ofreciendo representación independiente, orientación transparente y acceso a todas las propiedades disponibles, incluidas oportunidades privadas y fuera de mercado que otros nunca ven.

¿Le gustaría saber cómo asegurar su propio Asesor Personal de Propiedades? Contáctenos para descubrir cómo podemos representar sus intereses y abrirle el mercado completo.

Características

Aire acondicionado
Transferencia de propiedad
Precio de Venta
€ 900.000 k.k.
Estado
beschikbaar
Aceptación
in overleg
Construcción
Tipo de casa
Woonboot
Tipo de edificio
vrijstaande woning
Período de construcción
2023
Calificación energética
A
Tipo de techo
plat dak
Dormitorios
4
Baños
2
Superficies y Volumen
Área de estar
229 m2
Otro espacio interior
0 m2
Espacio exterior adjunto al edificio
22 m2
Espacio de almacenamiento externo
35 m2
Volumen en metros cúbicos
774 m3
Tamaño del terreno
890 m2
Instalaciones
Airconditioning
Schuifpui
Aan water
Vrij uitzicht
Beschutte ligging
Aan vaarwater
Baerz & Co Property Brochure

Folleto

Vídeos

Planos

Villa Friesland Makelaardij

Lange Marktstraat 1
8911 AD Leeuwarden

info@villafriesland.nl
+31 (0)58 - 23 006 23

www.villafriesland.nl

Solicitud de información / Visita

Ellen Schoneveld profile image
Ellen Schoneveld
Real Estate Agent