Ons kantoor is lid van Baerz & Co Luxury Homes; een internationaal platform dat exclusieve woningmakelaars met elkaar verbindt. Neem contact op met ons secretariaat voor meer informatie over het landelijke aanbod, waarvan u hieronder een selectie kunt bekijken.

Appartement te koop in 'S-GRAVENHAGE

'S-GRAVENHAGE Hellingkade 82 - 2583 WC Nederland


Irma Postma profile image
Irma Postma
Real Estate Agent
+31 (70) 350 14 00
info@nelisse.nl

Nelisse Makelaarsgroep
Statenlaan 128
2582 GW Den Haag
NETHERLANDS
+31 (70) 350 14 00
www.nelisse.nl
info@nelisse.nl

Woonoppervlakte
86m2
Perceeloppervlakte
N/A
Slaapkamers
2

Omschrijving

Hellingkade 82 te Den Haag - Scheveningen

LUXE APPARTEMENT MET APARTE BERGING EN EIGEN PARKEERPLAATS.

Ervaar de seizoenen in uw nieuwbouwappartement aan de kust! Dit comfortabele 3-kamerappartement biedt een fantastisch uitzicht op de haven en de zee – het hele jaar door genieten van rust, ruimte en prachtige vergezichten.

Stelt u zich eens voor: ontwaken met het geluid van de golven, een kop koffie op uw balkon met panoramisch uitzicht over de haven en de zee, en elke dag het ultieme vakantiegevoel ervaren – gewoon in uw eigen appartement. Dit prachtige appartement aan de kust van Scheveningen biedt niet alleen een adembenemend uitzicht op de haven en de zee, maar ook de levendige sfeer van het strand, de boulevard en de haven. Hier geniet u van de frisse zeelucht en het bruisende strandleven, terwijl u tegelijkertijd profiteert van het comfort en de rust van uw eigen thuis. Een unieke kans om elke dag als een vakantiedag te laten voelen!

Gelegen aan zee, het strand en de duinen, vlakbij de levendige haven met de vele restaurants, gevarieerde winkelstraten zoals de Frederik Hendriklaan, de Fred op loopafstand en dicht bij de historische binnenstad van Den Haag.

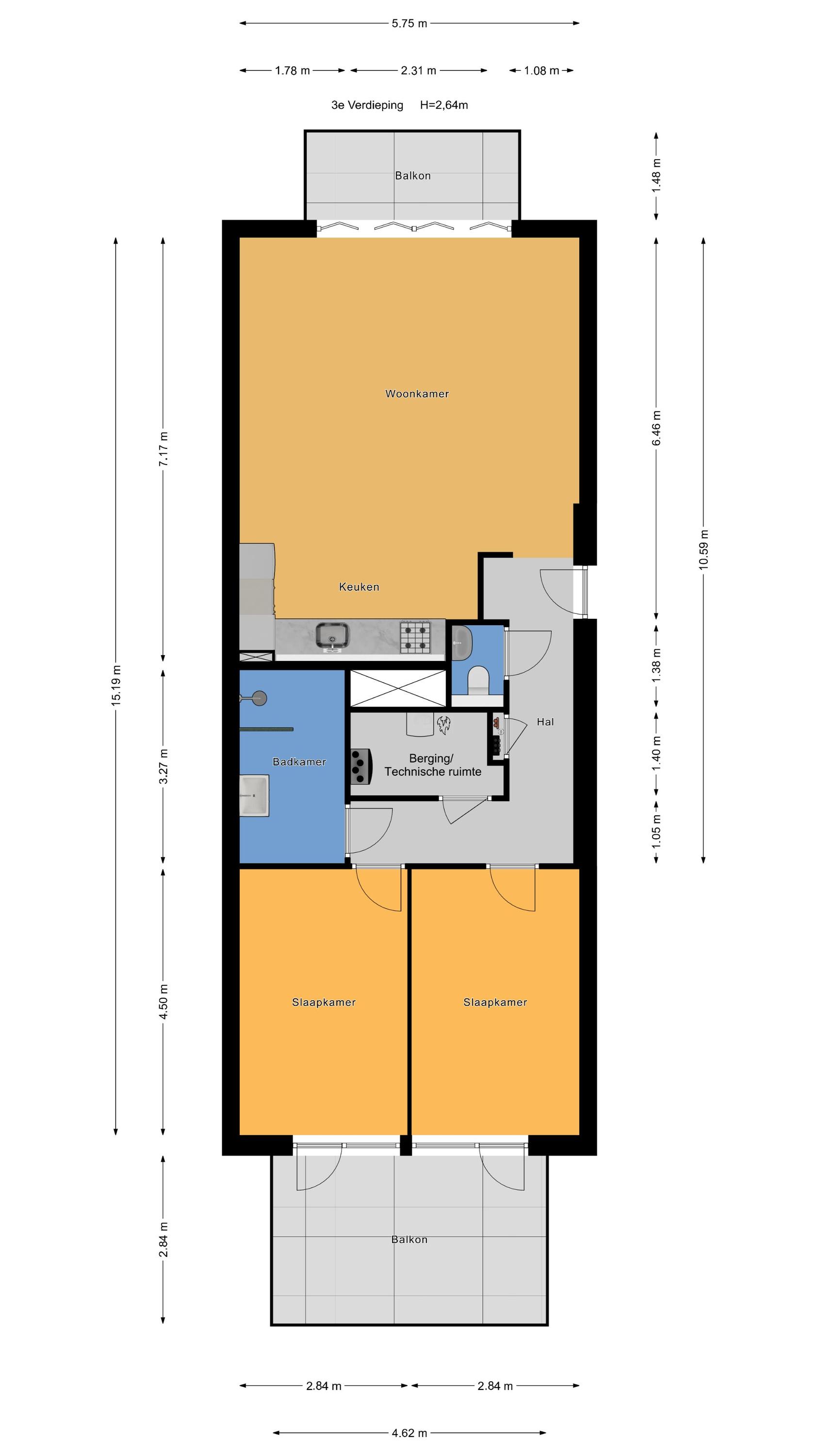
Het appartement is gelegen op de derde verdieping en heeft circa 85 m2 leefruimte plus een balkon aan zowel de voor- als achterzijde, 2 slaapkamers, luxe keukeninrichting, luxe sanitair en een eigen parkeerplaats. Volledig geïsoleerd en gasloos, dus helemaal van deze tijd.

Indeling:

entree, hal, modern toilet, moderne badkamer met inloopdouche, wastafel met wastafelmeubel en handdoekradiator (sanitair Duravit) inpandige technische ruimte / berging met warmtepomp, ventilatiesysteem en wasmachine-/drogeraansluiting, De royale woonkamer aan de havenzijde zorgt met de grote raampartijen en de vouw/schuifwand naar het balkon voor een fenomenaal uitzicht. Vanuit de woonkamer en het balkon heeft u uitzicht op de haven van Scheveningen en de zee, een levendig uitzicht dat nooit gaat vervelen door de aan- en afvarende vissersboten en plezierjachten en de vele watersporters.

De open NEXT-125 keuken met een hoekopstelling is voorzien van een composiet aanrechtblad en inbouwapparatuur: inductiekookplaat met geïntegreerde afzuiging, vaatwasser, koel-/vriescombinatie Quooker en combi-oven. Aan de achterzijde van het appartement bevinden zich 2 slaapkamers, welke beide toegang geven tot het riante zonnebalkon op het zuiden met zicht op de gezamenlijke binnentuin.

Het appartement is voorzien van vloerverwarming en koeling in alle vertrekken, met uitzondering van de technische ruimte/berging.

Separate ruime berging met stroomvoorziening en een privé-parkeerplaats in de onderbouw (met optie voor een individueel laadstation voor uw elektrische auto).

Gemeenschappelijke inpandige fietsenstalling met oplaadmogelijkheid voor uw elektrische fiets.
USP’s:
- Gasloos
- Energiezuinig
- Vloerverwarming- en koeling
- Warmtepomp in eigendom
- SWK-garantie van toepassing
- Energielabel A+++
- Bijdrage VvE € 219.61 (appartement en berging) en € 42,88 voor parkeerplaats
- Eeuwigdurend erfpachtrecht, waarvan de canon is afgekocht
- Eventueel voordeel overdrachtsbelasting komt toe aan verkoper
- Oplevering kan snel

Kenmerken

Overdracht
Vraagprijs
€ 845.000 k.k.
Status
beschikbaar
Aanvaarding
in overleg
Bouw
Soort woonhuis
Portiekflat
Soort bouw
appartement
Bouwjaar
2024
Energieklasse
A_PPP
Soort dak
plat dak
Slaapkamers
2
Badkamers
1
Oppervlakten en inhoud
Woonoppervlakte
86 m2
Overige inpandige ruimte
0 m2
Gebouwgebonden buitenruimte
18 m2
Externe bergruimte
6 m2
Inhoud
289 m3
faciliteiten
Mechanische ventilatie
Lift
Glasvezel kabel
Balansventilatie
Vrij uitzicht
Open ligging
Zeezicht
Baerz & Co Property Brochure

Brochure

Informatie / bezichtigingsaanvraag

Video's

Foto's

Plattegronden