Ons kantoor is lid van Baerz & Co Luxury Homes; een internationaal platform dat exclusieve woningmakelaars met elkaar verbindt. Neem contact op met ons secretariaat voor meer informatie over het landelijke aanbod, waarvan u hieronder een selectie kunt bekijken.

AMSTERDAM
Bundlaan 256 - 1031 KA
Nederland

Floor Neomagus profile image
Floor Neomagus
Real Estate Agent
€1.000.000 k.k.
Woonoppervlakte
137m2
Perceeloppervlakte
N/A
Slaapkamers
3

Omschrijving

Bundlaan 256, 1031 KA Amsterdam

Dit instapklare appartement van ca. 137m² bevindt zich in een stijlvol complex op een toplocatie in Amsterdam. De woning beschikt over een eigen parkeerplaats, drie slaapkamers, twee diepe balkons én een luxe open woonkeuken. Bovendien is de woning bijzonder energiezuinig met energielabel A+++.

Locatie & Bereikbaarheid:
Aan het IJ, op het voormalige Shell terrein in Amsterdam-Noord, is een nieuwe stadswijk ontstaan met een eigen karakter. Waar vroeger industrie heerste, ligt nu een levendig en groen woongebied met eigentijdse architectuur, brede wandelpaden en veel water. Hier komen wonen, werken en ontspanning op natuurlijke wijze samen.

De wijk is ontworpen met een doordachte stedenbouwkundige visie, waarin moderne gebouwen en royale groene ruimtes elkaar versterken. Autoluwe straten, binnentuinen en pleinen zorgen voor rust en openheid, terwijl het centrum van Amsterdam slechts een pontvaart verderop ligt. In de directe omgeving vindt u diverse supermarkten, de markt in de Van der Pekstraat en talloze restaurants en cafés. Denk aan The Coffee Virus, The Butcher Social Club, het EYE Filmmuseum en de Tolhuistuin. Hier is altijd iets te doen, maar u kunt zich ook eenvoudig terugtrekken in de rust van de groene omgeving. Woonwijk aan het IJ is bovendien uitermate geschikt voor stellen en gezinnen met kinderen. In de nabije omgeving bevinden zich meerdere kinderdagverblijven, een ruime keuze aan basisscholen en verschillende speelplekken op loopafstand.

Aan het IJ is daarmee uitgegroeid tot het moderne gezicht van Amsterdam-Noord: ruim, groen en vol leven — een plek waar stedelijke energie en rust moeiteloos samensmelten. Wonen aan het IJ betekent genieten van rust, ruimte én een directe verbinding met de stad. Binnen enkele minuten bereikt u veerpont 907, die u dag en nacht gratis naar Amsterdam Centraal brengt. Ook de Noord-/Zuidlijn ligt dichtbij, waarmee u binnen no-time in het centrum, op de Zuidas of bij Station Zuid bent. Met de auto rijdt u via het Noorderpark en Buikslotermeer eenvoudig de A10 op, terwijl de IJtunnel u binnen enkele minuten rechtstreeks naar het centrum van Amsterdam brengt.

The Grid:
Het appartementencomplex The Grid, telt 68 luxueuze woningen. Het gebouw, uit 2021, kenmerkt zich door een getrapte gevel en is met oog voor detail ontworpen. De ruime lobby heeft een grotere verdiepingshoogte en vormt het hart van het gebouw. Direct aan de straat gelegen, met veel glas en zicht op de binnentuin, een geweldige ontmoetingsplek. Daarnaast beschikt het gebouw over een inpandige gezamenlijke fietsenstalling en pakketten box.

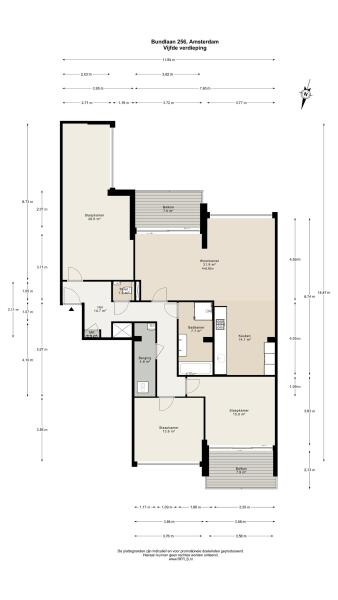
Indeling:
Via de verzorgde entree van de het complex, bereik je via de lift of trap de vijfde verdieping. Hal met separaat toilet en fontein en een ruime berging met de warmtepomp en de benodigde aansluiting voor wasmachine en droger. Vanaf hier heeft u toegang tot alle vertrekken. De riante hoofdslaapkamer is aan de voorzijde gesitueerd. Imposante raampartijen zorgen voor bijzonder veel licht. Aangrenzend bevindt zich de royale living. Een grote schuifpui verschaft de toegang tot het zuidelijk georiënteerde terras. De woonkeuken is voorzien van alle denkbare inbouwapparatuur waaronder een inductiekookplaat, vaatwasser, koel-/vriescombinatie en combi-oven. Er is meer dan genoeg opbergruimte.

Centraal in het midden treft u de badkamer voorzien van een dubbele wastafel met meubel, ligbad en inloopdouche. Aan de achterzijde van de woning zijn nog twee goed bemeten slaapkamers gesitueerd. Een tweede balkon met schuifpui bevindt zich thans aan de achterzijde. Het geheel is voorzien van een prachtige vloer. In de onderbouw bevinden zich een berging van ruim 7m² en een parkeerplaats. De vraagprijs voor de parkeerplaats is €50.000,- k.k..

Kortom: energiezuinig en tun-key wonen op een toplocatie in Amsterdam!

Bijzonderheden:
- Appartementsrecht van 137,40m² (gemeten conform NEN2580 meetinstructie)
- Modern en hoogwaardig complex 'The Grid' in 2021 opgeleverd
- Licht en comfortabel appartement met drie slaapkamers
- Energielabel A+++
- Volledig geïsoleerd en voorzien van vloerverwarming
- Voorzien van warmtepomp
- Actieve en professioneel Vereniging van Eigenaren beheerd door Sturm en de Neeve B.V. Amsterdam
- Parkeerplaats te koop voor €50.000,-
- Periodieke bijdrage is €270,02 voor de woning, €47,75 voor de parkeerplaats en €1,88 voor de berging
- Eigendom belast met erfpacht: het huidige tijdvak is afgekocht tot en met 31 augustus 2068 (AB2000)
- Aanvraag overstap eeuwigdurende erfpacht onder gunstige voorwaarden is tijdig gedaan
- Oplevering in overleg

Deze informatie is door ons met de nodige zorgvuldigheid samengesteld. Onzerzijds wordt echter geen enkele aansprakelijkheid aanvaard voor enige onvolledigheid, onjuistheid of anderszins, dan wel de gevolgen daarvan. Alle opgegeven maten en oppervlakten zijn indicatief. Koper heeft zijn eigen onderzoeksplicht naar alle zaken die voor hem of haar van belang zijn. Met betrekking tot deze woning is de makelaar adviseur van verkoper. Wij adviseren u een deskundige (NVM-)makelaar in te schakelen die u begeleidt bij het aankoopproces. Indien u specifieke wensen heeft omtrent de woning, adviseren wij u deze tijdig kenbaar te maken aan uw aankopend makelaar en hiernaar zelfstandig onderzoek te (laten) doen. Indien u geen deskundige vertegenwoordiger in-schakelt, acht u zich volgens de wet deskundige genoeg om alle zaken die van belang zijn te kun-nen overzien. Van toepassing zijn de NVM voorwaarden.

Kenmerken

Overdracht
Vraagprijs
€ 1.000.000 k.k.
Status
beschikbaar
Aanvaarding
direct
Bouw
Soort woonhuis
Tussenverdieping
Soort bouw
appartement
Bouwjaar
2021
Energieklasse
A+++
Soort dak
plat dak
Slaapkamers
3
Badkamers
1
Oppervlakten en inhoud
Woonoppervlakte
137 m2
Overige inpandige ruimte
0 m2
Gebouwgebonden buitenruimte
16 m2
Externe bergruimte
7 m2
Inhoud
443 m3
faciliteiten
Lift
Schuifpui
Balansventilatie
In woonwijk
Baerz & Co Property Brochure

Brochure

Video’s

Plattegronden

Heeren Makelaars

Stadionweg 75
1077 SE Amsterdam

info@heerenmakelaars.nl
+31 204702255

www.heerenmakelaars.nl

Informatie / bezichtigingsaanvraag

Floor Neomagus profile image
Floor Neomagus
Real Estate Agent