Ons kantoor is lid van Baerz & Co Luxury Homes; een internationaal platform dat exclusieve woningmakelaars met elkaar verbindt. Neem contact op met ons secretariaat voor meer informatie over het landelijke aanbod, waarvan u hieronder een selectie kunt bekijken.

Villa te koop in BERGEN (NH)

BERGEN (NH) Dorpsstraat 27 - 1861 KT Nederland


Angeline Croonen profile image
Angeline Croonen
Real Estate Agent
+31 (0)72 743 32 44
info@croonmakelaars.nl

Croon Makelaars
Breelaan 41
1861 GD Bergen
NETHERLANDS
+31 (0)72 743 32 44
www.croonmakelaars.nl
info@croonmakelaars.nl

Woonoppervlakte
274m2
Perceeloppervlakte
585m2
Slaapkamers
6

Omschrijving

Op een prachtige locatie aan de Dorpsstraat, omgeven door groen en op loopafstand van het centrum, staat deze verrassend ruime en energiezuinige woning van ca. 200 m² met aangebouwd bijgebouw van ca. 80 m² en maar liefst 29 zonnepanelen. De woning biedt veel leefruimte en een overvloed aan daglicht, waardoor het een ideaal gezinshuis is.

Via de entree aan de Dorpsstraat komt u direct binnen in de royale woonkeuken. Deze open keuken is uitgerust met moderne inbouwapparatuur en een kookeiland en staat in verbinding met het eetgedeelte. Dankzij de grote raampartijen is dit een bijzonder lichte en aangename ruimte. Vanuit de keuken is er tevens toegang tot een kleine kelder, die extra bergruimte biedt.

Grenzend aan de keuken bevindt zich de sfeervolle woonkamer met houtkachel, ramen rondom en diverse openslaande deuren naar de tuin. De houten details en de warme uitstraling maken dit een heerlijke plek om te ontspannen, zowel ’s winters bij de haard als ’s zomers met de deuren open naar de tuin met terras.

Op de begane grond vindt u verder een tweede hal met de officiële entree met garderobe, meterkast en toegang tot de wasruimte en bergruimte. Hier begint ook de vloerverwarming die over de gehele begane grond is doorgevoerd.

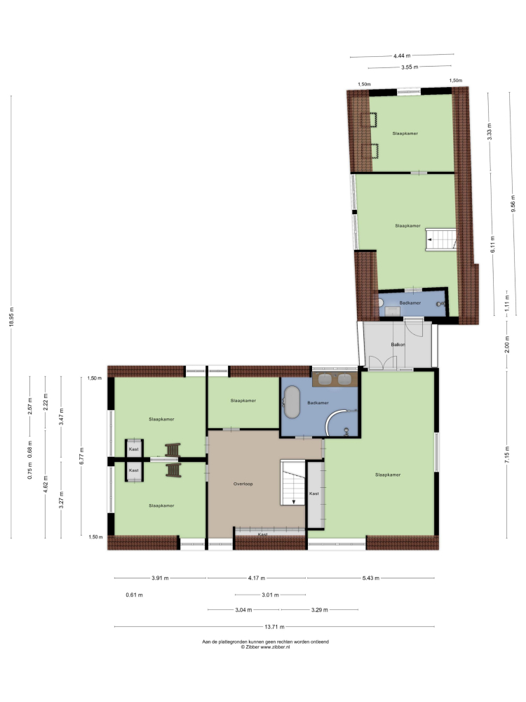
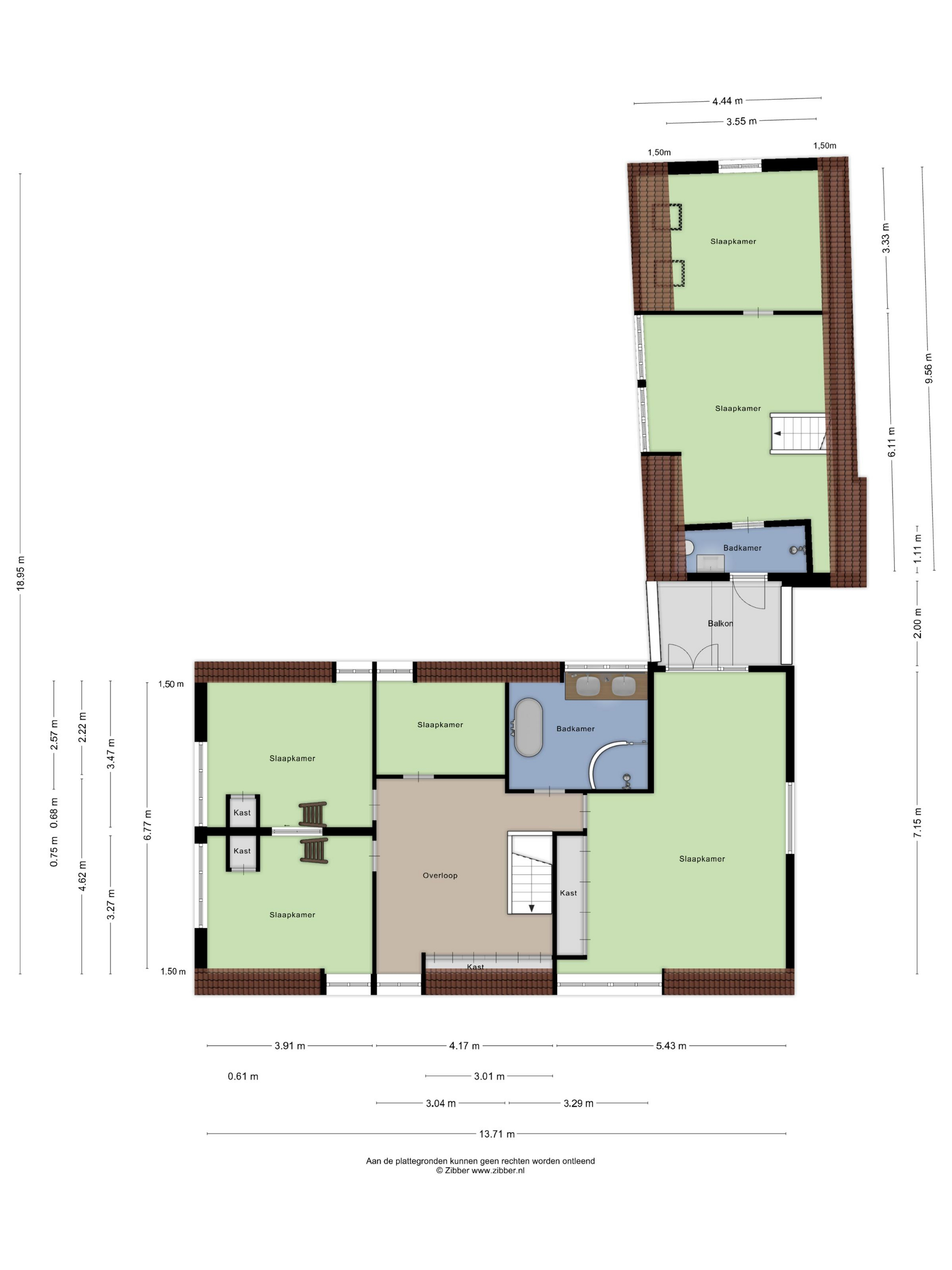
De bovenverdieping beschikt over een ruime overloop met veel hoogte en knieschotten voor extra bergruimte. Er is een royale master bedroom met openslaande deuren naar buiten, een luxe badkamer met dubbele wastafel, inloopdouche, toilet, ligbad en vloerverwarming, een kamer in gebruik als inloopkast en nog twee slaapkamers. Deze zijn opgedeeld door een schuifdeur en beide voorzien van een vide.

Aan de andere zijde van de woning bevindt zich het voormalige atelier, thans in gebruik als bijhuis met keukentje en slaapgelegenheid. Met ca. 80 m² vloeroppervlak en een eigen toegang is dit een heerlijk lichte ruimte, ideaal te gebruiken als atelier, kantoor aan huis, praktijkruimte of bijvoorbeeld als kangoeroewoning of verblijf voor een au-pair.

Naast de woning staat een houten schuur met voldoende bergruimte en voorzien van elektra. Aan de voorzijde van de woning aan de Dorpsstraatzijde is parkeergelegenheid voor maar liefst 4 auto’s.

Bent u geïnteresseerd in deze woning? Neem contact op met ons kantoor, wij leiden u hier gráág rond!

Kenmerken

Overdracht
Vraagprijs
€ 1.595.000 k.k.
Status
Beschikbaar
Aanvaarding
in overleg
Bouw
Soort woonhuis
Villa
Soort bouw
vrijstaande woning
Bouwjaar
1882
Energieklasse
A
Soort dak
mansarde dak
Slaapkamers
6
Oppervlakten en inhoud
Woonoppervlakte
274 m2
Overige inpandige ruimte
1 m2
Gebouwgebonden buitenruimte
9 m2
Inhoud
1019 m3
Perceeloppervlakte
585 m2
faciliteiten
Mechanische ventilatie
Dakraam
Rookkanaal
In centrum
Beschutte ligging
In bosrijke omgeving
Baerz & Co Property Brochure

Brochure

Informatie / bezichtigingsaanvraag

Video's

Video Dorpsstraat 27

Foto's