Ons kantoor is lid van Baerz & Co Luxury Homes; een internationaal platform dat exclusieve woningmakelaars met elkaar verbindt. Neem contact op met ons secretariaat voor meer informatie over het landelijke aanbod, waarvan u hieronder een selectie kunt bekijken.

BERKEL-ENSCHOT
Elstar 40 - 5056 DG
Nederland

Shirley Kneepkens profile image
Shirley Kneepkens
Makelaar - taxateur
Price on request
Woonoppervlakte
206m2
Perceeloppervlakte
530m2
Slaapkamers
4

Omschrijving

Op zoek naar een vrijstaande en duurzame woning met optimale privacy op één van de beste plekken van Berkel-Enschot? Dan is dit de woning die u zoekt. Deze woning zal u echt verrassen ondermeer door de ruime inhoud (688m3).
Dit is oprecht een zeer royale woning te noemen met woonvertrekken in een volwaardig souterrain (hoogte 2.70m) inclusief schuifpuien met toegang tot een patio, meer dan 100 m2 leefruimte op de begane grond en een verdieping met 2 slaapkamers en een badkamer.
De woning is modern, stoer en onder architectuur gebouwd (JMW Architecten).
Zo biedt de indeling een fijn loftgevoel, lopen de ruimtes naadloos in elkaar over en is er overal een verbinding met buiten door de enorme glaspartijen. Ook het comfort van de woning is optimaal. Zo biedt deze woning het gehele jaar een heerlijk klimaat in huis, met zijn aardwarmtepomp en elektrische screens. De pomp zorgt via de vloer voor verkoeling in de zomer en verwarming in de winter. Naast alle duurzame investeringen, is het hier heerlijk wonen met alle ruimte die deze vrije vrijstaande woning (geen overburen) te bieden heeft.

Belangrijkste kenmerken van deze woning zijn:
- de woning is gasloos en voorzien van 28 zonnepanelen;
- geheel voorzien van vloerverwarming en -koeling via aardwarmte;
- ideaal als gezinswoning, werken aan huis of levensloopbestendig;
- vrije ligging met veel glas rondom en uitzicht op veel groen;
- volledig souterrain met eigen buitenruimte, slaapkamers en badkamer;
- een industriele uitstraling: hoge plafonds, grote ramen, veel daglicht en doorloop van ruimtes in elkaar;
- er is een lichtplan zowel voor binnen als buiten ontworpen waardoor de woning met de tuin volledig tot hun recht komen.

Het dorp Berkel-Enschot biedt met het vernieuwde winkelcentrum Koningsoord een gevarieerd aanbod van sfeervolle winkels, diverse supermarkten en speciaalzaken. Daarnaast zijn er diverse sportverenigingen in het dorp actief, goede scholen en veilige speeltuin in de buurt, is er een natuurbad met Beachclub en zijn grote steden als Tilburg, Eindhoven, Breda en ’s-Hertogenbosch via de diverse uitvalswegen makkelijk bereikbaar. Ben je een natuurliefhebber? Dan zijn de Oisterwijkse bossen en vennen en natuurlijk de Loonse en Drunense duinen op korte afstand vanuit jouw nieuwe thuis te bereiken.
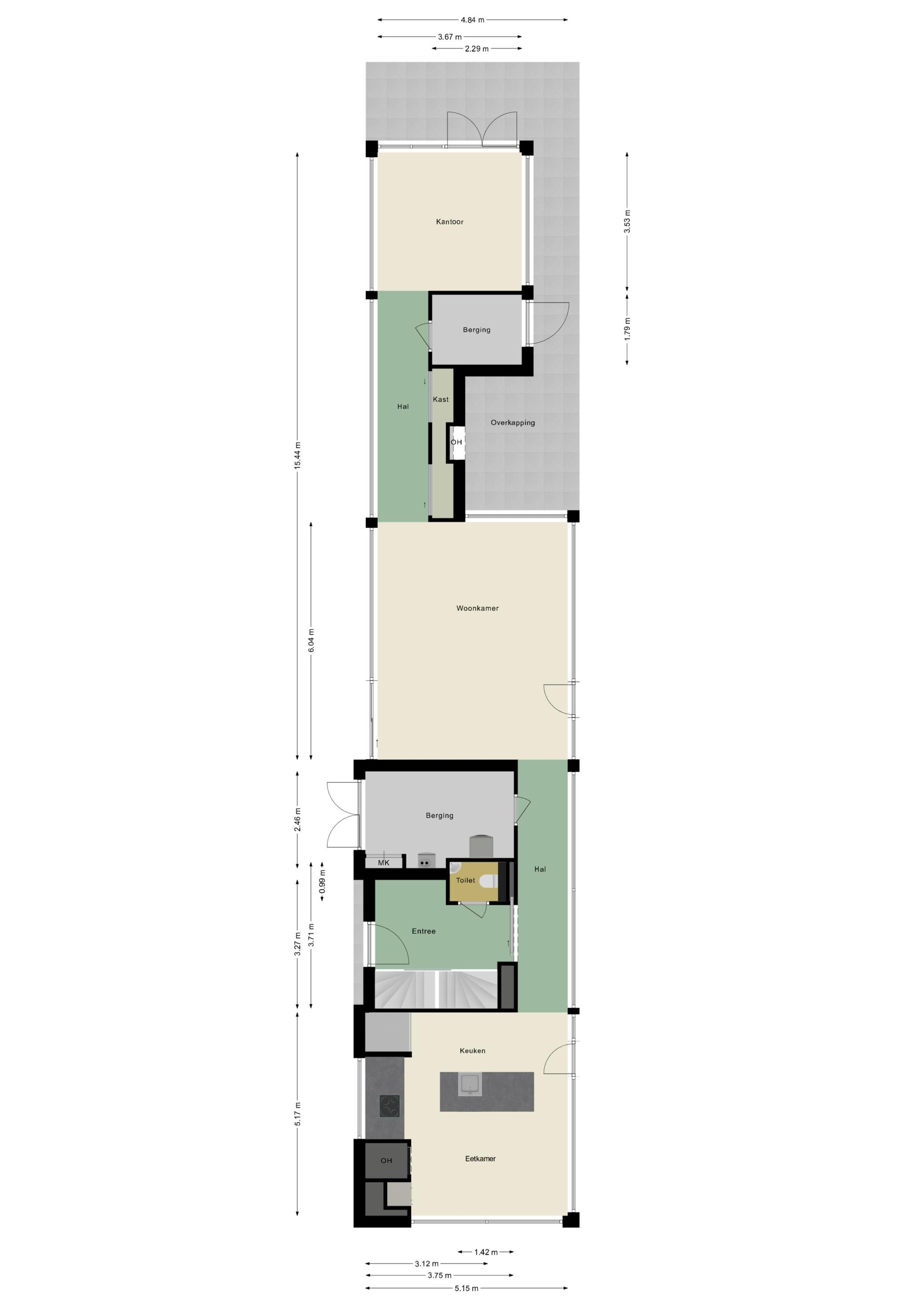
Souterrain (geheel voorzien van vloerverwarming en -koeling)

Hal
ca. 12 m² met design betonvloer, stucwerk wanden en -plafond en voorzien van een deur met toegang tot de patio.

Technische ruimte
ca. 5 m² met tegelvloer, stucwerk wanden en –plafond en voorzien van aansluitingen t.b.v. witgoed en opstelling aardwarmtepomp merk Nibe, bouwjaar 2013, elektrische boiler en WTW-installatie.
In deze ruimte is ook een toilet aanwezig.

Slaapkamer I
ca. 9,5 m² met design betonvloer, stucwerk wanden en –plafond en voorzien van een schuifpui met toegang tot de patio.

Slaapkamer II
ca. 23,5 m² met design betonvloer, stucwerk wanden en -plafond met inbouwspots en voorzien van walk in closet, badkamer en-suite en schuifpui met toegang tot de patio.

Badkamer en-suite
ca. 3,5 m² met tegelvloer, stucwerk en gedeeltelijk betegelde wanden, stucwerk plafond en voorzien van inloopdouche met thermostatische kraan en dubbele wastafel.

Patio
ca. 21,5 m² met verlichting en ca 3m vrije hoogte tot het maaiveld.
Begane grond (beton) (geheel voorzien van vloerverwarming en -koeling)

Hal
ca. 11 m² met design betonvloer, stucwerk wanden en -plafond en biedt toegang tot het toilet, een fijne hoek voor de garderobe, souterrain, 1e verdieping en doorloop naar de woonkamer en keuken.

De toiletruimte is voorzien van stucwerk en gedeeltelijk betegelde wanden, stucwerk plafond met inbouwspots met zwevend toilet en fontein.

Doorloopruimte
ca. 8 m² met design betonvloer, stucwerk wanden en –plafond met inbouwspots en aan één zijde volledig voorzien van glas met uitzicht op de tuin, zuidoost met elektrisch bedienbare screens.

Woonkeuken
ca. 24 m² met design betonvloer, stucwerk wanden en –plafond met inbouwspots, open haard, tv- internet aansluiting en keukenopstelling met hoge kasten voorzien van spoeleiland. De wandopstelling met hoge kasten is ook voorzien van een extra diep aanrechtblad voorzien van 5-pits inductiekookplaat, afzuigkap, XL-oven, extra brede koelkast en vriezer van 90cm breed inclusief ijsblokken machine. Het spoeleiland is voorzien van een TopCore aanrechtblad met spoelbak, vaatwasser en veel werkruimte. Alle apparatuur is van het merk Gaggenau. Ook hier is een schuifpui naar de tuin met elektrisch bedienbare screens.

Inpandige berging I
ca. 8 m² met design betonvloer, stucwerk wanden en -plafond en voorzien van wastafel en handmatig bedienbare dubbele deur met toegang tot de oprit. En biedt ruimte aan de meterkast met 8 groepen, 3 aardlekschakelaars en 3 krachtgroepen.

Woonkamer
ca. 30 m² met design betonvloer, stucwerk en beton wanden, stucwerk plafond met inbouwspots en voorzien van 2 schuifpuien naar de tuin en zij-tuin en aan 2 zijden kamerbrede glaspartijen met elektrisch bedienbare screens aan de zuidoost kant.

Doorloopruimte
ca. 7 m² met design betonvloer, stucwerk wanden en -plafond met inbouwspots en voorzien van twee inbouwkasten met hardhouten schuifdeuren en volledig glazen wand met uitzicht op de zij-tuin.

Multifunctionele ruimte
ca. 13 m² met design betonvloer, stucwerk wanden en -plafond met inbouwspots en voorzien van schuifpui en aan 3 kanten glas. Deze ruimte is een ideale en rustige werkplek met veel daglicht. Ook een atelier, speelkamer voor de kinderen of een slaapkamer behoren tot de mogelijkheden.

Inpandige berging II
ca. 4 m² met design betonvloer, stucwerk wanden en -plafond met inbouwspots en voorzien van XL-taatsdeur (1,7 m breed) en voorbereidingen zijn getroffen voor een badkamer.
1e Verdieping (beton) (geheel voorzien van vloerverwarming en -koeling)

Overloop
met toegang tot 2 slaapkamers en badkamer.

Slaapkamer III
ca. 22 m² met design betonvloer, stucwerk wanden en -plafond (hoogte ca 4,2 m) en voorzien van deur naar platdak aan de achterzijde van de woning waarop de zonnepanelen zijn geplaatst.

Slaapkamer IV
ca. 12,5 m² met design betonvloer, stucwerk wanden en -plafond en toegang tot een bergzolder van ca. 9 m² middels een losse trap.

Badkamer
ca. 6 m² met tegelvloer, stucwerk en gedeeltelijk betegelde wanden en -plafond en voorzien van inloopdouche met thermostatische kraan, bad met thermostatische kraan, dubbele wastafel en zwevend toilet.
Bergzolder (hout)

Via een losse trap bereikbaar vanuit slaapkamer IV.
Buiten

Tuin
Omsloten tuin met een toegangspoort aan beide zijden (ca. 25 m diep en ca. 5 m breed) en (ca 12 m diep en ca. 3 m breed) gelegen op het zuidoosten en noordwesten en voorzien van tuinverlichting, tuinstopcontacten, buitenkranen.

Overdekt terras
ca. 30 m² direct grenzend aan de woonkamer, berging II en multifunctionele ruimte. Dit overdekte terras is voorzien van inbouwspots, open haard en speciale opening door het dak met een boom.

Berging met overkapping
ca. 5 m² berging met aangrenzend een ca. 5 m² overdekte ruimte.

Oprit
Biedt plaats voor 1 auto.
Algemeen

Bouwjaar
ca. 2013.

Inhoud
woonhuis ca. 815 m³.

Woonoppervlakte
ca. 206 m².

Overige inpandige ruimte
ca. 12,5 m².

Gebouwgebonden buitenruimte
ca. 49 m².

Perceeloppervlakte
ca. 530 m².

Isolatie
- de woning is geheel voorzien van HR-beglazing
- de woning is voorzien van gevel-, dak- en vloerisolatie.

Overig
- de woning is voorzien van vloerverwarming en -koeling (naregeling per kamer).
Energielabel
A++ (na de opname van het label zijn er nog 28 zonnepanelen geplaatst)

Aanvaarding
in overleg.

Vraagprijs
€ 1.025.000 k.k.

Kenmerken

Zonnepanelen
Overdracht
Prijs op aanvraag
Status
verkocht onder voorbehoud
Aanvaarding
in overleg
Bouw
Soort woonhuis
Eengezinswoning
Soort bouw
vrijstaande woning
Bouwjaar
2013
Energieklasse
A++
Soort dak
samengesteld dak
Slaapkamers
4
Badkamers
2
Oppervlakten en inhoud
Woonoppervlakte
206 m2
Overige inpandige ruimte
13 m2
Gebouwgebonden buitenruimte
49 m2
Inhoud
815 m3
Perceeloppervlakte
530 m2
faciliteiten
Mechanische ventilatie
Buitenzonwering
Schuifpui
Zonnepanelen
Aan rustige weg
In woonwijk
Baerz & Co Property Brochure

Brochure

Video’s

Plattegronden

Shirley Kneepkens Makelaardij

Raadhuisstraat 44
5056HD Berkel-Enschot

shirley@shirleykneepkens.nl
+31 (0)13 533 56 55

www.shirleykneepkens.nl

Informatie / bezichtigingsaanvraag

Shirley Kneepkens profile image
Shirley Kneepkens
Makelaar - taxateur