Baerz & Co is een landelijk samenwerkingsverband van zorgvuldig geselecteerde boutique luxury makelaars. Samen vormen wij één netwerk, met één gedeeld aanbod. De woningen die u op onze website ziet, zijn afkomstig van alle aangesloten kantoren binnen Baerz & Co. Daardoor is niet ieder object rechtstreeks door ons kantoor in verkoop, maar door een gespecialiseerde collega binnen ons netwerk. Heeft u een woning gevonden die u aanspreekt en wilt u meer informatie? Dan brengen wij u graag persoonlijk in contact met de betreffende verkoopmakelaar, zodat u direct en zorgvuldig wordt begeleid.

DELFT
Oostsingel 183 - 2612 HL
Nederland

Jan Paul van Daal profile image
Jan Paul van Daal
Real estate agent
€6.250 p.m.
Woonoppervlakte
322m2
Perceeloppervlakte
879m2
Slaapkamers
5

Omschrijving

Stijlvolle en royale vrijstaande villa te huur nabij het centrum van Delft
Aan een groen en rustig laantje, op steenworp afstand van het sfeervolle centrum van Delft, bevindt zich deze uitstekend onderhouden en luxe afgewerkte vrijstaande villa met een woonoppervlakte van maar liefst 332 m².

De woning biedt volop ruimte met vijf royale slaapkamers, twee moderne badkamers en een volledig onderkelderde verdieping — ideaal voor extra woon-, werk- of hobbyruimte.

De ligging is perfect: op loopafstand van recreatiegebied De Delftse Hout, diverse sportvoorzieningen en scholen voor zowel basis- als voortgezet onderwijs. De International School The Hague is binnen 20 minuten per auto bereikbaar. Kortom: een unieke combinatie van rust, ruimte en stedelijk gemak.

Indeling:

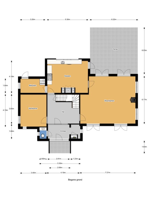
Begane grond:
Entree, hal met garderoberuimte en meterkast. Ruime hal met aangrenzend de studeerkamer (3.80 x 3.40m). Toiletruimte. Woonkamer met fraaie visgraat-parketvloer en open haard. De woonkamer heeft meerdere openslaande deuren naar de omliggende tuin. Woonkeuken (Siematic, 4.18 x 5.30m) met Amerikaanse koel-/vrieskast, 6-pitsgaskookplaat met oven, afzuigkap, vaatwasser en aparte combi oven-/magnetron. Bijkeuken alwaar aansluitingen voor de wasmachine en droger. Zonnig, riant terras (6.05 x 6.22m).

1e Verdieping:
Ruime overloop met dakraam. Riante ouderslaapkamer met vaste kasten en aangrenzende luxe badkamer. De badkamer is voorzien van een ligbad met whirlpool, ruime douche, toilet en wastafelmeubel met dubbele wastafel. Slaapkamer aan de achterzijde met dakkapel. Twee slaapkamers (3.14 x 3.84m en 3.50 x 3.84m) beiden met dakkapel en speelse vide. Tweede badkamer met dubbele wastafel en douche. Toiletruimte met wandcloset en fonteintje.

2e Verdieping:
Overloop met bergruimte. Ruime slaapkamer met velux dakraam.

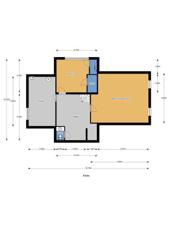
Souterrain:
Ruim portaal. Toiletruimte met fonteintje. Sportruimte met sauna en douchegelegenheid. Multifunctionele ruimte met kastenwand. Opslagruimte alwaar de opstelplaats voor de boiler en warmtepomp (verwarming middels aardwarmte).

Bijzonderheden:
- Hoog afwerkingsniveau, grotendeels voorzien van een visgraat-parketvloer;
- Volledig onderkelderde woning;
- Vloerverwarming op alle etages;
- De woning is volledig gestoffeerd;
- Privé parkeergelegenheid op eigen terrein;
- Huurprijs is exclusief gas, water, elektra, internet en gemeentelijke belastingen.
- Huur is inclusief onderhoud aanwezige installaties en tuinonderhoud;
- Bouwjaar 2009;
- International School Den Haag is op 20 minuten rijden;
- In Delft is een primary en secundary international School;
- Bij voorkeur geen huisdieren. Huisdieren zijn alleen toegestaan na goedkeuring van eigenaar;
- Minimale huurtermijn 2 jaar.
- Er zijn drie parkeerplaatsen op eigen terrein
- Energielabel A;

Kenmerken

Alarm system
Overdracht
Huurprijs
€ 6.250 p.m.
Status
beschikbaar
Aanvaarding
in overleg
Bouw
Soort woonhuis
Villa
Soort bouw
vrijstaande woning
Bouwjaar
2009
Energieklasse
A
Soort dak
zadeldak
Slaapkamers
5
Badkamers
2
Oppervlakten en inhoud
Woonoppervlakte
322 m2
Overige inpandige ruimte
48 m2
Gebouwgebonden buitenruimte
42 m2
Inhoud
1221 m3
Perceeloppervlakte
879 m2
faciliteiten
Mechanische ventilatie
Alarminstallatie
Beschutte ligging
Baerz & Co Property Brochure

Brochure

Video’s

Plattegronden

Van Daal Makelaardij

Voldersgracht 33
2611 ED Delft

janpaul@vandaalmakelaardij.nl
+31 (0)15 - 212 73 00

www.vandaalmakelaardij.nl

Informatie / bezichtigingsaanvraag

Jan Paul van Daal profile image
Jan Paul van Daal
Real estate agent

Een luxe woning kopen in Delft

Delft staat bekend om haar artistieke erfenis, verfijnde levensstijl en vooruitstrevend stedelijk karakter. De gemeenschap trekt veeleisende bewoners en investeerders aan, biedt maatwerk wonen, toegang tot topservices en internationale connecties.