Ons kantoor is lid van Baerz & Co Luxury Homes; een internationaal platform dat exclusieve woningmakelaars met elkaar verbindt. Neem contact op met ons secretariaat voor meer informatie over het landelijke aanbod, waarvan u hieronder een selectie kunt bekijken.

FRANEKER
Dyksfeart 22 - 8801 ZE
Nederland

Ellen Schoneveld profile image
Ellen Schoneveld
Real Estate Agent
€770.000 k.k.
Woonoppervlakte
188m2
Perceeloppervlakte
600m2
Slaapkamers
4

Omschrijving

Maximale luxe, duurzaam en energie neutraal aan open vaarwater (A++++)

Aan de rand van de jonge woonwijk Franeker-Zuid ligt deze schitterende vrijstaande villa (2023) direct aan open vaarwater.
Een traditioneel gebouwde woning die in alles de signatuur van kwaliteit, comfort en stijl ademt. Hier is werkelijk op niets bezuinigd: energieneutraal, voorzien van kunststof draaikiepramen, vloerverwarming en -koeling op begane grond en 1ste verdieping, luxe onderhoudsvriendelijke gevelafwerking in eigentijdse kleurstelling, een architectonisch lijnenspel met modern risaliet als markant accent, strak gestucte wanden en een masterbedroom met royale inloopkast. De maatwerk keuken is ingericht met hoogwaardige materialen en in de tuinkamer geniet u het hele jaar door van het buitengevoel. De professioneel aangelegde tuin met een extra diepe hardhouten steiger maakt het geheel compleet.

BEGANE GROND
Via de ruime entree bereikt u de hal met stijlvol extra royaal gastentoilet, trapopgang met vide en toegang tot zowel de bijkeuken als de living. De woonkamer is sfeervol gepositioneerd aan de beschutte tuinzijde en vormt samen met de lichte woonkeuken een speelse, open leefruimte. De keuken aan de voorzijde is maatwerk en voorzien van hoogwaardige afwerking en inbouwapparatuur zoals robuuste decton bladen, koffiehoek, vaatwasser, combi heteluchtoven, grote Bora inductie kookplaat met geïntegreerde afzuiging, Quooker, inbouw koel- vriescombinatie, terwijl de woonkamer uitnodigt tot ontspannen in een knusse zithoek. De tuinkamer is een volwaardige uitbreiding van de leefruimte. Dankzij de glazen pui die volledig geopend kan worden, vloeien binnen en buiten naadloos in elkaar over. In de warmere maanden ervaart u een maximale tuinbeleving, terwijl in de koelere seizoenen een behaaglijke loungeplek behouden blijft. De bijkeuken herbergt de warmtepompinstallatie met 190 liter boiler, aansluitingen voor wasapparatuur en een waterontharder. De fluisterstille luchtwarmtepomp is zorgvuldig buiten de woning geplaatst. De gehele begane grond is voorzien van een stijlvolle laminaat-vloer en wordt verwarmd en gekoeld middels vloerverwarming.

EERSTE VERDIEPING
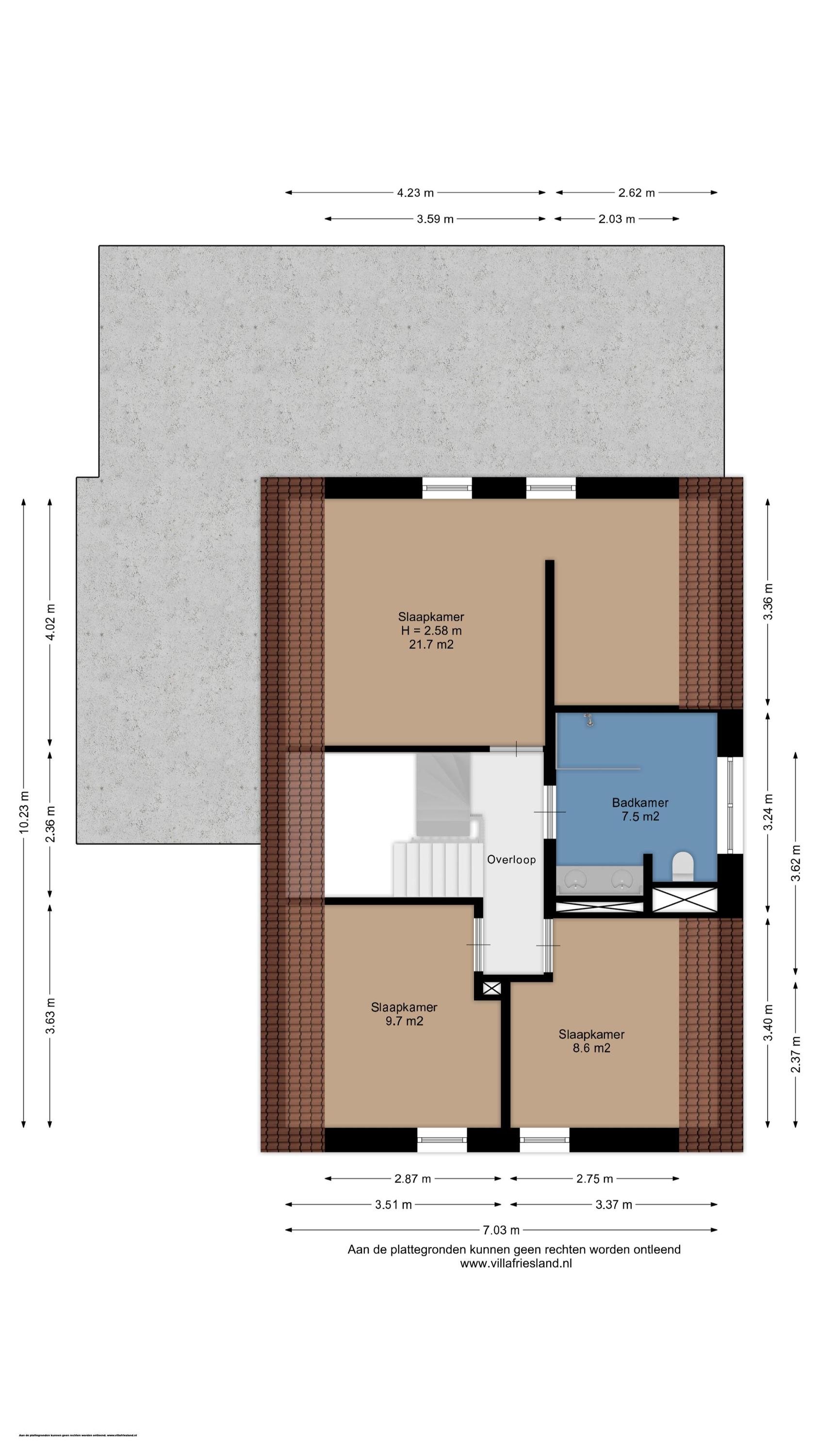
Op de eerste verdieping bevinden zich drie royale slaapkamers, waaronder de masterbedroom met luxe inloopgarderobe. De badkamer is van absolute hotelkwaliteit: daglicht, een, royale inloopdouche, toilet en een dubbel design wastafelmeubel. Alles uitgevoerd met oog voor detail en in een hoogwaardige afwerking. De gehele 1ste verdieping is voorzien van een stijlvolle laminaat-vloer en wordt verwarmd en gekoeld middels vloerverwarming.

TWEEDE VERDIEPING
Een vaste trap leidt naar de verrassend ruime tweede verdieping met groot Velux-dakraam. Deze open ruimte biedt volop mogelijkheden: twee extra slaapkamers, een royale werkkamer of zelfs een tweede badkamer behoren tot de opties.

BERGING
Aan de achterzijde is de woning geschakeld aan een ruime, deels geïsoleerde houten berging. Ideaal voor fietsen, tuinspullen en watersportmaterialen.

TUIN EN PERCEEL
Het royale perceel is met veel zorg en smaak professioneel ingericht. Rondom de woning ligt een fraai aangelegde tuin met volwassen beplanting, sfeervolle terrassen en een brede oprit voor twee auto’s. Via de afsluitbare poort bereikt u de achtertuin en het water. Een bijzonder element is de extra diepe, lager gelegen hardhouten steiger van 15 meter. Perfect voor het aanleggen van een boot, het beoefenen van watersport en een heerlijke loungeplek aan het water. Dankzij de volwassen begroeiing geniet u in de tuin van optimale privacy. Alhoewel de tuin op het noorden ligt, staat de achtertuin de gehele dag in de zon en is de tuinkamer de verkoelende schaduwplek.

BIJZONDERHEDEN
* Vrijstaande villa (bouwjaar 2023) aan open vaarwater
* Energielabel A++++ | Energieneutraal
* Warmtepomp met 24 zonnepanelen Solar Edge
* Waterontharder
* Onderhoudsvriendelijke gevelbekleding en kunststof kozijnen
* Hotelchique afwerking, binnen en buiten
* Luxe maatwerk keuken en badkamer
* Riante tuinkamer
* Glasvezel
* Professioneel aangelegde tuin met extra diepe 15m hardhouten steiger
* Deels geïsoleerde houten berging
* Oprit voor 2 auto’s, afsluitbare poort
* Rustige, ruim opgezette wijk met veel groen, water en wandelgebied
* Op loopafstand van station, supermarkt en het historisch centrum van Franeker
* Goede bereikbaarheid per auto en openbaar vervoer, Amsterdam op ruim een uur

FRANEKER
Franeker behoort tot de Friese Elfsteden en wordt niet voor niets de “Ster van de 11 steden” genoemd. Het historische centrum biedt een breed scala aan voorzieningen: winkels, speciaalzaken, scholen, sportfaciliteiten, zorg, een theater, het Unesco werelderfgoed planetarium van Eise Eisinga en een rijke keuze aan horeca. Het culturele en sportieve leven bruist hier, van de wereldberoemde kaatswedstrijd de “PC” op het Sjûkelân tot de jaarlijkse Agrarische Dagen. De stad ligt bovendien strategisch tussen Leeuwarden en Harlingen en heeft directe vaarverbindingen naar de Friese meren en de Waddenzee. Dankzij het treinstation en de nabijgelegen snelwegen zijn Heerenveen, Groningen en Amsterdam uitstekend bereikbaar.

Kenmerken

Zonnepanelen
Overdracht
Vraagprijs
€ 770.000 k.k.
Status
beschikbaar
Aanvaarding
in overleg
Bouw
Soort woonhuis
Villa
Soort bouw
vrijstaande woning
Bouwjaar
2023
Energieklasse
A++++
Soort dak
zadeldak
Slaapkamers
4
Badkamers
1
Oppervlakten en inhoud
Woonoppervlakte
188 m2
Overige inpandige ruimte
0 m2
Externe bergruimte
10 m2
Inhoud
727 m3
Perceeloppervlakte
600 m2
faciliteiten
Mechanische ventilatie
Schuifpui
Dakraam
Glasvezel kabel
Zonnepanelen
Natuurlijke ventilatie
Aan water
Aan park
Aan rustige weg
In woonwijk
Beschutte ligging
Aan vaarwater
Landelijk gelegen
Baerz & Co Property Brochure

Brochure

Video’s

Plattegronden

Villa Friesland Makelaardij

Lange Marktstraat 1
8911 AD Leeuwarden

info@villafriesland.nl
+31 (0)58 - 23 006 23

www.villafriesland.nl

Informatie / bezichtigingsaanvraag

Ellen Schoneveld profile image
Ellen Schoneveld
Real Estate Agent