Baerz & Co is een landelijk samenwerkingsverband van zorgvuldig geselecteerde boutique luxury makelaars. Samen vormen wij één netwerk, met één gedeeld aanbod. De woningen die u op onze website ziet, zijn afkomstig van alle aangesloten kantoren binnen Baerz & Co. Daardoor is niet ieder object rechtstreeks door ons kantoor in verkoop, maar door een gespecialiseerde collega binnen ons netwerk. Heeft u een woning gevonden die u aanspreekt en wilt u meer informatie? Dan brengen wij u graag persoonlijk in contact met de betreffende verkoopmakelaar, zodat u direct en zorgvuldig wordt begeleid.

KAAG
Emmalaan 3 - 2159 LP
Nederland

Frits Wilbrink profile image
Frits Wilbrink
Real estate agent
€1.395.000 k.k.
Woonoppervlakte
184m2
Perceeloppervlakte
535m2
Slaapkamers
3

Omschrijving

Vrijstaande villa op unieke locatie aan het water – pure rust, luxe én vakantiegevoel!

Wonen waar anderen vakantie vieren? Deze vrijstaande villa op Kaageiland maakt het mogelijk. Gelegen midden in de Kagerplassen, omringd door water en direct aan vaarwater met eigen aanlegsteiger, biedt deze woning alles wat u zoekt: ruimte, comfort en privacy. Hier begint elke dag met het zachte kabbelende water op de achtergrond en eindigt u op uw eigen vlonderterras terwijl de bootjes langzaam voorbij varen.

• Direct aan vaarwater
• 3 Slaapkamers
• Grote luxe badkamer
• Parkeren op eigen terrein

Bouwjaar 2000, woonoppervlakte 184m2, inhoud 655m3, perceel 535m2

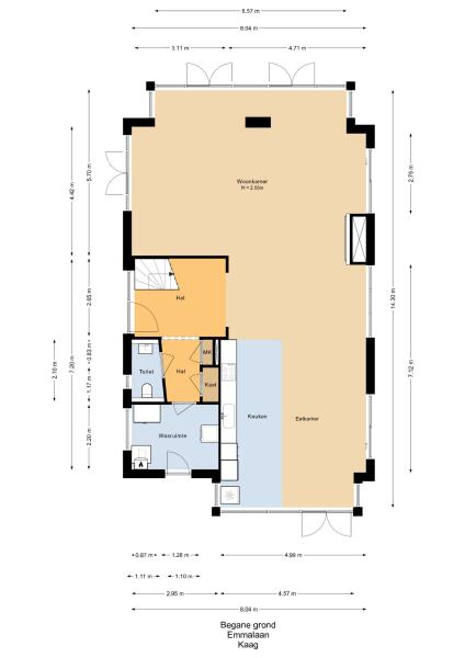
Begane grond – stijlvol en licht
U betreedt de woning via een royale hal met vide en de trap naar boven. Een garderobe-nis met toiletruimte en meterkast zorgen voor een praktische indeling. De woonkamer is ruim, licht en sfeervol en voorzien van een grote erker, klassieke sierlijsten aan het plafond en een gezellige gashaard. Dankzij drie paar dubbele openslaande deuren én een schuifpui staat de living in directe verbinding met het zonnige terras aan het water.

De moderne woonkeuken is een plek om samen te komen. Koken, borrelen of gewoon genieten van het uitzicht – alles is hier mogelijk. Ook vanuit de keuken stapt u zo het vlonderterras op. Daarnaast is er een aparte, praktische ruimte met wasfaciliteiten, cv-installatie en extra bergruimte.

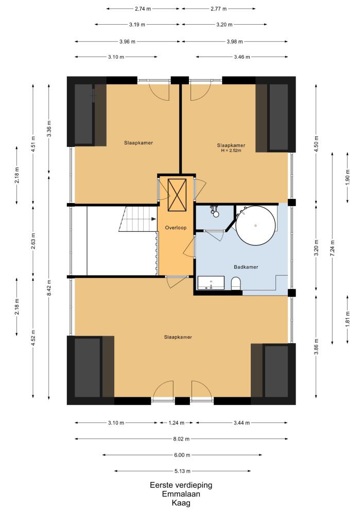
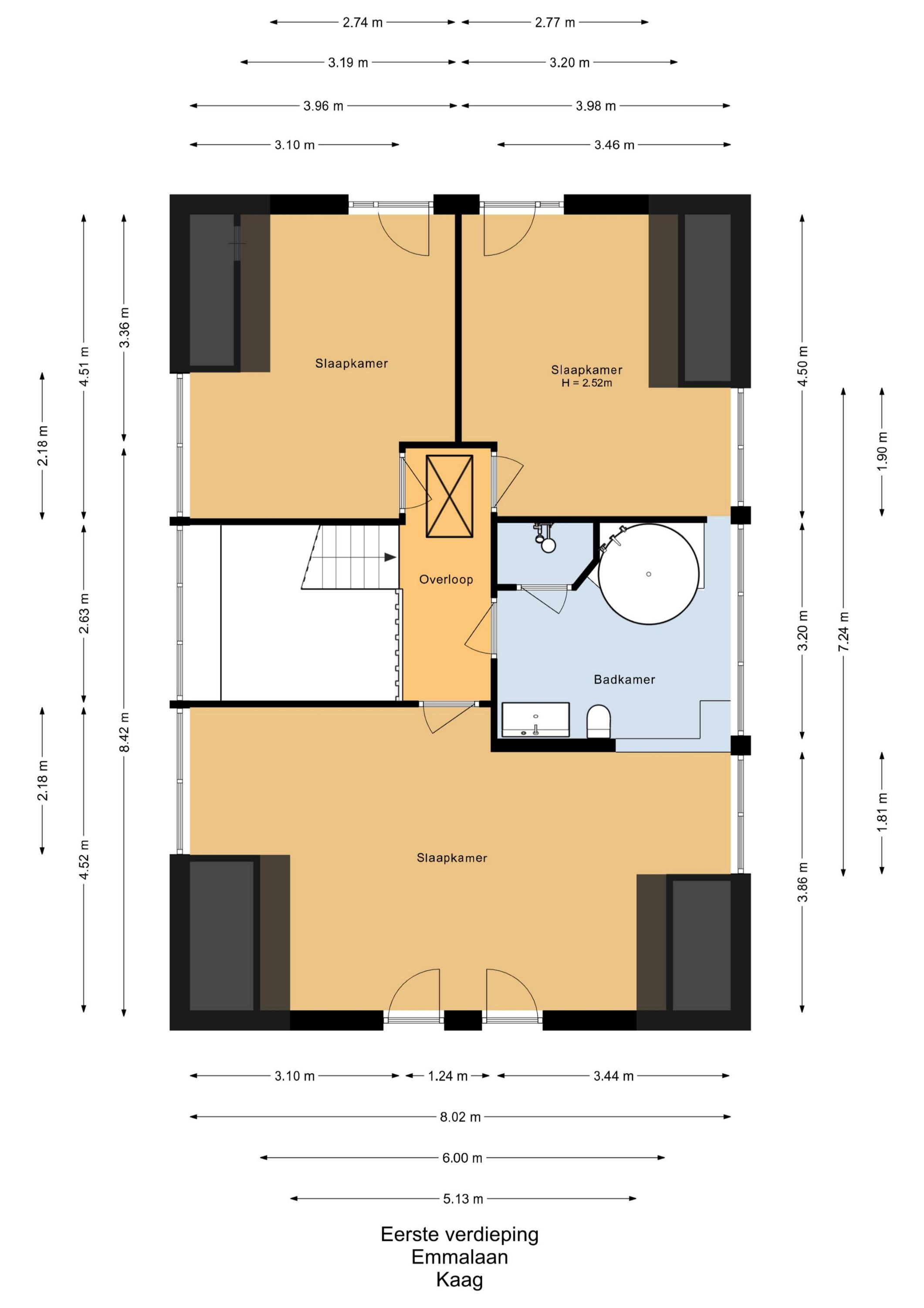
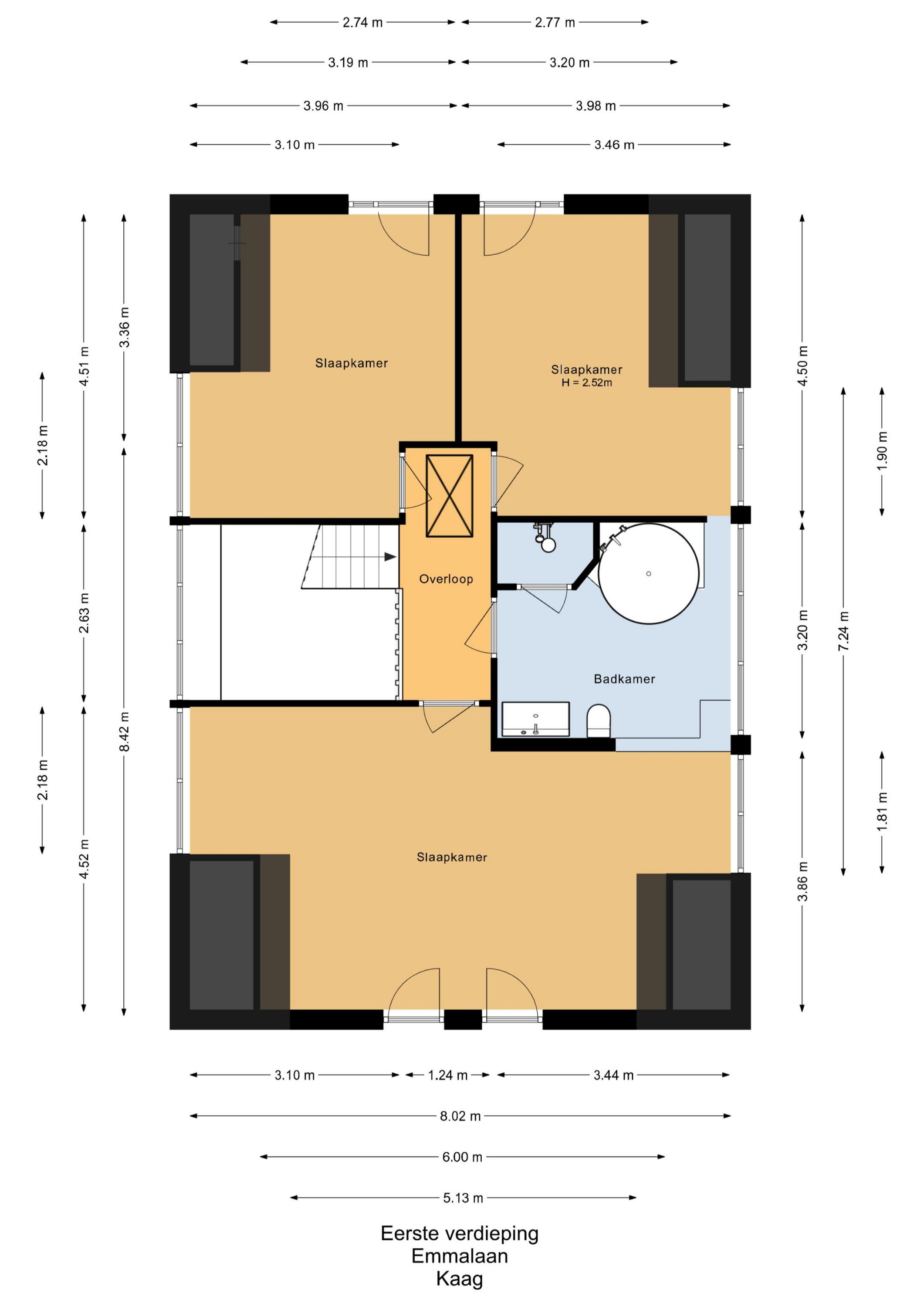
Eerste verdieping - ruimte en comfort
Op de eerste verdieping vindt u de toegang tot de vliering, drie ruime slaapkamers en een badkamer. Alle kamers zijn voorzien van een dakkapel voor extra stahoogte en een ruimtelijk gevoel en de deuren hebben een charmant Frans balkon. De luxe badkamer, bereikbaar vanuit zowel de hoofdslaapkamer als de overloop, is een plek van ontspanning met o.a. een zitbad/jacuzzi.

Buiten – genieten aan het water
De fraai aangelegde voortuin met hagen, sierpaden en sierhekwerk biedt volop rust en parkeergelegenheid op eigen terrein. Achter de woning ligt het royale kunststof vlonderterras, een heerlijke plek om te ontspannen in de zon of juist in de schaduw. Uw eigen boot legt u eenvoudig aan bij uw eigen steiger – varen wordt zo wel héél verleidelijk. Een handige berging maakt het plaatje compleet.

Duurzaam
De villa is gebouwd in 2000 en daardoor uitstekend geïsoleerd. Energielabel C staat geregistreerd.

Locatie – wonen op een eiland, toch centraal
Kaageiland is een unieke plek om te wonen. Rustig, omgeven door natuur en water, en toch verrassend bereikbaar. Via de A44 zijn steden als Leiden, Amsterdam, Haarlem en Den Haag vlot te bereiken. In de directe omgeving zijn alle vormen van watersport mogelijk – zeilen, suppen, sloepvaren, noem maar op– u bent er zó op uit.

Bijzonderheden op een rij:
• Vrijstaande villa op unieke eiland
• Direct gelegen aan vaarwater met eigen aanlegsteiger
• Royale lichte woonkamer met gashaard
• Moderne woonkeuken met openslaande deuren
• 3 ruime slaapkamers met dakkapellen en Frans balkon
• Luxe badkamer met jacuzzi
• Groot kunststof vlonderterras aan het water
• Volledig geïsoleerd, airco aanwezig

Laat u verrassen door deze sfeervolle en complete woning op een droomlocatie. Ervaar zelf hoe het is om elke dag te wonen met het ultieme vakantiegevoel.
Neem contact met ons op voor een bezichtiging – deze unieke kans wilt u niet missen!

Kenmerken

Air conditioning
Overdracht
Vraagprijs
€ 1.395.000 k.k.
Status
beschikbaar
Aanvaarding
in overleg
Bouw
Soort woonhuis
Villa
Soort bouw
vrijstaande woning
Bouwjaar
2000
Energieklasse
C
Soort dak
zadeldak
Slaapkamers
3
Badkamers
1
Oppervlakten en inhoud
Woonoppervlakte
184 m2
Overige inpandige ruimte
0 m2
Inhoud
655 m3
Perceeloppervlakte
535 m2
faciliteiten
Mechanische ventilatie
Airconditioning
Jacuzzi
Rookkanaal
Schuifpui
Frans balkon
Glasvezel kabel
Aan water
Aan rustige weg
In woonwijk
Beschutte ligging
Aan vaarwater
Baerz & Co Property Brochure

Brochure

Video’s

Plattegronden

Wilbrink & v.d. Vlugt Makelaars

Heereweg 231
2161 BG Lisse

info@wilbrinkvandervlugt.nl
+31 252 41 90 49

www.onsaanbod.nl

Informatie / bezichtigingsaanvraag

Frits Wilbrink profile image
Frits Wilbrink
Real estate agent

Een luxe woning kopen in Kaag

Kaag biedt verfijnd wonen aan het water, een warme gemeenschap en persoonlijke begeleiding voor internationale kopers. De eilandcharme, culturele dynamiek en de nabijheid van steden maken Kaag geliefd bij ervaren families en investeerders.