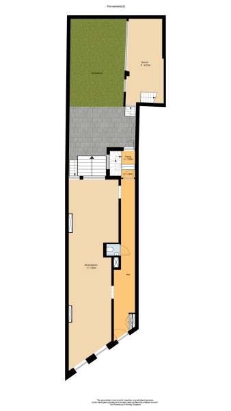
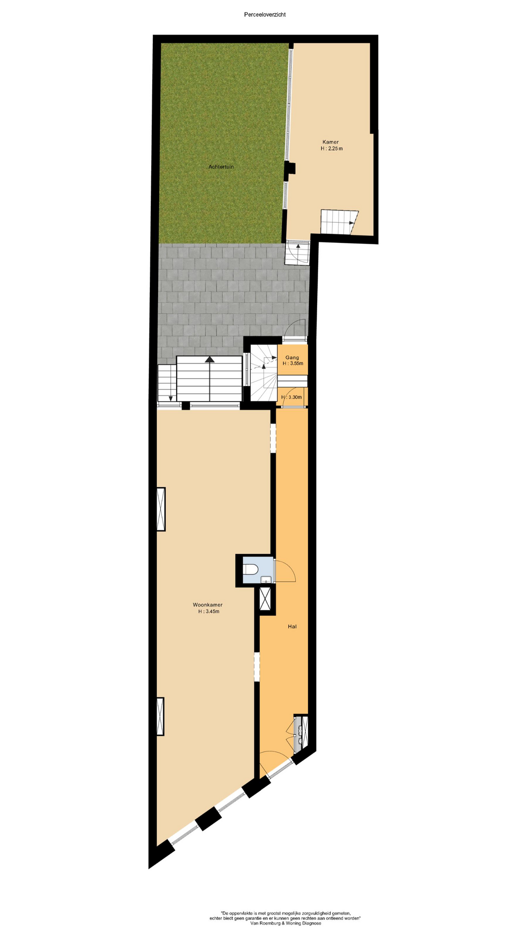
Канальный дом Amsterdam Singel 29 служит эталоном культурного наследия и изысканного комфорта в самом сердце одного из старейших водных путей города. Недвижимость располагает примерно 342 м² жилой площади, распределённой на пяти этажах, а также отдельным садовым домиком площадью 41 м², отражающим вневременную архитектуру канального пояса Амстердама. Дом был тщательно реконструирован с глубоким уважением к своему статусу памятника — просторные интерьеры, сохранённые балки, высокие потолки и панорамные окна, наполняющие помещения светом и подчёркивающие исторические корни здания.
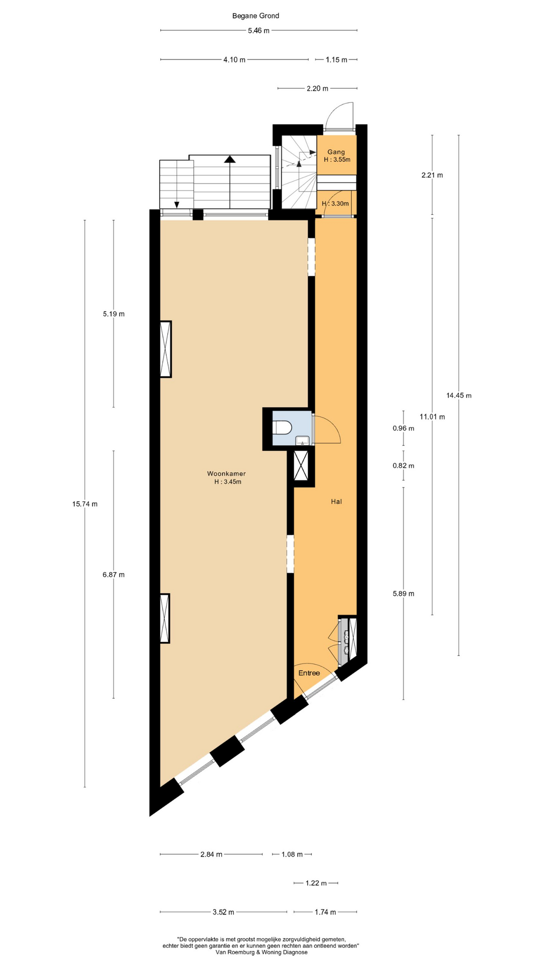
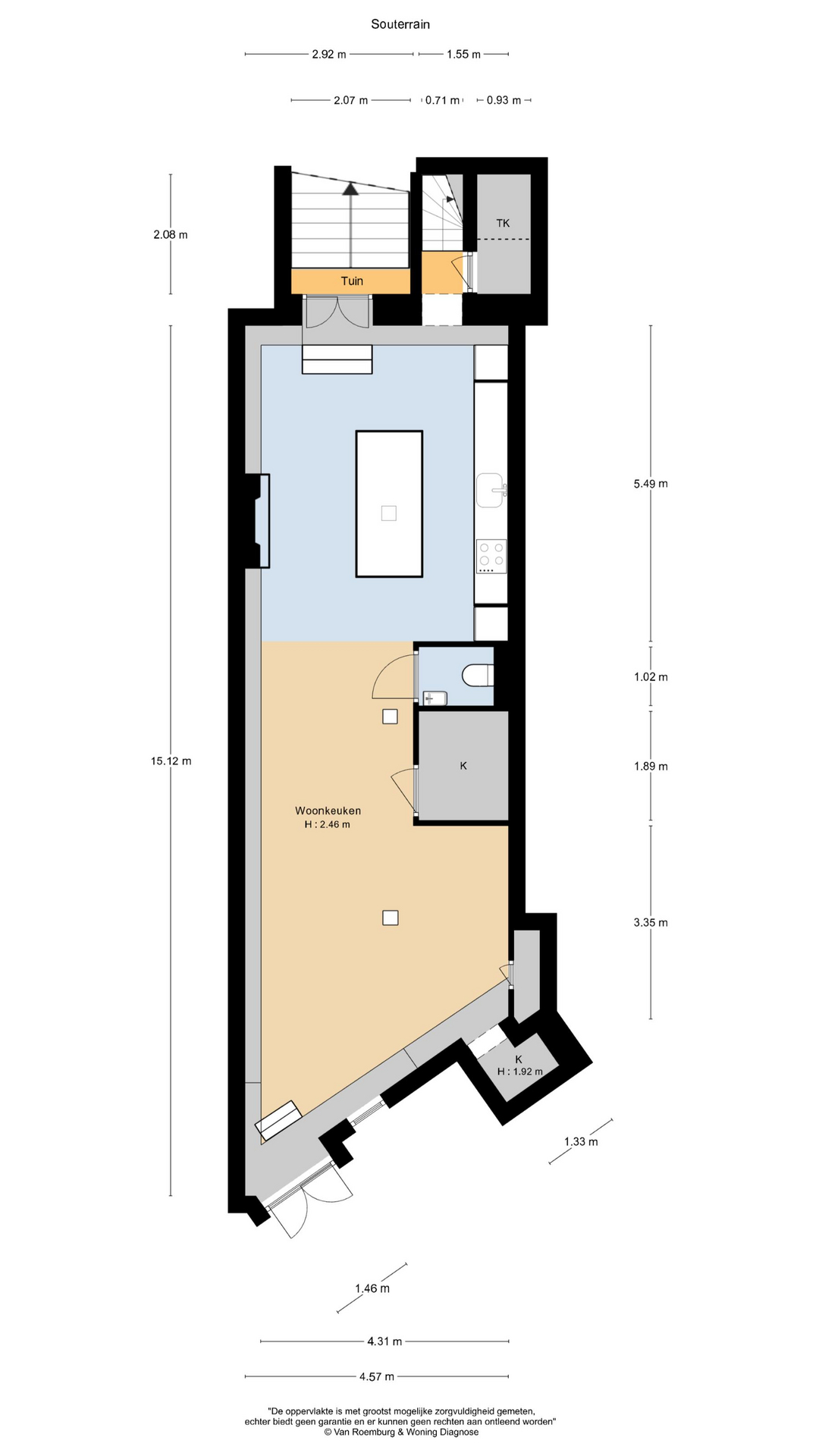
На цокольном этаже расположены кухня и столовая, оформленные с использованием натуральных материалов и мебели на заказ, камин и выход в уединённый городской сад. Во всём ощущается сочетание функциональности и элегантности: элитная техника, остров из натурального камня и паркет из дуба, уложенный "ёлочкой". На приподнятом первом этаже находится мраморный холл и гостиная с потолками более 3,4 метра, видом на канал и двумя каминами, где торжественность искусно объединяется с атмосферой уюта.
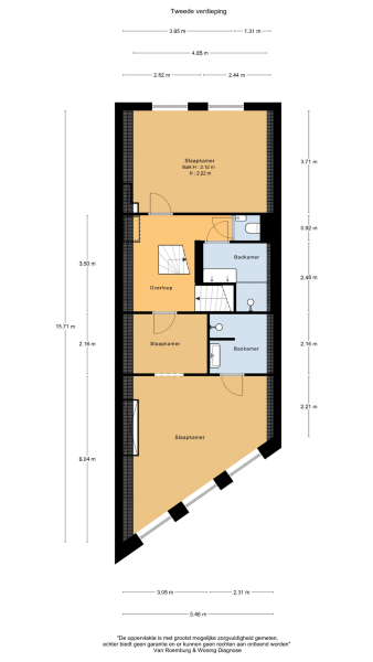
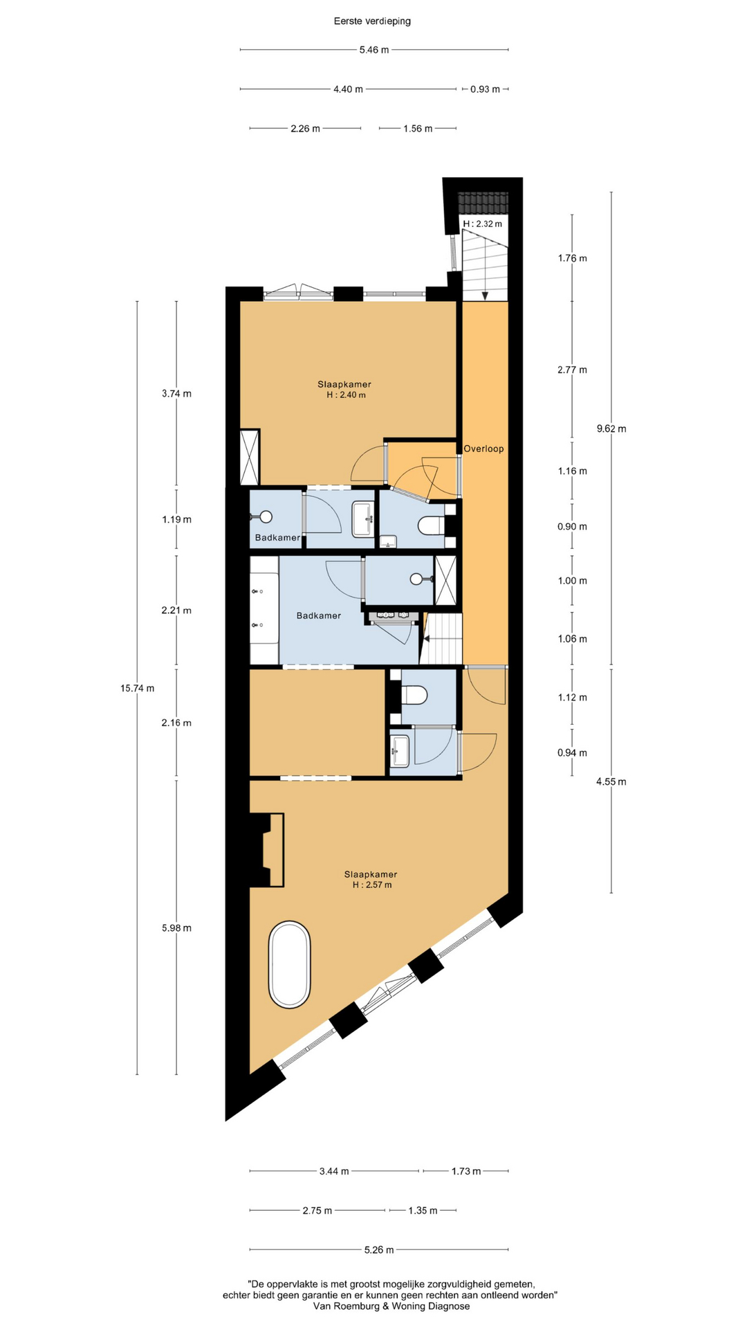
На первом и втором этажах располагается ряд спален, каждая из которых отделана спокойными материалами и встроенными шкафами на заказ. Главная спальня с видом на канал оснащена французским балконом, отдельно стоящей ванной и санузлом с натуральным камнем и деревом. Дополнительные спальни выходят окнами в сады внутреннего двора и подходят как для гостей, так и для гибкого проживания. На третьем этаже имеются ещё две комнаты; заднее пространство ведёт на террасу на крыше с панорамой исторической части города.
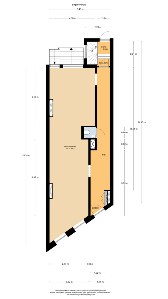
Отдельно стоящее садовое студио, выполненное в двух уровнях, гармонирует по деталям и отделке с основным домом, предоставляя вдохновляющую среду для гостей, арт-ателье или домашнего офиса. Каждая комната наполнена естественным светом, поддерживается атмосфера спокойной элегантности и открытых балок.
Расположенный в границах канального пояса Амстердама, включённого в список Всемирного наследия ЮНЕСКО, дом на Singel 29 обеспечивает непосредственный доступ к площади Дам, Королевскому дворцу и району Девяти улиц. Центральный вокзал Амстердама, метро, трамвайные и автобусные маршруты находятся в нескольких минутах ходьбы, гарантируя превосходные транспортные связи как по городу, так и международного уровня. Этот канальный дом сочетает чувство места, приватность и подлинное мастерство, предоставляя одновременно уединение и близость к самым престижным культурным и гастрономическим адресам города. Жизнь на Singel 29 — это погружение в архитектурное наследие, современный комфорт и динамичную городскую среду.
Исследуйте Amsterdam вместе с Baerz — вашим надежным советником и личным поисковиком недвижимости
Работа на рынке элитной недвижимости в Амстердаме невозможна без глубоких знаний локальных особенностей, деликатности и мастерства ведения переговоров. Лучшие советники обеспечивают доступ к приватным предложениям, поясняют нюансы права собственности, находят скрытую ценность там, где объекты редко выходят на широкий рынок. Команды экспертов ведут тщательную проверку активов и профессиональное представление клиента, усиливая его позиции на переговорах, обеспечивая прозрачность сделки и полную конфиденциальность.
Избегайте распространённых ошибок
Международные покупатели часто тратят ценное время на изучение дублирующихся, устаревших или вводящих в заблуждение онлайн-объявлений, особенно учитывая, что почти 30% объектов элитной недвижимости вообще не появляются на открытом рынке.
Агенты продавца представляют интересы продавца, а не ваши, и даже простой запрос о недвижимости может привести к тому, что агентство зарегистрирует вас как своего “клиента” без вашего согласия.
С Baerz Property Finders & Advisors вы полностью избегаете этих подводных камней.
Мы действуем исключительно в ваших интересах, предоставляя независимое представительство, прозрачные рекомендации и доступ ко всем доступным объектам, включая частные и вне-рыночные предложения, которых другие никогда не увидят.
Хотите узнать, как получить собственного персонального консультанта по недвижимости? Свяжитесь с нами, чтобы узнать, как мы можем представлять ваши интересы и открыть вам весь рынок.