Ons kantoor is lid van Baerz & Co Luxury Homes; een internationaal platform dat exclusieve woningmakelaars met elkaar verbindt. Neem contact op met ons secretariaat voor meer informatie over het landelijke aanbod, waarvan u hieronder een selectie kunt bekijken.

ZOETERMEER
Bellefleurhof 12 0 ong - 2728 KH
Нидерланды

Xandra Bek profile image
Xandra Bek
Register makelaar - taxateur
€1,345,000 k.k.
Жилая площадь
382m2
Размер участка
N/A
Спальни
9

Описание

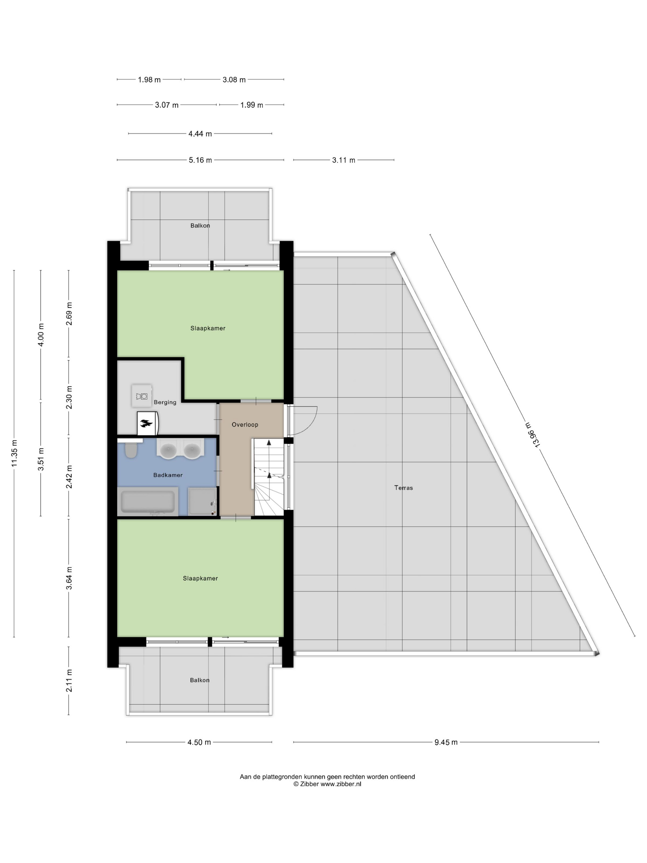
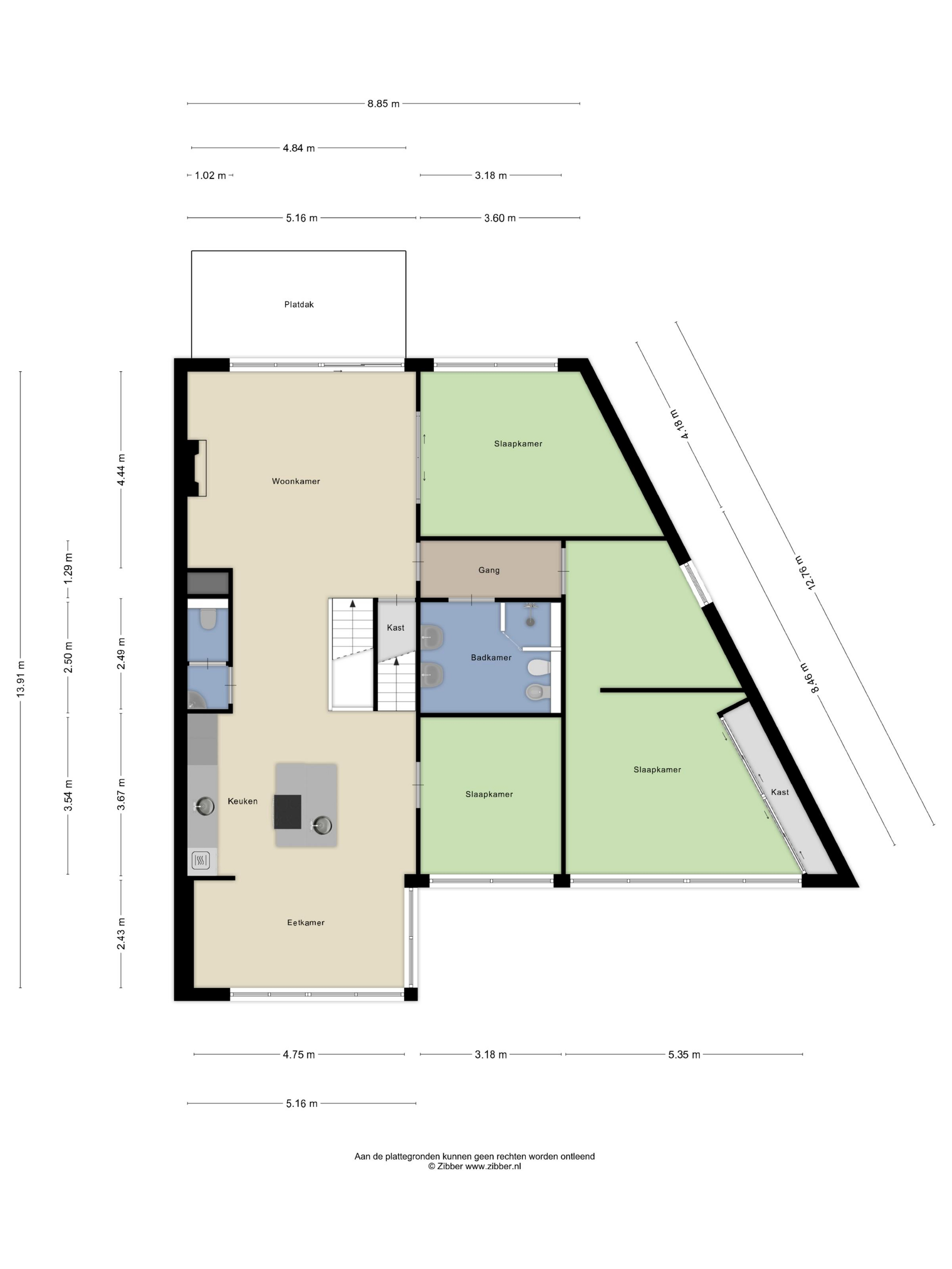
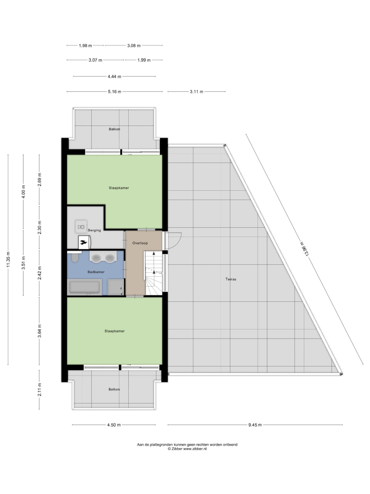
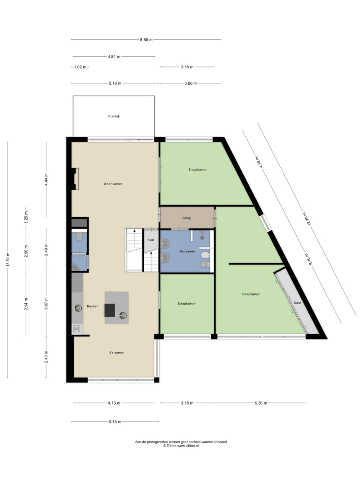
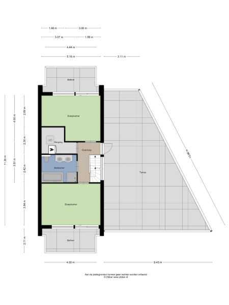
Этот сблокированный таунхаус в Зутермере представляет собой редкое предложение: два полностью автономных жилых пространства под одной крышей, созданных с учётом современных требований многопоколенного проживания или удобного совместного быта. В распоряжении 382 м² внутренней площади, разделённой на четыре этажа: продуманная планировка гармонично сочетает приватность с возможностью совместного времяпрепровождения благодаря двум гостиным, двум кухням и девяти спальням, а также трём современным ванным комнатам.

Просторные комнаты с крупными окнами наполнены естественным светом; интерьеры выдержаны в современном стиле и оформлены алюминиевыми рамами, не требующими сложного ухода. Жилая зона ориентирована на зелёный ландшафт, что создаёт ощущение уюта и спокойствия в районе с зрелыми деревьями и широкими тихими улицами. Спальные комнаты расположены на разных уровнях, позволяя гибко использовать пространство — удобно для больших семей, гостей или организации частных рабочих зон.

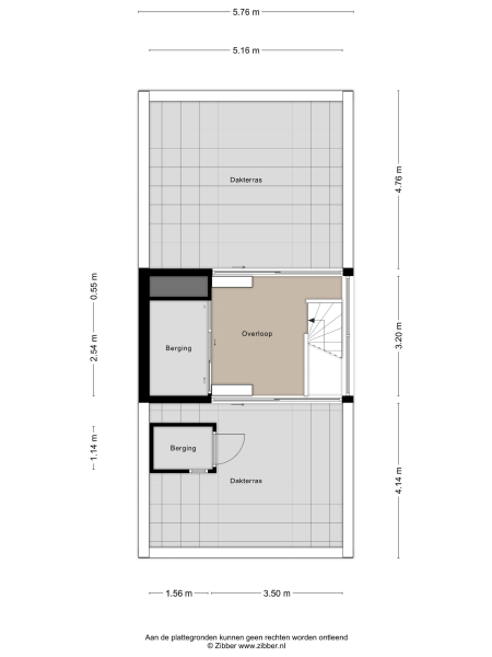
На участке предусмотрено 168 м² открытых пространств: передний и задний сады, три балкона и три террасы на крыше, чтобы наслаждаться как уединением, так и солнцем. Дом оснащён остеклением HR++, комплексной современной изоляцией, двенадцатью солнечными панелями и имеет энергетический сертификат класса А, что подчеркивает стремление к качеству и устойчивому развитию. Среди продуманных удобств — навес для авто, собственная парковка с зарядной станцией и возможность дальнейшего увеличения площади. Район Noordhove deel II гарантирует тишину, быстрый доступ к начальным школам, спортивным площадкам, природным зонам и хорошее сообщение с центром Зутермера и Гаагой. Это действительно универсальное и деликатное семейное убежище.

Исследуйте Zoetermeer с Baerz, вашим надежным личным консультантом по недвижимости

Премиальный сектор выигрывает от деликатного сопровождения и глубокого знания внутреннего рынка. Персональные советники обеспечивают доступ к эксклюзивным предложениям, грамотно ведут сложные переговоры. Их связи особенно важны при покупке дорогой недвижимости и при работе с конфиденциальными продавцами, помогая подобрать редкие варианты и добиться наилучших условий.

Избегайте распространенных ошибок

Международные покупатели часто тратят драгоценное время на дублирующиеся, устаревшие или вводящие в заблуждение онлайн-объявления, особенно учитывая, что почти 30% роскошных домов никогда не появляются на открытом рынке. Агенты продавца представляют интересы продавца, а не покупателя. Даже запрос информации о недвижимости может привести к тому, что агент продавца зарегистрирует вас как своего «клиента» без вашего согласия.
С Baerz Property Finders & Advisors вы полностью избегаете всех этих ошибок. Мы работаем исключительно в ваших интересах, предлагая независимое представительство, четкое руководство и доступ ко всем доступным объектам, включая возможности вне рынка, которые другие никогда не увидят.

Интересует Личный Консультант по Недвижимости?

Мы показываем вам все доступные дома в одном месте. Не стесняйтесь связаться с нами, чтобы узнать, как мы можем удовлетворить ваши потребности и защитить ваши интересы исключительно.

Особенности

Солнечные панели
Кондиционер
Передача права собственности
Запрашиваемая цена
€ 1.345.000 k.k.
Статус
beschikbaar
Принятие
in overleg
Строительство
Тип дома
Herenhuis
Тип здания
halfvrijstaande woning
Период строительства
2002
Энергетический рейтинг
A
Тип крыши
plat dak
Спальни
9
Ванные комнаты
3
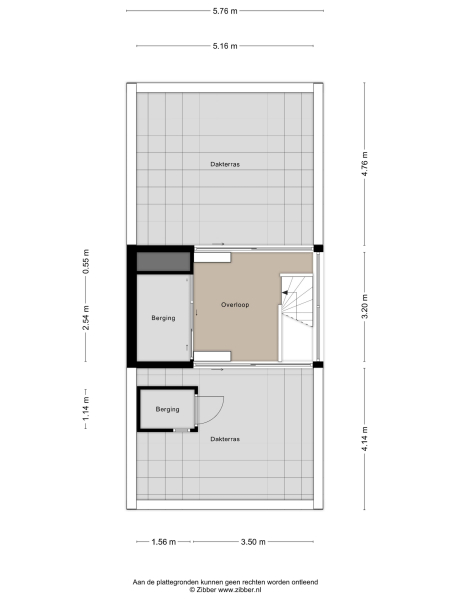
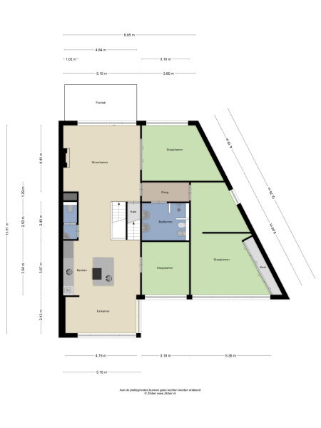
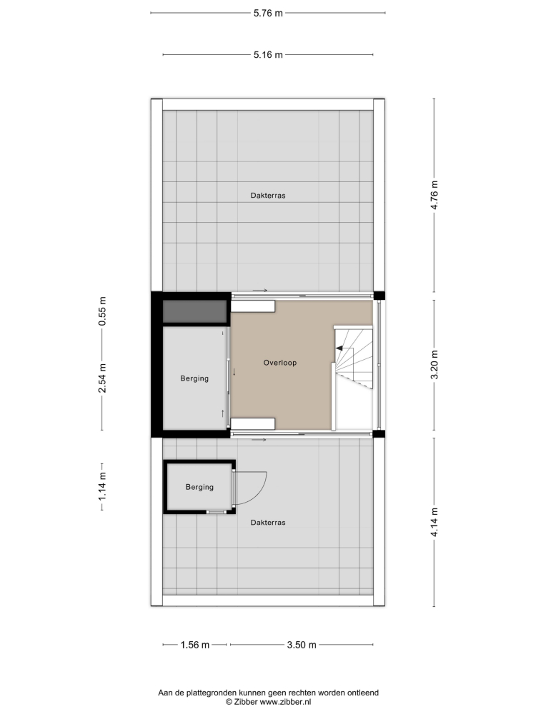
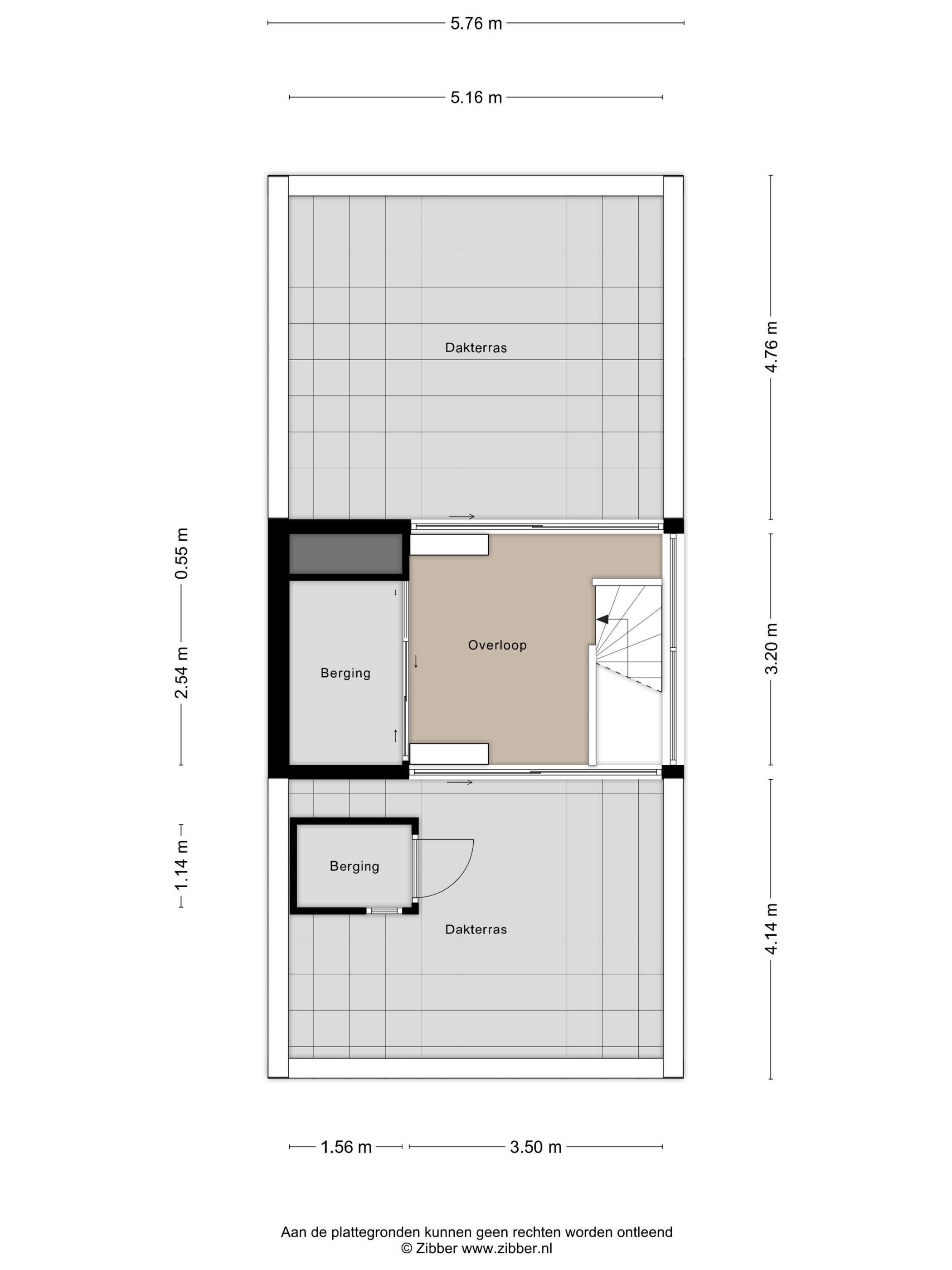
Площадь и объем
Жилая площадь
382 m2
Другое внутреннее пространство
0 m2
Внешнее пространство, прилегающее к зданию
168 m2
Внешнее складское пространство
9 m2
Объем в кубических метрах
1262 m3
Удобства
Airconditioning
Rookkanaal
Schuifpui
Frans balkon
Glasvezel kabel
Zonnepanelen
Aan park
In woonwijk
Vrij uitzicht
Baerz & Co Property Brochure

Брошюра

Видео

Планы этажей

Van Herk Makelaars Excellent

Oudehoofdplein 4
3011 TM Rotterdam

xbek@vanherk.nl
+31 102581855

www.vanherk.nl/excellent/

Запрос информации / просмотра

Xandra Bek profile image
Xandra Bek
Register makelaar - taxateur

Покупка элитной недвижимости в Zoetermeer

Зутермер—современное гостеприимное сообщество для ценящих роскошь, культурные преимущества и эффективные коммуникации. Жильцы пользуются приватными сервисами, элитной недвижимостью и глобальным взглядом в спокойной, но динамичной городской среде.