Ons kantoor is lid van Baerz & Co Luxury Homes; een internationaal platform dat exclusieve woningmakelaars met elkaar verbindt. Neem contact op met ons secretariaat voor meer informatie over het landelijke aanbod, waarvan u hieronder een selectie kunt bekijken.

NIJMEGEN
Batavierenweg 44 - 6522 EB
荷兰

Freek van Camp profile image
Freek van Camp
Real Estate Agent
€995,000 k.k.
生活区
226m2
地块大小
N/A
卧室
3

描述

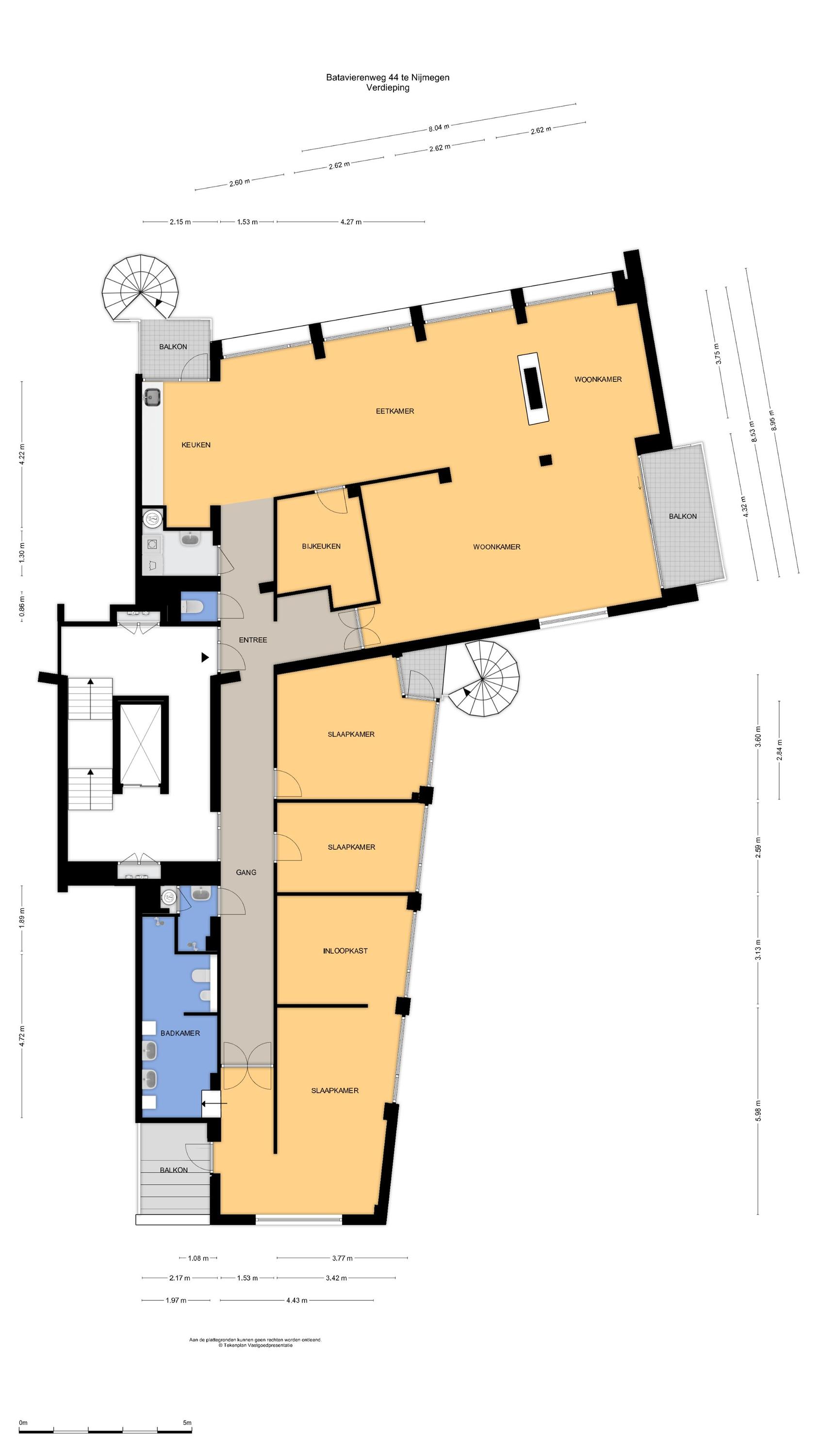
奈梅亨这套廊柱公寓将空间、光线与考究的奢华精妙融合,坐落于城市最受青睐的住宅区之一。公寓位于九层楼维护完善的建筑第六层,面积226平方米,通过宽阔窗户与四个独立阳台,引入极致开阔的城市与河流景观,营造出顶层公寓般的氛围,同时兼具安静中心地段的舒适惬意。

距奈梅亨中心步行即可抵达,紧邻主干道,公寓兼具私密性与便捷交通。由两套原独立住宅合并而成,现有格局合理且宽敞:起居空间铺设实心橡木地板,配备现代燃气壁炉,自然延伸至面朝南及西的阳台,让室内整日沐浴在明亮阳光中。高规格嵌入式电器装备的厨房直面明亮都市景色,并设有独立实用间,卧室区域设有三间宽敞卧室和两间浴室。主卧套房含步入式衣帽间、空调、专属阳台及采用精致材质打造的浴室,配备下沉式浴缸、步入式淋浴和双洗手台。

公寓另配自行车存放间、自选的私家车库、对外储藏空间及充裕车位许可,尽显隐私与东奈梅亨核心生活的完美平衡。这套廊柱公寓出售,带来现代舒适与考究细节,为追求低调且纯粹生活方式的人士呈现理想之家。

与 Baerz 一起探索 Nijmegen,您值得信赖的私人房产顾问和搜寻专家

奈梅亨奢华房产市场需深度本地见解与国际视野。顶级顾问掌握非公开房源,理解建筑溯源,对跨境交易结构拿捏精准。服务涵盖独家机会获取、优化谈判结果、风险防控,带来顺畅的置业体验。

避免常见陷阱

国际买家经常浪费大量时间浏览重复、过时或误导性的在线房源,尤其是因为近 30% 的豪华物业根本不会公开上市。
卖方代理代表卖方的利益,而非您的利益;甚至仅仅对房产进行咨询,都可能导致中介在未经您同意的情况下将您登记为他们的“客户”。
通过 Baerz Property Finders & Advisors,您可以完全避免这些问题。
我们只代表您,提供独立建议、透明指导,并让您接触所有可售房源,包括私人及未上市的独家机会,这些往往不会被他人看到。

想知道如何获得您自己的私人房产顾问吗?联系我们,了解我们如何代表您的利益并为您打开整个市场。

特点

空调
所有权转让
要价
€ 995.000 k.k.
状态
beschikbaar
接受
in overleg
建筑
房屋类型
Portiekflat
建筑类型
appartement
建筑时期
1958
能源评级
C
屋顶类型
plat dak
卧室
3
浴室
1
表面积和体积
生活区
226 m2
其他室内空间
0 m2
附属于建筑的外部空间
16 m2
外部储存空间
5 m2
体积(立方米)
728 m3
设施
Tv kabel
Lift
Airconditioning
Schuifpui
Natuurlijke ventilatie
Aan rustige weg
In woonwijk
Vrij uitzicht
Baerz & Co Property Brochure

宣传册

视频

户型图

Verbeek Makelaars

Mariaplein 6
6522 AV Nijmegen

f.van.camp@verbeek-makelaars.nl
+31 24 22 00 111

www.verbeek-makelaars.nl

信息/查看请求

Freek van Camp profile image
Freek van Camp
Real Estate Agent